|
|
|
| Larry Stein Oklahoma County Assessor (405) 713-1200 - Public Access System |
|
|
|
|
|
|
| Real Property Display - Screen Produced 3/12/2026 7:13:23 PM | ||||
|---|---|---|---|---|
| Account: R141435065 | Type: Residential | Location: |
8733 SW 89TH ST |
|
| Building Name/Occupant: |
|
OKLAHOMA CITY |
||
| Owner Name 1: | THEE LILLIAN B & MARTIN O TRS |
Parcel PIN#: |
1923-14-143-5065 |
|
| Owner Name 2: | THEE LILLIAN B LIVING TRUST | 1/4 section #: |
1923 |
|
| Owner Name 3: | Parent Acct: |
|
||
| Billing Address: | 8733 SW 89TH ST | Tax District: |
|
|
| City, State, Zip | OKLAHOMA CITY, OK 73169-1705 | School System: |
Mustang #69 |
|
|
Country: (If noted) |
Land Size: |
7.7900 Acres |
||
|
Land Value: 92,467 |
|
|||
|
Sect 31-T11N-R4W Qtr SW |
UNPLTD PT SEC 31 11N 4W
Block
000
Lot
000
|
|||
| Full Legal Description: UNPLTD PT SEC 31 11N 4W 000 000 PT SW4 SEC 31 11N 4W BEG 1026FT E OF SW/C OF SW4 TH N1027.67FT NELY ON A CURVE 364.35FT S1235.09FT W300FT TO BEG CONT 7.79ACRS MORE OR LESS SUBJ TO EASEMENTS OF RECORD |
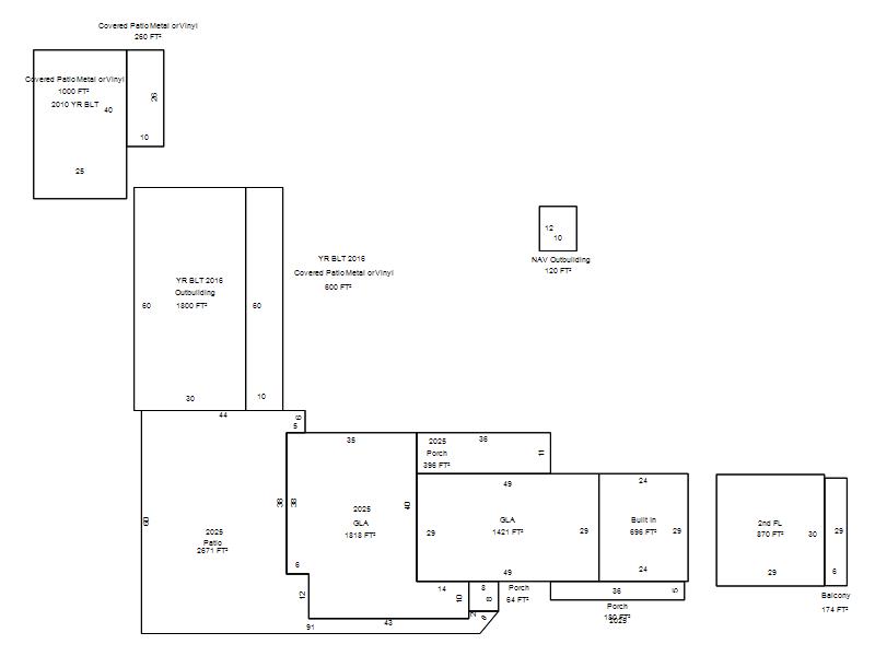
| Photo & Sketch (if available) | Comp Sales (ordered by relevancy) |
|
||||||||||||||||||
|
||||||||||||||||||||
| Value History (*The County Treasurer 405-713-1300 posts & collects actual tax amounts. Contact information HERE) | |||||||||||||
|---|---|---|---|---|---|---|---|---|---|---|---|---|---|
| Year | Market Value | Taxable Mkt Value | Gross Assessed | Exemption | Net Assessed | Millage | Est. Tax | Tax Savings | |||||
|
2025 |
367,000 |
337,012 |
37,070 |
1,000 |
36,070 |
125.59 |
$4,530 |
$540 |
|||||
|
2024 |
365,000 |
327,197 |
35,991 |
1,000 |
34,991 |
124.15 |
$4,344 |
$640 |
|||||
|
2023 |
359,000 |
317,667 |
34,942 |
1,000 |
33,942 |
121.69 |
$4,131 |
$675 |
|||||
|
2022 |
364,000 |
308,415 |
33,925 |
1,000 |
32,925 |
123.46 |
$4,065 |
$878 |
|||||
|
2021 |
306,000 |
299,433 |
32,937 |
1,000 |
31,937 |
122.90 |
$3,925 |
$212 |
|||||
| Property Account Status/Adjustments/Exemptions | ||
|---|---|---|
| Account # | Exemption Description | Amount |
|
R141435065 |
3% Cap Homestead |
0 |
|
R141435065 |
Homestead |
1,000 |
| Property Deed Transaction History (Recorded in the County Clerk's Office) | ||||||||||
|---|---|---|---|---|---|---|---|---|---|---|
| Date | Type | Book | Page | Price | Grantor | Grantee | ||||
|
1/11/2012 |
|
Deeds |
$0 |
THEE MARTIN O & LILLIAN B |
THEE LILLIAN B & MARTIN O TRS |
|||||
|
5/20/2010 |
|
Deeds |
$275,000 |
MCCONAUGHY LESLIE D & MARK M |
THEE MARTIN O & LILLIAN B |
|||||
|
11/16/2001 |
|
Deeds |
$161,000 |
NIBLETT JAMES L |
MCCONAUGHY LESLIE D & MARK M |
|||||
|
6/2/2000 |
|
Deeds |
$0 |
NIBLETT JANICE L |
NIBLETT JAMES L |
|||||
|
6/1/2000 |
|
Deeds |
$0 |
NIBLETT JAMES L & JANICE S |
NIBLETT JAMES L |
|||||
| Last Mailed Notice of Value (N.O.V.) Information/History | ||||||||
|---|---|---|---|---|---|---|---|---|
| Year | Date | Market Value | Taxable Market Value | Gross Assessed | Exemption | Net Assessed | ||
|
2025 |
03/28/2025 |
367,000 |
337,012 |
37,070 |
1,000 |
36,070 |
||
|
2024 |
01/22/2024 |
365,000 |
327,197 |
35,991 |
1,000 |
34,991 |
||
|
2023 |
01/23/2023 |
359,000 |
317,667 |
34,942 |
1,000 |
33,942 |
||
|
2022 |
02/22/2022 |
364,000 |
308,415 |
33,925 |
1,000 |
32,925 |
||
|
2021 |
02/24/2021 |
306,000 |
299,433 |
32,937 |
1,000 |
31,937 |
||
| Property Building Permit History | ||||||
|---|---|---|---|---|---|---|
| Issued | Permit # | Provided by | Bldg # | Description | Est Construction Cost | Status |
|
3/19/2024 |
BLDR-2023-07642 |
|
1 |
Add On |
350,000 |
Inactive |
|
2/1/2016 |
10485137 |
OKLAHOMA CITY |
1 |
Storage Buil |
54,000 |
Inactive |
| Click button on building number to access detailed information: | ||||||
|---|---|---|---|---|---|---|
| Bldg # | Vacant/Improved Land | Bldg Description | Year Built | SqFt | # Stories | |
|
1 |
Improved |
Split Level |
1981 |
4,109 |
1 Stories |
|