|
|
|
| Larry Stein Oklahoma County Assessor (405) 713-1200 - Public Access System |
|
|
|
|
|
|
| Real Property Display - Screen Produced 4/4/2026 5:30:31 AM | ||||
|---|---|---|---|---|
| Account: R143451480 | Type: Residential | Location: |
7564 S EMBASSY TER |
|
| Building Name/Occupant: |
|
OKLAHOMA CITY |
||
| Owner Name 1: | BRANSON JACK & SHANNA |
Parcel PIN#: |
1924-14-345-1480 |
|
| Owner Name 2: | 1/4 section #: |
1924 |
||
| Owner Name 3: | Parent Acct: |
|
||
| Billing Address: | 7564 S EMBASSY TER | Tax District: |
|
|
| City, State, Zip | OKLAHOMA CITY, OK 73169-1326 | School System: |
Mustang #69 |
|
|
Country: (If noted) |
Land Size: |
0.1653 Acres |
||
|
Land Value: 27,720 |
|
|||
|
Sect 31-T11N-R4W Qtr NW |
EMBASSY WEST
Block
005
Lot
012
|
|||
| Full Legal Description: EMBASSY WEST 005 012 |
| No comparable sales report available. | ||||||||||||||||||||||
|
||||||||||||||||||||||
| Value History (*The County Treasurer 405-713-1300 posts & collects actual tax amounts. Contact information HERE) | |||||||||||||
|---|---|---|---|---|---|---|---|---|---|---|---|---|---|
| Year | Market Value | Taxable Mkt Value | Gross Assessed | Exemption | Net Assessed | Millage | Est. Tax | Tax Savings | |||||
|
2026 |
34,896 |
30,566 |
3,362 |
0 |
3,362 |
125.59 |
$422 |
$60 |
|||||
|
2025 |
34,926 |
29,111 |
3,201 |
0 |
3,201 |
125.59 |
$402 |
$80 |
|||||
|
2024 |
34,955 |
27,725 |
3,049 |
0 |
3,049 |
124.15 |
$379 |
$99 |
|||||
|
2023 |
34,985 |
26,405 |
2,904 |
0 |
2,904 |
121.69 |
$353 |
$115 |
|||||
|
2022 |
35,015 |
25,148 |
2,765 |
0 |
2,765 |
123.46 |
$342 |
$134 |
|||||
| Property Account Status/Adjustments/Exemptions | ||
|---|---|---|
| Account # | Exemption Description | Amount |
|
R143451480 |
5% Capped Account |
0 |
| Property Deed Transaction History (Recorded in the County Clerk's Office) | |||||||
|---|---|---|---|---|---|---|---|
| Date | Type | Book | Page | Price | Grantor | Grantee | |
|
8/1/2003 |
|
Mult Parcel |
$103,000 |
OAKS C EDDIE JR & BARBARA GAIL |
BRANSON JACK & SHANNA |
||
|
12/1/1976 |
|
Historical |
$0 |
|
OAKS C EDDIE JR & BARBARA G |
||
| Last Mailed Notice of Value (N.O.V.) Information/History | ||||||||
|---|---|---|---|---|---|---|---|---|
| Year | Date | Market Value | Taxable Market Value | Gross Assessed | Exemption | Net Assessed | ||
|
2026 |
02/06/2026 |
34,896 |
30,566 |
3,362 |
0 |
3,362 |
||
|
2025 |
01/31/2025 |
34,926 |
29,111 |
3,201 |
0 |
3,201 |
||
|
2024 |
01/22/2024 |
34,955 |
27,725 |
3,049 |
0 |
3,049 |
||
|
2023 |
01/23/2023 |
34,985 |
26,405 |
2,904 |
0 |
2,904 |
||
|
2022 |
02/22/2022 |
35,015 |
25,148 |
2,765 |
0 |
2,765 |
||
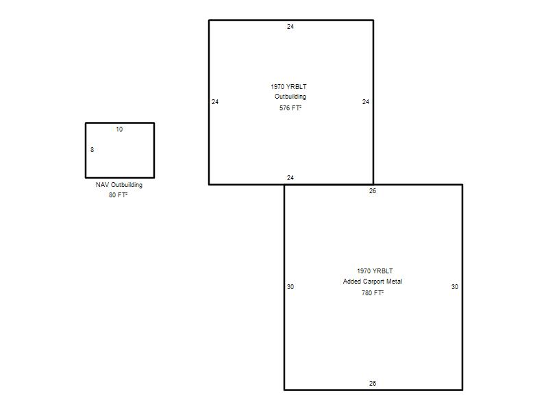
| Property Building Permit History | |||||||||||
|---|---|---|---|---|---|---|---|---|---|---|---|
| Issued | Permit # | Provided by | Bldg # | Description | Est Construction Cost | Status | |||||
| No Building Permit records returned. | |||||||||||
| Click button on building number to access detailed information: | ||||||
|---|---|---|---|---|---|---|
| Bldg # | Vacant/Improved Land | Bldg Description | Year Built | SqFt | # Stories | |
|
1 |
Improved |
Misc Imp - Res |
1970 |
|
1 Stories |
|