|
|
|
| Larry Stein Oklahoma County Assessor (405) 713-1200 - Public Access System |
|
|
|
|
|
|
| Real Property Display - Screen Produced 2/27/2026 12:35:05 PM | ||||
|---|---|---|---|---|
| Account: R260084035 | Type: Residential | Location: |
5205 N PEEBLY RD |
|
| Building Name/Occupant: |
|
UNINCORPORATED |
||
| Owner Name 1: | HAMMER MICHAEL W |
Parcel PIN#: |
2030-26-008-4035 |
|
| Owner Name 2: | 1/4 section #: |
2030 |
||
| Owner Name 3: | Parent Acct: |
|
||
| Billing Address: | 5205 N PEEBLY RD | Tax District: |
|
|
| City, State, Zip | HARRAH, OK 73045-8307 | School System: |
Harrah #7 |
|
|
Country: (If noted) |
Land Size: |
2.5000 Acres |
||
|
Land Value: 65,998 |
|
|||
|
Sect 8-T12N-R1E Qtr SE |
ELK TOWNSHIP
Block
000
Lot
000
|
|||
| Full Legal Description: ELK TOWNSHIP 000 000 PT SE4 SEC 8 12N 1E SE4 NE4 SE4 SE4 |
| Photo & Sketch (if available) | Comp Sales (ordered by relevancy) |
|
||||||||||||||||||
|
||||||||||||||||||||
| Value History (*The County Treasurer 405-713-1300 posts & collects actual tax amounts. Contact information HERE) | |||||||||||||
|---|---|---|---|---|---|---|---|---|---|---|---|---|---|
| Year | Market Value | Taxable Mkt Value | Gross Assessed | Exemption | Net Assessed | Millage | Est. Tax | Tax Savings | |||||
|
2025 |
365,500 |
245,185 |
26,969 |
26,969 |
0 |
107.54 |
$0 |
$4,324 |
|||||
|
2024 |
311,000 |
238,044 |
26,184 |
26,184 |
0 |
110.62 |
$0 |
$3,784 |
|||||
|
2023 |
301,000 |
231,111 |
25,421 |
25,421 |
0 |
97.88 |
$0 |
$3,241 |
|||||
|
2022 |
275,000 |
224,380 |
24,680 |
24,680 |
0 |
99.50 |
$0 |
$3,010 |
|||||
|
2021 |
243,000 |
217,845 |
23,962 |
23,962 |
0 |
99.52 |
$0 |
$2,660 |
|||||
| Property Account Status/Adjustments/Exemptions | ||
|---|---|---|
| Account # | Exemption Description | Amount |
|
R260084035 |
100% DAV Exemption |
100 |
|
R260084035 |
3% Cap Homestead |
0 |
|
R260084035 |
DAV Homestead |
0 |
| Property Deed Transaction History (Recorded in the County Clerk's Office) | ||||||||||
|---|---|---|---|---|---|---|---|---|---|---|
| Date | Type | Book | Page | Price | Grantor | Grantee | ||||
|
1/19/2021 |
|
Deeds |
$0 |
HAMMER ALICIA L |
HAMMER MICHAEL W |
|||||
|
6/27/2017 |
|
Deeds |
$235,000 |
HEHENBERGER TROY & CHEREE |
HAMMER MICHAEL W & ALICIA L |
|||||
|
1/31/2013 |
|
Deeds |
$0 |
HEHENBERGER RANDY & JULIE |
HEHENBERGER TROY & CHEREE |
|||||
|
7/23/2012 |
|
Deeds |
$208,500 |
JASPER CAROL L |
HEHENBERGER TROY & CHEREE HEHENBERGER RANDY & JULIE |
|||||
|
7/19/2012 |
|
Deeds |
$0 |
KEMP LISA K |
JASPER CAROL L |
|||||
| Last Mailed Notice of Value (N.O.V.) Information/History | ||||||||
|---|---|---|---|---|---|---|---|---|
| Year | Date | Market Value | Taxable Market Value | Gross Assessed | Exemption | Net Assessed | ||
|
2026 |
02/06/2026 |
344,000 |
252,540 |
27,779 |
27,779 |
0 |
||
|
2025 |
01/31/2025 |
365,500 |
245,185 |
26,969 |
26,969 |
0 |
||
|
2024 |
01/22/2024 |
311,000 |
238,044 |
26,184 |
26,184 |
0 |
||
|
2023 |
01/23/2023 |
301,000 |
231,111 |
25,421 |
25,421 |
0 |
||
|
2022 |
02/22/2022 |
275,000 |
224,380 |
24,680 |
24,680 |
0 |
||
| Property Building Permit History | |||||||||||
|---|---|---|---|---|---|---|---|---|---|---|---|
| Issued | Permit # | Provided by | Bldg # | Description | Est Construction Cost | Status | |||||
| No Building Permit records returned. | |||||||||||
| Click button on building number to access detailed information: | ||||||
|---|---|---|---|---|---|---|
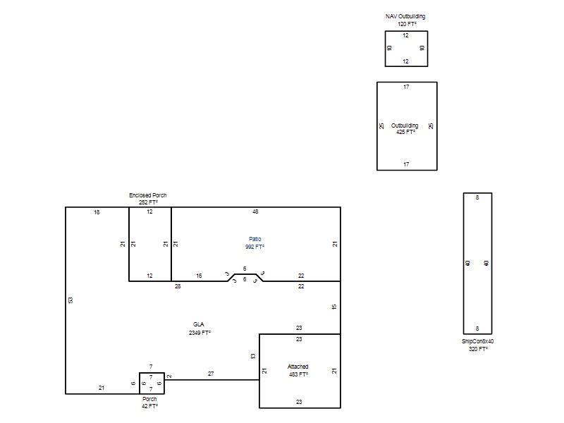
| Bldg # | Vacant/Improved Land | Bldg Description | Year Built | SqFt | # Stories | |
|
1 |
Improved |
Ranch 1 Story |
1983 |
2,349 |
1 Stories |
|