|
|
|
| Larry Stein Oklahoma County Assessor (405) 713-1200 - Public Access System |
|
|
|
|
|
|
| Real Property Display - Screen Produced 2/27/2026 7:04:27 AM | ||||
|---|---|---|---|---|
| Account: R260123000 | Type: Agricultural | Location: |
21625 NE 50TH ST |
|
| Building Name/Occupant: |
|
UNINCORPORATED |
||
| Owner Name 1: | MALASKE SCOTT E & SONJA J |
Parcel PIN#: |
2046-26-012-3000 |
|
| Owner Name 2: | 1/4 section #: |
2046 |
||
| Owner Name 3: | Parent Acct: |
|
||
| Billing Address: | 19893 NE 50TH ST | Tax District: |
|
|
| City, State, Zip | HARRAH, OK 73045-8740 | School System: |
Harrah #7 |
|
|
Country: (If noted) |
Land Size: |
80.0000 Acres |
||
|
Land Value: 70,156 |
|
|||
|
Sect 12-T12N-R1E Qtr SE |
ELK TOWNSHIP
Block
000
Lot
000
|
|||
| Full Legal Description: ELK TOWNSHIP 000 000 PT SE4 SEC 12 12N 1E W 1/2 OF SE4 |
| No comparable sales report available. | ||||||||||||||||||||||
|
||||||||||||||||||||||
| Value History (*The County Treasurer 405-713-1300 posts & collects actual tax amounts. Contact information HERE) | |||||||||||||
|---|---|---|---|---|---|---|---|---|---|---|---|---|---|
| Year | Market Value | Taxable Mkt Value | Gross Assessed | Exemption | Net Assessed | Millage | Est. Tax | Tax Savings | |||||
|
2025 |
59,384 |
14,155 |
1,556 |
0 |
1,556 |
107.54 |
$167 |
$535 |
|||||
|
2024 |
50,264 |
13,743 |
1,511 |
0 |
1,511 |
110.62 |
$167 |
$444 |
|||||
|
2023 |
34,915 |
13,343 |
1,467 |
0 |
1,467 |
97.88 |
$144 |
$232 |
|||||
|
2022 |
34,915 |
12,955 |
1,424 |
0 |
1,424 |
99.50 |
$142 |
$240 |
|||||
|
2021 |
41,856 |
12,578 |
1,383 |
0 |
1,383 |
99.52 |
$138 |
$321 |
|||||
| Property Account Status/Adjustments/Exemptions | ||
|---|---|---|
| Account # | Exemption Description | Amount |
|
R260123000 |
Capped Ag 3% |
0 |
| Property Deed Transaction History (Recorded in the County Clerk's Office) | |||||||
|---|---|---|---|---|---|---|---|
| Date | Type | Book | Page | Price | Grantor | Grantee | |
|
11/21/2008 |
|
Deeds |
$280,000 |
CAIN DOROTHY L & JIMMY G |
MALASKE SCOTT E & SONJA J |
||
|
4/1/1978 |
|
Historical |
$0 |
|
CAIN DOROTHY L & JIMMY G |
||
| Last Mailed Notice of Value (N.O.V.) Information/History | ||||||||
|---|---|---|---|---|---|---|---|---|
| Year | Date | Market Value | Taxable Market Value | Gross Assessed | Exemption | Net Assessed | ||
|
2026 |
02/06/2026 |
89,623 |
14,579 |
1,603 |
0 |
1,603 |
||
|
2025 |
01/31/2025 |
59,384 |
14,155 |
1,556 |
0 |
1,556 |
||
|
2024 |
01/22/2024 |
50,264 |
13,743 |
1,511 |
0 |
1,511 |
||
|
2023 |
03/02/2023 |
34,915 |
13,343 |
1,467 |
0 |
1,467 |
||
|
2022 |
02/22/2022 |
34,915 |
12,955 |
1,424 |
0 |
1,424 |
||
| Property Building Permit History | |||||||||||
|---|---|---|---|---|---|---|---|---|---|---|---|
| Issued | Permit # | Provided by | Bldg # | Description | Est Construction Cost | Status | |||||
| No Building Permit records returned. | |||||||||||
| Click button on building number to access detailed information: | ||||||
|---|---|---|---|---|---|---|
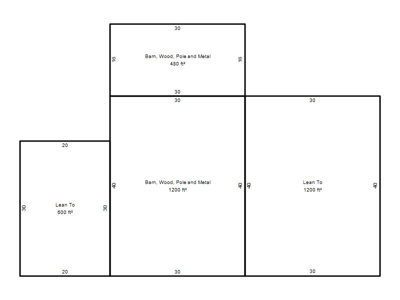
| Bldg # | Vacant/Improved Land | Bldg Description | Year Built | SqFt | # Stories | |
|
1 |
Improved |
Misc Imp - Res |
1980 |
|
|
|