|
|
|
| Larry Stein Oklahoma County Assessor (405) 713-1200 - Public Access System |
|
|
|
|
|
|
| Real Property Display - Screen Produced 2/27/2026 8:37:13 AM | ||||
|---|---|---|---|---|
| Account: R260122015 | Type: Residential | Location: |
21270 PIONEER CIR |
|
| Building Name/Occupant: |
|
UNINCORPORATED |
||
| Owner Name 1: | BREEDEN JENNIFER LYNETT |
Parcel PIN#: |
2048-26-012-2015 |
|
| Owner Name 2: | 1/4 section #: |
2048 |
||
| Owner Name 3: | Parent Acct: |
|
||
| Billing Address: | 21270 PIONEER CIR | Tax District: |
|
|
| City, State, Zip | HARRAH, OK 73045 | School System: |
Harrah #7 |
|
|
Country: (If noted) |
UNITED STATES |
Land Size: |
2.2600 Acres |
|
|
Land Value: 18,758 |
|
|||
|
Sect 12-T12N-R1E Qtr NW |
ELK TOWNSHIP
Block
000
Lot
000
|
|||
| Full Legal Description: ELK TOWNSHIP PT NW4 SEC 12 12N 1E BEG 1326.82FT W & 603.24FT S OF NE/C NW4 TH E494.93FT SELY 216.58FT W560.52FT N205.5FT TO BEG CONT2.5ACRS MORE OR LESS EX W50FT |
| No comparable sales report available. | ||||||||||||||||||||||
|
||||||||||||||||||||||
| Value History (*The County Treasurer 405-713-1300 posts & collects actual tax amounts. Contact information HERE) | |||||||||||||
|---|---|---|---|---|---|---|---|---|---|---|---|---|---|
| Year | Market Value | Taxable Mkt Value | Gross Assessed | Exemption | Net Assessed | Millage | Est. Tax | Tax Savings | |||||
|
2025 |
44,606 |
44,606 |
4,906 |
1,000 |
3,906 |
107.54 |
$420 |
$108 |
|||||
|
2024 |
44,672 |
44,672 |
4,913 |
1,000 |
3,913 |
110.62 |
$433 |
$111 |
|||||
|
2023 |
44,737 |
44,737 |
4,921 |
1,000 |
3,921 |
97.88 |
$384 |
$98 |
|||||
|
2022 |
44,816 |
44,816 |
4,929 |
1,000 |
3,929 |
99.50 |
$391 |
$100 |
|||||
|
2021 |
44,813 |
44,813 |
4,929 |
1,000 |
3,929 |
99.52 |
$391 |
$100 |
|||||
| Property Account Status/Adjustments/Exemptions | ||
|---|---|---|
| Account # | Exemption Description | Amount |
|
R260122015 |
Homestead |
1,000 |
| Property Deed Transaction History (Recorded in the County Clerk's Office) | |||||||
|---|---|---|---|---|---|---|---|
| Date | Type | Book | Page | Price | Grantor | Grantee | |
|
9/4/2025 |
|
Deeds |
$0 |
BREEDEN JENNIFER LYNETT |
BREEDEN JENNIFER LYNETT |
||
|
3/26/2025 |
|
Deeds |
$70,000 |
MAHAN JAY & PATRICIA |
BREEDEN JENNIFER LYNETT |
||
|
6/18/1998 |
|
Historical |
$20,000 |
CONNER DONALD D |
MAHAN JAY & PATRICIA |
||
|
12/1/1984 |
|
Historical |
$0 |
|
CONNER DONALD D |
||
| Last Mailed Notice of Value (N.O.V.) Information/History | ||||||
|---|---|---|---|---|---|---|
| Year | Date | Market Value | Taxable Market Value | Gross Assessed | Exemption | Net Assessed |
|
2023 |
01/23/2023 |
44,737 |
44,737 |
4,921 |
1,000 |
3,921 |
|
2018 |
04/09/2018 |
45,016 |
45,016 |
4,952 |
1,000 |
3,952 |
|
2013 |
03/27/2013 |
51,213 |
51,213 |
5,632 |
1,000 |
4,632 |
| Property Building Permit History | |||||||||||
|---|---|---|---|---|---|---|---|---|---|---|---|
| Issued | Permit # | Provided by | Bldg # | Description | Est Construction Cost | Status | |||||
| No Building Permit records returned. | |||||||||||
| Click button on building number to access detailed information: | ||||||
|---|---|---|---|---|---|---|
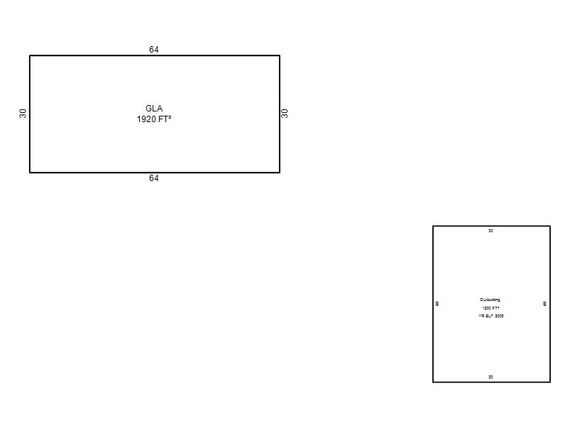
| Bldg # | Vacant/Improved Land | Bldg Description | Year Built | SqFt | # Stories | |
|
1 |
Improved |
Double Wide |
2025 |
1,920 |
1 Stories |
|