|
|
|
| Larry Stein Oklahoma County Assessor (405) 713-1200 - Public Access System |
|
|
|
|
|
|
| Real Property Display - Screen Produced 2/27/2026 8:37:13 AM | ||||
|---|---|---|---|---|
| Account: R260122050 | Type: Residential | Location: |
21380 PIONEER CIR |
|
| Building Name/Occupant: |
|
UNINCORPORATED |
||
| Owner Name 1: | WILSON ELISHA WESLEY JR |
Parcel PIN#: |
2048-26-012-2050 |
|
| Owner Name 2: | 1/4 section #: |
2048 |
||
| Owner Name 3: | Parent Acct: |
|
||
| Billing Address: | 19524 SE 121ST ST | Tax District: |
|
|
| City, State, Zip | MCLOUD, OK 74851-7200 | School System: |
Harrah #7 |
|
|
Country: (If noted) |
Land Size: |
5.1300 Acres |
||
|
Land Value: 42,579 |
|
|||
|
Sect 12-T12N-R1E Qtr NW |
ELK TOWNSHIP
Block
000
Lot
000
|
|||
| Full Legal Description: ELK TOWNSHIP PT NW4 SEC 12 12N 1E BEG 726.27FT N OF SE/C NW4 TH N510.2FT W452.5FT SELY 509.99FT E445.94FT TO BEG EX W 25FT |
| No comparable sales report available. | ||||||||||||||||||||||
|
||||||||||||||||||||||
| Value History (*The County Treasurer 405-713-1300 posts & collects actual tax amounts. Contact information HERE) | |||||||||||||
|---|---|---|---|---|---|---|---|---|---|---|---|---|---|
| Year | Market Value | Taxable Mkt Value | Gross Assessed | Exemption | Net Assessed | Millage | Est. Tax | Tax Savings | |||||
|
2025 |
75,000 |
75,000 |
8,250 |
0 |
8,250 |
107.54 |
$887 |
$0 |
|||||
|
2024 |
57,589 |
48,172 |
5,298 |
0 |
5,298 |
110.62 |
$586 |
$115 |
|||||
|
2023 |
57,589 |
45,879 |
5,046 |
0 |
5,046 |
97.88 |
$494 |
$126 |
|||||
|
2022 |
57,589 |
43,695 |
4,805 |
0 |
4,805 |
99.50 |
$478 |
$152 |
|||||
|
2021 |
41,615 |
41,615 |
4,577 |
0 |
4,577 |
99.52 |
$456 |
$0 |
|||||
| Property Account Status/Adjustments/Exemptions | ||||||
|---|---|---|---|---|---|---|
| Account # | Exemption Description | Amount | ||||
| No adjustment/exemption records returned. | ||||||
| Property Deed Transaction History (Recorded in the County Clerk's Office) | ||||||||||
|---|---|---|---|---|---|---|---|---|---|---|
| Date | Type | Book | Page | Price | Grantor | Grantee | ||||
|
1/21/2025 |
|
Deeds |
$82,000 |
LANDERS JOSHUA |
WILSON ELISHA WESLEY JR |
|||||
|
6/13/2024 |
|
Hmstd Off & |
$0 |
CRAIG MARANDA L |
CRAIG ANITA LYNNE |
|||||
|
6/12/2024 |
|
Deeds |
$75,000 |
CRAIG ANITA LYNNE |
LANDERS JOSHUA |
|||||
|
4/29/2011 |
|
Deeds |
$51,000 |
ROBERTS KRISSY L |
CRAIG MARANDA L |
|||||
|
10/28/2009 |
|
Other |
$0 |
CRAIG ROBERT V & BETTY D |
ROBERTS KRISSY L |
|||||
| Last Mailed Notice of Value (N.O.V.) Information/History | ||||||||
|---|---|---|---|---|---|---|---|---|
| Year | Date | Market Value | Taxable Market Value | Gross Assessed | Exemption | Net Assessed | ||
|
2026 |
02/06/2026 |
75,082 |
75,082 |
8,259 |
0 |
8,259 |
||
|
2025 |
01/31/2025 |
75,000 |
75,000 |
8,250 |
0 |
8,250 |
||
|
2025 |
03/28/2025 |
75,000 |
75,000 |
8,250 |
0 |
8,250 |
||
|
2024 |
01/22/2024 |
57,589 |
48,172 |
5,298 |
0 |
5,298 |
||
|
2023 |
01/23/2023 |
57,589 |
45,879 |
5,046 |
0 |
5,046 |
||
| Property Building Permit History | |||||||||||
|---|---|---|---|---|---|---|---|---|---|---|---|
| Issued | Permit # | Provided by | Bldg # | Description | Est Construction Cost | Status | |||||
| No Building Permit records returned. | |||||||||||
| Click button on building number to access detailed information: | ||||||
|---|---|---|---|---|---|---|
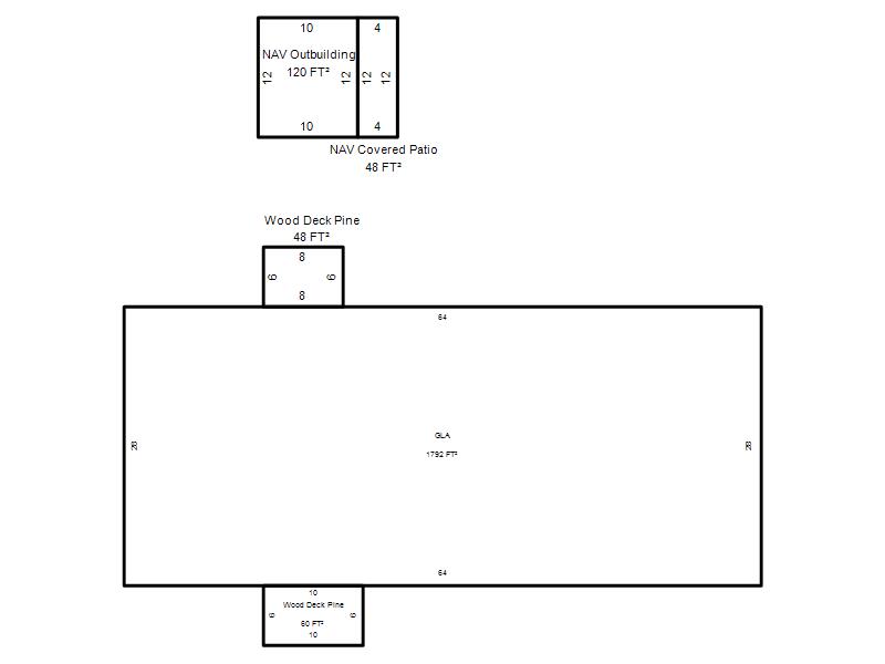
| Bldg # | Vacant/Improved Land | Bldg Description | Year Built | SqFt | # Stories | |
|
1 |
Improved |
Double Wide |
1997 |
1,792 |
1 Stories |
|