|
|
|
| Larry Stein Oklahoma County Assessor (405) 713-1200 - Public Access System |
|
|
|
|
|
|
| Real Property Display - Screen Produced 2/27/2026 8:38:28 AM | ||||
|---|---|---|---|---|
| Account: R260122135 | Type: Residential | Location: |
21320 PIONEER CIR |
|
| Building Name/Occupant: |
|
UNINCORPORATED |
||
| Owner Name 1: | SMITH EVERETT R |
Parcel PIN#: |
2048-26-012-2135 |
|
| Owner Name 2: | 1/4 section #: |
2048 |
||
| Owner Name 3: | Parent Acct: |
|
||
| Billing Address: | 21320 PIONEER CIR | Tax District: |
|
|
| City, State, Zip | HARRAH, OK 73045 | School System: |
Harrah #7 |
|
|
Country: (If noted) |
Land Size: |
2.5300 Acres |
||
|
Land Value: 20,999 |
|
|||
|
Sect 12-T12N-R1E Qtr NW |
ELK TOWNSHIP
Block
000
Lot
000
|
|||
| Full Legal Description: ELK TOWNSHIP 000 000 PT NW4 SEC 12 12N 1E BEG 1326.82FT W & 1224.25FT S OF NE/C NW4 TH S266.6FT E502.34FT NW255.1FT NE21.30FT W443.58FT TO BEG CONT 2.87ACRS MORE OR LESS EX W50FT |
| No comparable sales report available. | ||||||||||||||||||||||
|
||||||||||||||||||||||
| Value History (*The County Treasurer 405-713-1300 posts & collects actual tax amounts. Contact information HERE) | |||||||||||||
|---|---|---|---|---|---|---|---|---|---|---|---|---|---|
| Year | Market Value | Taxable Mkt Value | Gross Assessed | Exemption | Net Assessed | Millage | Est. Tax | Tax Savings | |||||
|
2025 |
22,609 |
22,413 |
2,465 |
1,000 |
1,465 |
107.54 |
$158 |
$110 |
|||||
|
2024 |
22,609 |
22,413 |
2,465 |
1,000 |
1,465 |
110.62 |
$162 |
$113 |
|||||
|
2023 |
22,609 |
22,413 |
2,465 |
1,000 |
1,465 |
97.88 |
$143 |
$100 |
|||||
|
2022 |
22,539 |
22,413 |
2,465 |
1,000 |
1,465 |
99.50 |
$146 |
$101 |
|||||
|
2021 |
22,758 |
22,413 |
2,465 |
1,000 |
1,465 |
99.52 |
$146 |
$103 |
|||||
| Property Account Status/Adjustments/Exemptions | ||
|---|---|---|
| Account # | Exemption Description | Amount |
|
R260122135 |
Freeze Senior Valuation |
0 |
|
R260122135 |
Homestead |
1,000 |
|
R260122135 |
3% Cap Homestead |
0 |
| Property Deed Transaction History (Recorded in the County Clerk's Office) | |||||||
|---|---|---|---|---|---|---|---|
| Date | Type | Book | Page | Price | Grantor | Grantee | |
|
3/29/2023 |
|
Deeds |
$0 |
SMITH EVERETT R |
SMITH BRETT LYNN |
||
|
12/1/2004 |
|
Deeds |
$25,000 |
JACKSON HOLLIS |
SMITH EVERETT R |
||
|
9/23/1994 |
|
Historical |
$0 |
JACKSON HOLLIS |
JACKSON HOLLIS |
||
|
7/20/1987 |
|
Historical |
$0 |
|
JACKSON HOLLIS |
||
| Last Mailed Notice of Value (N.O.V.) Information/History | ||||||||
|---|---|---|---|---|---|---|---|---|
| Year | Date | Market Value | Taxable Market Value | Gross Assessed | Exemption | Net Assessed | ||
|
2026 |
02/06/2026 |
22,787 |
22,413 |
2,465 |
1,000 |
1,465 |
||
|
2023 |
01/23/2023 |
22,609 |
22,413 |
2,465 |
1,000 |
1,465 |
||
|
2019 |
02/26/2019 |
22,758 |
22,413 |
2,466 |
1,000 |
1,466 |
||
|
2018 |
04/09/2018 |
22,665 |
22,413 |
2,466 |
1,000 |
1,466 |
||
|
2017 |
03/24/2017 |
22,554 |
22,413 |
|
|
|
||
| Property Building Permit History | |||||||||||
|---|---|---|---|---|---|---|---|---|---|---|---|
| Issued | Permit # | Provided by | Bldg # | Description | Est Construction Cost | Status | |||||
| No Building Permit records returned. | |||||||||||
| Click button on building number to access detailed information: | ||||||
|---|---|---|---|---|---|---|
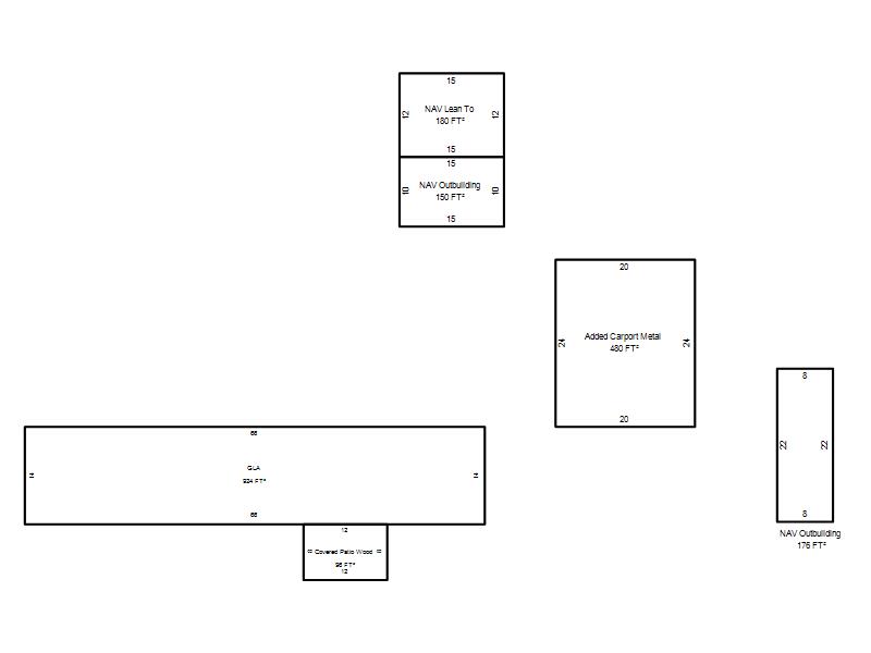
| Bldg # | Vacant/Improved Land | Bldg Description | Year Built | SqFt | # Stories | |
|
1 |
Improved |
Single Wide |
1981 |
924 |
1 Stories |
|