|
|
|
| Larry Stein Oklahoma County Assessor (405) 713-1200 - Public Access System |
|
|
|
|
|
|
| Real Property Display - Screen Produced 3/11/2026 11:41:44 PM | ||||
|---|---|---|---|---|
| Account: R206881270 | Type: Residential | Location: |
290 HILLSIDE DR |
|
| Building Name/Occupant: |
|
HARRAH |
||
| Owner Name 1: | HOWARD DANIEL J |
Parcel PIN#: |
1005-20-688-1270 |
|
| Owner Name 2: | 1/4 section #: |
1005 |
||
| Owner Name 3: | Parent Acct: |
1005-26-702-1000 |
||
| Billing Address: | 21310 PIONEER CIR | Tax District: |
|
|
| City, State, Zip | HARRAH, OK 73045 | School System: |
Harrah #7 |
|
|
Country: (If noted) |
Land Size: |
0.5022 Acres |
||
|
Land Value: 45,938 |
|
|||
|
Sect 2-T11N-R1E Qtr NE |
FALL CREEK ESTATES
Block
004
Lot
009
|
|||
| Full Legal Description: FALL CREEK ESTATES BLK 004 LOT 009 |
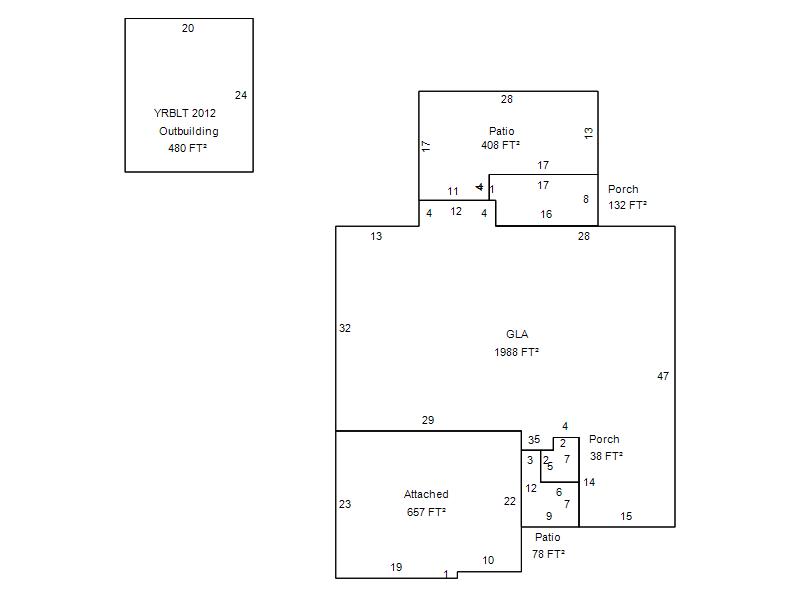
| Photo & Sketch (if available) | Comp Sales (ordered by relevancy) |
|
||||||||||||||||||
|
||||||||||||||||||||
| Value History (*The County Treasurer 405-713-1300 posts & collects actual tax amounts. Contact information HERE) | |||||||||||||
|---|---|---|---|---|---|---|---|---|---|---|---|---|---|
| Year | Market Value | Taxable Mkt Value | Gross Assessed | Exemption | Net Assessed | Millage | Est. Tax | Tax Savings | |||||
|
2025 |
303,500 |
303,500 |
33,385 |
0 |
33,385 |
107.54 |
$3,590 |
$0 |
|||||
|
2024 |
296,500 |
296,500 |
32,615 |
0 |
32,615 |
110.62 |
$3,608 |
$0 |
|||||
|
2023 |
301,000 |
301,000 |
33,110 |
0 |
33,110 |
97.88 |
$3,241 |
$0 |
|||||
|
2022 |
242,000 |
215,362 |
23,688 |
1,000 |
22,688 |
99.50 |
$2,258 |
$391 |
|||||
|
2021 |
217,500 |
209,090 |
22,999 |
1,000 |
21,999 |
99.52 |
$2,189 |
$192 |
|||||
| Property Account Status/Adjustments/Exemptions | ||
|---|---|---|
| Account # | Exemption Description | Amount |
|
R206881270 |
5% Capped Account |
0 |
| Property Deed Transaction History (Recorded in the County Clerk's Office) | |||||||
|---|---|---|---|---|---|---|---|
| Date | Type | Book | Page | Price | Grantor | Grantee | |
|
1/31/2022 |
|
Deeds |
$300,000 |
MORGAN BRIAN G & STEPHANIE D |
HOWARD DANIEL J |
||
|
10/25/2013 |
|
Deeds |
$224,000 |
WEESTON ROBERT |
MORGAN BRIAN G & STEPHANIE D |
||
|
8/12/2010 |
|
Deeds |
$0 |
WEESTON ROBERT B & KAYLON |
WEESTON ROBERT |
||
|
3/5/2009 |
|
Deeds |
$196,000 |
GENTRY CONSTRUCTION INC |
WEESTON ROBERT B & KAYLON |
||
|
4/17/2006 |
|
Deeds |
$26,500 |
MIDWEST DEVELOPMENT LLC |
GENTRY CONSTRUCTION INC |
||
| Last Mailed Notice of Value (N.O.V.) Information/History | ||||||||
|---|---|---|---|---|---|---|---|---|
| Year | Date | Market Value | Taxable Market Value | Gross Assessed | Exemption | Net Assessed | ||
|
2026 |
02/06/2026 |
310,000 |
310,000 |
34,100 |
0 |
34,100 |
||
|
2025 |
01/31/2025 |
303,500 |
303,500 |
33,385 |
0 |
33,385 |
||
|
2023 |
01/23/2023 |
301,000 |
301,000 |
33,110 |
0 |
33,110 |
||
|
2022 |
02/22/2022 |
242,000 |
215,362 |
23,688 |
1,000 |
22,688 |
||
|
2021 |
02/24/2021 |
217,500 |
209,090 |
22,999 |
1,000 |
21,999 |
||
| Property Building Permit History | ||||||
|---|---|---|---|---|---|---|
| Issued | Permit # | Provided by | Bldg # | Description | Est Construction Cost | Status |
|
7/11/2006 |
10325166 |
HARRAH |
1 |
Main Dwellin |
2,006 |
Inactive |
| Click button on building number to access detailed information: | ||||||
|---|---|---|---|---|---|---|
| Bldg # | Vacant/Improved Land | Bldg Description | Year Built | SqFt | # Stories | |
|
1 |
Improved |
Ranch 1 Story |
2006 |
1,988 |
1 Stories |
|