|
|
|
| Larry Stein Oklahoma County Assessor (405) 713-1200 - Public Access System |
|
|
|
|
|
|
| Real Property Display - Screen Produced 3/20/2026 9:00:21 AM | ||||
|---|---|---|---|---|
| Account: R198299980 | Type: Residential | Location: |
20676 NE ELM ST |
|
| Building Name/Occupant: |
|
HARRAH |
||
| Owner Name 1: | REAVES JAY CHARLES |
Parcel PIN#: |
2101-19-829-9980 |
|
| Owner Name 2: | 1/4 section #: |
2101 |
||
| Owner Name 3: | Parent Acct: |
|
||
| Billing Address: | 20441 WALKER ST | Tax District: |
|
|
| City, State, Zip | HARRAH, OK 73045-9114 | School System: |
Harrah #7 |
|
|
Country: (If noted) |
Land Size: |
0.2583 Acres |
||
|
Land Value: 17,438 |
|
|||
|
Sect 26-T12N-R1E Qtr NE |
NAVARRES ADDITION
Block
000
Lot
000
|
|||
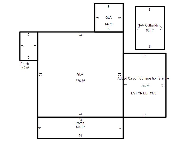
| Full Legal Description: NAVARRES ADDITION 000 000 PT NE4 SEC 26 12N 1E BEG 60FT S & 60FT W OF SW/C OF LOT 13 BLK 5 TH S150FT W75FT N150FT E75FT TO BEG |
| Photo & Sketch (if available) | Comp Sales (ordered by relevancy) |
|
||||||||||||||||||
|
||||||||||||||||||||
| Value History (*The County Treasurer 405-713-1300 posts & collects actual tax amounts. Contact information HERE) | |||||||||||||
|---|---|---|---|---|---|---|---|---|---|---|---|---|---|
| Year | Market Value | Taxable Mkt Value | Gross Assessed | Exemption | Net Assessed | Millage | Est. Tax | Tax Savings | |||||
|
2025 |
76,500 |
38,779 |
4,265 |
0 |
4,265 |
107.54 |
$459 |
$446 |
|||||
|
2024 |
63,000 |
36,933 |
4,062 |
0 |
4,062 |
110.62 |
$449 |
$317 |
|||||
|
2023 |
64,000 |
35,175 |
3,869 |
0 |
3,869 |
97.88 |
$379 |
$310 |
|||||
|
2022 |
33,500 |
33,500 |
3,685 |
0 |
3,685 |
99.50 |
$367 |
$0 |
|||||
|
2021 |
33,500 |
33,500 |
3,685 |
0 |
3,685 |
99.52 |
$367 |
$0 |
|||||
| Property Account Status/Adjustments/Exemptions | ||
|---|---|---|
| Account # | Exemption Description | Amount |
|
R198299980 |
5% Capped Account |
0 |
| Property Deed Transaction History (Recorded in the County Clerk's Office) | ||||||||||
|---|---|---|---|---|---|---|---|---|---|---|
| Date | Type | Book | Page | Price | Grantor | Grantee | ||||
|
1/26/2016 |
|
Deeds |
$33,500 |
RENNELL PATRICIA ANN |
REAVES JAY CHARLES |
|||||
|
3/31/2011 |
|
Hmstd Off & |
$0 |
RENNELL STEPHEN L |
RENNELL PATRICIA ANN |
|||||
|
10/14/2010 |
|
Deeds |
$0 |
RENNELL STEPHEN L & PATRICIA A TRS RENNELL STEPHEN & PATRICI |
RENNELL STEPHEN L RENNELL PATRICIA ANN |
|||||
|
11/22/2005 |
|
Deeds |
$35,000 |
TYTENICZ PETER & MARY TRUSTEES PETER & MARY TYTENICZ FAMILY |
RENNELL STEPHEN L & PATRICIA A TRS RENNELL STEPHEN & PATRICI |
|||||
|
10/23/2000 |
|
Deeds |
$0 |
TYTENICZ PETE & MARY F |
TYTENICZ PETER & MARY TRUSTEES PETER & MARY TYTENICZ FAMILY |
|||||
| Last Mailed Notice of Value (N.O.V.) Information/History | ||||||||
|---|---|---|---|---|---|---|---|---|
| Year | Date | Market Value | Taxable Market Value | Gross Assessed | Exemption | Net Assessed | ||
|
2026 |
02/06/2026 |
87,500 |
40,717 |
4,478 |
0 |
4,478 |
||
|
2025 |
01/31/2025 |
76,500 |
38,779 |
4,265 |
0 |
4,265 |
||
|
2024 |
01/22/2024 |
63,000 |
36,933 |
4,062 |
0 |
4,062 |
||
|
2023 |
01/23/2023 |
64,000 |
35,175 |
3,869 |
0 |
3,869 |
||
|
2016 |
02/26/2016 |
38,500 |
36,168 |
3,978 |
0 |
3,978 |
||
| Property Building Permit History | |||||||||||
|---|---|---|---|---|---|---|---|---|---|---|---|
| Issued | Permit # | Provided by | Bldg # | Description | Est Construction Cost | Status | |||||
| No Building Permit records returned. | |||||||||||
| Click button on building number to access detailed information: | ||||||
|---|---|---|---|---|---|---|
| Bldg # | Vacant/Improved Land | Bldg Description | Year Built | SqFt | # Stories | |
|
1 |
Improved |
Ranch 1 Story |
1930 |
640 |
1 Stories |
|