|
|
|
| Larry Stein Oklahoma County Assessor (405) 713-1200 - Public Access System |
|
|
|
|
|
|
| Real Property Display - Screen Produced 3/18/2026 10:58:11 PM | ||||
|---|---|---|---|---|
| Account: R197971030 | Type: Residential | Location: |
1333 N PEEBLY RD |
|
| Building Name/Occupant: |
|
HARRAH |
||
| Owner Name 1: | NEBGEN PATRICK A & ADDIE M COTRS |
Parcel PIN#: |
2114-19-797-1030 |
|
| Owner Name 2: | NEBGEN FAMILY REV TRUST | 1/4 section #: |
2114 |
|
| Owner Name 3: | Parent Acct: |
|
||
| Billing Address: | 1333 N PEEBLY RD | Tax District: |
|
|
| City, State, Zip | CHOCTAW, OK 73020-7956 | School System: |
Choctaw #4 |
|
|
Country: (If noted) |
Land Size: |
1.3500 Acres |
||
|
Land Value: 46,710 |
|
|||
|
Sect 29-T12N-R1E Qtr SE |
GILLESPIE ESTATES 2ND
Block
001
Lot
000
|
|||
| Full Legal Description: GILLESPIE ESTATES 2ND 001 000 LOTS 3 & 4 |
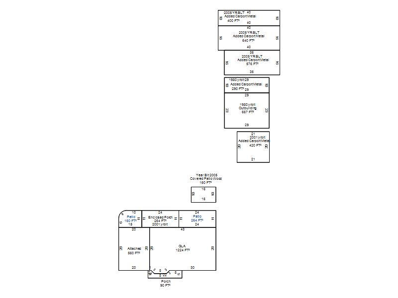
| Photo & Sketch (if available) | Comp Sales (ordered by relevancy) |
|
||||||||||||||||||
|
||||||||||||||||||||
| Value History (*The County Treasurer 405-713-1300 posts & collects actual tax amounts. Contact information HERE) | |||||||||||||
|---|---|---|---|---|---|---|---|---|---|---|---|---|---|
| Year | Market Value | Taxable Mkt Value | Gross Assessed | Exemption | Net Assessed | Millage | Est. Tax | Tax Savings | |||||
|
2025 |
250,000 |
166,644 |
18,330 |
1,000 |
17,330 |
117.21 |
$2,031 |
$1,192 |
|||||
|
2024 |
213,500 |
161,791 |
17,796 |
1,000 |
16,796 |
116.35 |
$1,954 |
$778 |
|||||
|
2023 |
208,500 |
157,079 |
17,278 |
1,000 |
16,278 |
117.10 |
$1,906 |
$779 |
|||||
|
2022 |
211,500 |
152,504 |
16,774 |
1,000 |
15,774 |
115.17 |
$1,817 |
$863 |
|||||
|
2021 |
149,500 |
148,063 |
16,286 |
1,000 |
15,286 |
115.06 |
$1,759 |
$133 |
|||||
| Property Account Status/Adjustments/Exemptions | ||
|---|---|---|
| Account # | Exemption Description | Amount |
|
R197971030 |
3% Cap Homestead |
0 |
|
R197971030 |
Homestead |
1,000 |
| Property Deed Transaction History (Recorded in the County Clerk's Office) | |||||||
|---|---|---|---|---|---|---|---|
| Date | Type | Book | Page | Price | Grantor | Grantee | |
|
8/5/2004 |
|
Deeds |
$0 |
NEBGEN P A & ADDIE M |
NEBGEN PATRICK A & ADDIE M COTRS |
||
|
11/11/1911 |
|
Historical |
$0 |
|
NEBGEN P A & ADDIE M |
||
| Last Mailed Notice of Value (N.O.V.) Information/History | ||||||||
|---|---|---|---|---|---|---|---|---|
| Year | Date | Market Value | Taxable Market Value | Gross Assessed | Exemption | Net Assessed | ||
|
2026 |
02/06/2026 |
244,000 |
171,643 |
18,879 |
1,000 |
17,879 |
||
|
2025 |
01/31/2025 |
250,000 |
166,644 |
18,330 |
1,000 |
17,330 |
||
|
2024 |
01/22/2024 |
213,500 |
161,791 |
17,796 |
1,000 |
16,796 |
||
|
2023 |
01/23/2023 |
208,500 |
157,079 |
17,278 |
1,000 |
16,278 |
||
|
2022 |
02/22/2022 |
211,500 |
152,504 |
16,774 |
1,000 |
15,774 |
||
| Property Building Permit History | ||||||
|---|---|---|---|---|---|---|
| Issued | Permit # | Provided by | Bldg # | Description | Est Construction Cost | Status |
|
4/3/2001 |
10263769 |
HARRAH |
1 |
Remodeled |
4,500 |
Inactive |
|
5/10/2000 |
10263768 |
HARRAH |
1 |
Other |
15,000 |
Inactive |
|
4/10/1992 |
10263767 |
HARRAH |
1 |
Carport |
0 |
Inactive |
| Click button on building number to access detailed information: | ||||||
|---|---|---|---|---|---|---|
| Bldg # | Vacant/Improved Land | Bldg Description | Year Built | SqFt | # Stories | |
|
1 |
Improved |
Ranch 1 Story |
1973 |
1,224 |
1 Stories |
|