|
|
|
| Larry Stein Oklahoma County Assessor (405) 713-1200 - Public Access System |
|
|
|
|
|
|
| Real Property Display - Screen Produced 3/18/2026 10:57:28 PM | ||||
|---|---|---|---|---|
| Account: R197971050 | Type: Residential | Location: |
17907 NE 12TH ST |
|
| Building Name/Occupant: |
|
HARRAH |
||
| Owner Name 1: | UHRHAN TOBY L |
Parcel PIN#: |
2114-19-797-1050 |
|
| Owner Name 2: | UHRHAN GARY T | 1/4 section #: |
2114 |
|
| Owner Name 3: | Parent Acct: |
|
||
| Billing Address: | 17907 NE 12TH ST | Tax District: |
|
|
| City, State, Zip | CHOCTAW, OK 73020-7451 | School System: |
Choctaw #4 |
|
|
Country: (If noted) |
Land Size: |
2.7700 Acres |
||
|
Land Value: 71,882 |
|
|||
|
Sect 29-T12N-R1E Qtr SE |
GILLESPIE ESTATES 2ND
Block
001
Lot
000
|
|||
| Full Legal Description: GILLESPIE ESTATES 2ND 001 000 LOTS 5 6 & 7 |
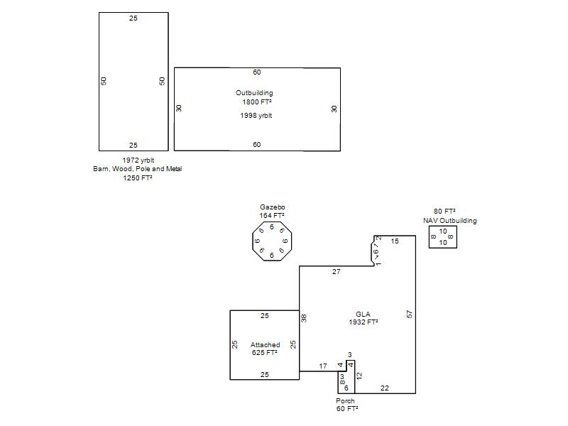
| Photo & Sketch (if available) | Comp Sales (ordered by relevancy) |
|
||||||||||||||||||
|
||||||||||||||||||||
| Value History (*The County Treasurer 405-713-1300 posts & collects actual tax amounts. Contact information HERE) | |||||||||||||
|---|---|---|---|---|---|---|---|---|---|---|---|---|---|
| Year | Market Value | Taxable Mkt Value | Gross Assessed | Exemption | Net Assessed | Millage | Est. Tax | Tax Savings | |||||
|
2025 |
327,500 |
214,060 |
23,545 |
1,000 |
22,545 |
117.21 |
$2,643 |
$1,580 |
|||||
|
2024 |
279,000 |
207,826 |
22,860 |
1,000 |
21,860 |
116.35 |
$2,544 |
$1,027 |
|||||
|
2023 |
273,500 |
201,773 |
22,194 |
1,000 |
21,194 |
117.10 |
$2,482 |
$1,041 |
|||||
|
2022 |
273,500 |
195,897 |
21,548 |
1,000 |
20,548 |
115.17 |
$2,367 |
$1,098 |
|||||
|
2021 |
202,000 |
190,192 |
20,920 |
1,000 |
19,920 |
115.06 |
$2,292 |
$265 |
|||||
| Property Account Status/Adjustments/Exemptions | ||
|---|---|---|
| Account # | Exemption Description | Amount |
|
R197971050 |
3% Cap Homestead |
0 |
|
R197971050 |
Homestead |
1,000 |
| Property Deed Transaction History (Recorded in the County Clerk's Office) | ||||||||||
|---|---|---|---|---|---|---|---|---|---|---|
| Date | Type | Book | Page | Price | Grantor | Grantee | ||||
|
11/10/2006 |
|
Deeds |
$0 |
UHRHAN TOBY L |
UHRHAN TOBY L |
|||||
|
9/20/2006 |
|
Deeds |
$0 |
UHRHAN MARGARET LF EST UHRHAN GARY |
UHRHAN TOBY L |
|||||
|
3/7/2002 |
|
Deeds |
$0 |
UHRHAN GARY WAYNE ESTATE OF |
UHRHAN MARGARET |
|||||
|
11/2/2001 |
|
Deeds |
$0 |
UHRHAN GARY & MARGARET |
UHRHAN MARGARET |
|||||
|
11/2/2001 |
|
Deeds |
$0 |
UHRHAN MARGARET |
UHRHAN MARGARET LF EST UHRHAN GARY |
|||||
| Last Mailed Notice of Value (N.O.V.) Information/History | ||||||||
|---|---|---|---|---|---|---|---|---|
| Year | Date | Market Value | Taxable Market Value | Gross Assessed | Exemption | Net Assessed | ||
|
2026 |
02/06/2026 |
324,000 |
220,481 |
24,252 |
1,000 |
23,252 |
||
|
2025 |
01/31/2025 |
327,500 |
214,060 |
23,545 |
1,000 |
22,545 |
||
|
2024 |
01/22/2024 |
279,000 |
207,826 |
22,860 |
1,000 |
21,860 |
||
|
2023 |
01/23/2023 |
273,500 |
201,773 |
22,194 |
1,000 |
21,194 |
||
|
2022 |
02/22/2022 |
273,500 |
195,897 |
21,547 |
1,000 |
20,547 |
||
| Property Building Permit History | ||||||
|---|---|---|---|---|---|---|
| Issued | Permit # | Provided by | Bldg # | Description | Est Construction Cost | Status |
|
5/12/1998 |
10263771 |
HARRAH |
1 |
Storage Buil |
19,300 |
Inactive |
| Click button on building number to access detailed information: | ||||||
|---|---|---|---|---|---|---|
| Bldg # | Vacant/Improved Land | Bldg Description | Year Built | SqFt | # Stories | |
|
1 |
Improved |
Ranch 1 Story |
1972 |
1,932 |
1 Stories |
|