|
|
|
| Larry Stein Oklahoma County Assessor (405) 713-1200 - Public Access System |
|
|
|
|
|
|
| Real Property Display - Screen Produced 3/19/2026 5:05:24 AM | ||||
|---|---|---|---|---|
| Account: R192707500 | Type: Residential | Location: |
17200 NE 23RD ST |
|
| Building Name/Occupant: |
|
HARRAH |
||
| Owner Name 1: | TFW PROPERTIES I LLC |
Parcel PIN#: |
2116-19-270-7500 |
|
| Owner Name 2: | 1/4 section #: |
2116 |
||
| Owner Name 3: | Parent Acct: |
|
||
| Billing Address: | 966 CHOCTAW VIS | Tax District: |
|
|
| City, State, Zip | CHOCTAW, OK 73020-7493 | School System: |
Choctaw #4 |
|
|
Country: (If noted) |
Land Size: |
12.9790 Acres |
||
|
Land Value: 179,918 |
|
|||
|
Sect 29-T12N-R1E Qtr NW |
UNPLTD PT SEC 29 12N 1E
Block
000
Lot
000
|
|||
| Full Legal Description: UNPLTD PT SEC 29 12N 1E 000 000 PT NW4 SEC 29 12N 1E BEG AT NE/C NW4 NW4 TH S660.16FT W1316.76FT N330.12FT E926.26FT N330FT E396FT TO BEG |
| No comparable sales report available. | ||||||||||||||||||||||
|
||||||||||||||||||||||
| Value History (*The County Treasurer 405-713-1300 posts & collects actual tax amounts. Contact information HERE) | |||||||||||||
|---|---|---|---|---|---|---|---|---|---|---|---|---|---|
| Year | Market Value | Taxable Mkt Value | Gross Assessed | Exemption | Net Assessed | Millage | Est. Tax | Tax Savings | |||||
|
2025 |
186,405 |
108,988 |
11,987 |
0 |
11,987 |
117.21 |
$1,405 |
$998 |
|||||
|
2024 |
163,422 |
103,799 |
11,417 |
0 |
11,417 |
116.35 |
$1,328 |
$763 |
|||||
|
2023 |
163,422 |
98,857 |
10,873 |
0 |
10,873 |
117.10 |
$1,273 |
$832 |
|||||
|
2022 |
163,422 |
94,150 |
10,356 |
0 |
10,356 |
115.17 |
$1,193 |
$878 |
|||||
|
2021 |
89,667 |
89,667 |
9,863 |
0 |
9,863 |
115.06 |
$1,135 |
$0 |
|||||
| Property Account Status/Adjustments/Exemptions | ||
|---|---|---|
| Account # | Exemption Description | Amount |
|
R192707500 |
5% Capped Account |
0 |
| Property Deed Transaction History (Recorded in the County Clerk's Office) | ||||||||||
|---|---|---|---|---|---|---|---|---|---|---|
| Date | Type | Book | Page | Price | Grantor | Grantee | ||||
|
7/27/2016 |
|
Deeds |
$275,000 |
WILLIAMS JULIE R |
TFW PROPERTIES I LLC |
|||||
|
6/10/2016 |
|
Hmstd Off & |
$0 |
MOORE JOHNNIE R |
WILLIAMS JULIE R |
|||||
|
7/25/2011 |
|
Deeds |
$0 |
TRANSFER ON DEATH DEED |
MOORE JOHNNIE R |
|||||
|
6/24/2011 |
|
Deeds |
$0 |
WOLFE HELEN M |
MOORE JOHNNIE R |
|||||
|
1/26/1995 |
|
Deeds |
$0 |
WOLFE HELEN M |
WOLFE HELEN M MOORE JOHNNIE R |
|||||
| Last Mailed Notice of Value (N.O.V.) Information/History | ||||||||
|---|---|---|---|---|---|---|---|---|
| Year | Date | Market Value | Taxable Market Value | Gross Assessed | Exemption | Net Assessed | ||
|
2026 |
02/06/2026 |
189,322 |
114,437 |
12,587 |
0 |
12,587 |
||
|
2025 |
01/31/2025 |
186,405 |
108,988 |
11,987 |
0 |
11,987 |
||
|
2024 |
01/22/2024 |
163,422 |
103,799 |
11,417 |
0 |
11,417 |
||
|
2023 |
01/23/2023 |
163,422 |
98,857 |
10,873 |
0 |
10,873 |
||
|
2022 |
02/22/2022 |
163,422 |
94,150 |
10,356 |
0 |
10,356 |
||
| Property Building Permit History | |||||||||||
|---|---|---|---|---|---|---|---|---|---|---|---|
| Issued | Permit # | Provided by | Bldg # | Description | Est Construction Cost | Status | |||||
| No Building Permit records returned. | |||||||||||
| Click button on building number to access detailed information: | ||||||
|---|---|---|---|---|---|---|
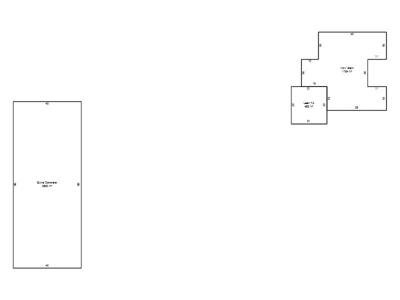
| Bldg # | Vacant/Improved Land | Bldg Description | Year Built | SqFt | # Stories | |
|
1 |
Improved |
Misc Imp - Res |
1954 |
|
|
|