|
|
|
| Larry Stein Oklahoma County Assessor (405) 713-1200 - Public Access System |
|
|
|
|
|
|
| Real Property Display - Screen Produced 3/19/2026 5:08:16 AM | ||||
|---|---|---|---|---|
| Account: R192708000 | Type: Residential | Location: |
17150 NE 23RD ST |
|
| Building Name/Occupant: |
|
HARRAH |
||
| Owner Name 1: | VERNON CALVIN L & GLORIA J |
Parcel PIN#: |
2116-19-270-8000 |
|
| Owner Name 2: | 1/4 section #: |
2116 |
||
| Owner Name 3: | Parent Acct: |
|
||
| Billing Address: | 10812 NE 16TH ST | Tax District: |
|
|
| City, State, Zip | OKLAHOMA CITY, OK 73130-2106 | School System: |
Choctaw #4 |
|
|
Country: (If noted) |
Land Size: |
2.5500 Acres |
||
|
Land Value: 66,799 |
|
|||
|
Sect 29-T12N-R1E Qtr NW |
UNPLTD PT SEC 29 12N 1E
Block
000
Lot
000
|
|||
| Full Legal Description: UNPLTD PT SEC 29 12N 1E 000 000 PT OF NW4 BEG 32RDS E OF NW/C OF NW4 TH E24RDS S20RDS W24RDS N20RDS TO BEG EX N50FT TO STATE |
| No comparable sales report available. | ||||||||||||||||||||||
|
||||||||||||||||||||||
| Value History (*The County Treasurer 405-713-1300 posts & collects actual tax amounts. Contact information HERE) | |||||||||||||
|---|---|---|---|---|---|---|---|---|---|---|---|---|---|
| Year | Market Value | Taxable Mkt Value | Gross Assessed | Exemption | Net Assessed | Millage | Est. Tax | Tax Savings | |||||
|
2025 |
64,710 |
57,055 |
6,275 |
0 |
6,275 |
117.21 |
$736 |
$99 |
|||||
|
2024 |
54,339 |
54,339 |
5,977 |
0 |
5,977 |
116.35 |
$695 |
$0 |
|||||
|
2023 |
54,339 |
54,339 |
5,977 |
0 |
5,977 |
117.10 |
$700 |
$0 |
|||||
|
2022 |
54,339 |
54,339 |
5,977 |
0 |
5,977 |
115.17 |
$688 |
$0 |
|||||
|
2021 |
51,961 |
51,961 |
5,715 |
0 |
5,715 |
115.06 |
$658 |
$0 |
|||||
| Property Account Status/Adjustments/Exemptions | ||
|---|---|---|
| Account # | Exemption Description | Amount |
|
R192708000 |
5% Capped Account |
0 |
| Property Deed Transaction History (Recorded in the County Clerk's Office) | |||||||
|---|---|---|---|---|---|---|---|
| Date | Type | Book | Page | Price | Grantor | Grantee | |
|
4/2/2007 |
|
Deeds |
$140,000 |
ANDERSON RUSSELL L & ELLEN TRS ANDERSON R L & E A TRUST |
VERNON CALVIN L & GLORIA J |
||
|
9/11/1991 |
|
Historical |
$0 |
ANDERSON LEONARD |
ANDERSON RUSSELL L & ELLEN TRS |
||
|
11/11/1911 |
|
Historical |
$0 |
|
ANDERSON LEONARD |
||
| Last Mailed Notice of Value (N.O.V.) Information/History | ||||||||
|---|---|---|---|---|---|---|---|---|
| Year | Date | Market Value | Taxable Market Value | Gross Assessed | Exemption | Net Assessed | ||
|
2026 |
02/06/2026 |
74,544 |
59,907 |
6,589 |
0 |
6,589 |
||
|
2025 |
01/31/2025 |
64,710 |
57,055 |
6,275 |
0 |
6,275 |
||
|
2022 |
02/22/2022 |
54,339 |
54,339 |
5,977 |
0 |
5,977 |
||
|
2019 |
02/26/2019 |
107,526 |
107,109 |
11,782 |
0 |
11,782 |
||
|
2018 |
04/09/2018 |
113,824 |
102,009 |
11,221 |
0 |
11,221 |
||
| Property Building Permit History | ||||||
|---|---|---|---|---|---|---|
| Issued | Permit # | Provided by | Bldg # | Description | Est Construction Cost | Status |
|
3/9/2017 |
10493081 |
NICOMA PARK |
1 |
Remodeled |
0 |
Inactive |
| Click button on building number to access detailed information: | ||||||
|---|---|---|---|---|---|---|
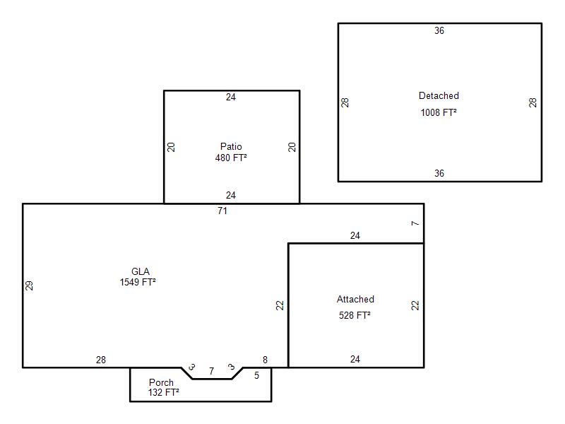
| Bldg # | Vacant/Improved Land | Bldg Description | Year Built | SqFt | # Stories | |
|
1 |
Improved |
Salvage |
1973 |
1,549 |
1 Stories |
|