|
|
|
| Larry Stein Oklahoma County Assessor (405) 713-1200 - Public Access System |
|
|
|
|
|
|
| Real Property Display - Screen Produced 3/21/2026 5:53:58 AM | ||||
|---|---|---|---|---|
| Account: R192011460 | Type: Residential | Location: |
502 MEADOW LN |
|
| Building Name/Occupant: |
|
HARRAH |
||
| Owner Name 1: | NENNINGER ROBERT |
Parcel PIN#: |
2131-19-201-1460 |
|
| Owner Name 2: | NENNINGER SHANNON | 1/4 section #: |
2131 |
|
| Owner Name 3: | Parent Acct: |
|
||
| Billing Address: | 502 MEADOW LN | Tax District: |
|
|
| City, State, Zip | CHOCTAW, OK 73020 | School System: |
Choctaw #4 |
|
|
Country: (If noted) |
Land Size: |
5.9400 Acres |
||
|
Land Value: 134,719 |
|
|||
|
Sect 33-T12N-R1E Qtr SW |
BILLINGS RIDGEWOOD ESTATES
Block
003
Lot
000
|
|||
| Full Legal Description: BILLINGS RIDGEWOOD ESTATES 003 000 PT LOT 9 BEG S/C LOTS 8&9 TH N105FT NE304.78FT SE145.25FT S92.36FT W271.60FT LEFT ON CURVE 53.52FT TO BEG PLUS PT LOT 9 BEG 105FT N OF S/C OF LOTS 8&9 TH N231FT E660.17FT S396FT W601.19FT LEFT ON CURVE 39.10FT E271.6FT N92.36FT NW145.25FT SW304.78FT TO BEG AKA ALL OF LOT 9 |
| No comparable sales report available. | ||||||||||||||||||||||
|
||||||||||||||||||||||
| Value History (*The County Treasurer 405-713-1300 posts & collects actual tax amounts. Contact information HERE) | |||||||||||||
|---|---|---|---|---|---|---|---|---|---|---|---|---|---|
| Year | Market Value | Taxable Mkt Value | Gross Assessed | Exemption | Net Assessed | Millage | Est. Tax | Tax Savings | |||||
|
2025 |
570,932 |
504,030 |
55,442 |
1,000 |
54,442 |
117.21 |
$6,381 |
$980 |
|||||
|
2024 |
504,441 |
489,350 |
53,827 |
1,000 |
52,827 |
116.35 |
$6,147 |
$309 |
|||||
|
2023 |
475,098 |
475,098 |
52,260 |
1,000 |
51,260 |
117.10 |
$6,003 |
$117 |
|||||
|
2022 |
473,374 |
473,374 |
52,071 |
1,000 |
51,071 |
115.17 |
$5,882 |
$115 |
|||||
|
2021 |
390,000 |
390,000 |
42,900 |
1,000 |
41,900 |
115.06 |
$4,821 |
$115 |
|||||
| Property Account Status/Adjustments/Exemptions | ||
|---|---|---|
| Account # | Exemption Description | Amount |
|
R192011460 |
3% Cap Homestead |
0 |
|
R192011460 |
Homestead |
1,000 |
| Property Deed Transaction History (Recorded in the County Clerk's Office) | ||||||||||
|---|---|---|---|---|---|---|---|---|---|---|
| Date | Type | Book | Page | Price | Grantor | Grantee | ||||
|
9/21/2021 |
|
Deeds |
$0 |
DOTSON DONALD L & ELIZABETH M |
DOTSON ELIZABETH M |
|||||
|
9/21/2021 |
|
Deeds |
$491,000 |
DOTSON ELIZABETH M |
NENNINGER ROBERT |
|||||
|
12/6/2017 |
|
Deeds |
$390,000 |
FOOS REBECCA L |
DOTSON DONALD L & ELIZABETH M |
|||||
|
6/28/2011 |
|
Mult Parcel |
$285,000 |
MARTIN CURTIS R & LESTA CO TRS MARTIN CURTIS & LESTA FAMILY |
FOOS REBECCA L |
|||||
|
5/24/2010 |
|
Deeds |
$0 |
MARTIN EMMA LOU ESTATE OF |
MARTIN CURTIS R |
|||||
| Last Mailed Notice of Value (N.O.V.) Information/History | ||||||||
|---|---|---|---|---|---|---|---|---|
| Year | Date | Market Value | Taxable Market Value | Gross Assessed | Exemption | Net Assessed | ||
|
2025 |
01/31/2025 |
570,932 |
504,030 |
55,442 |
1,000 |
54,442 |
||
|
2024 |
01/22/2024 |
504,441 |
489,350 |
53,827 |
1,000 |
52,827 |
||
|
2023 |
01/23/2023 |
475,098 |
475,098 |
52,260 |
1,000 |
51,260 |
||
|
2022 |
02/22/2022 |
473,374 |
473,374 |
52,071 |
1,000 |
51,071 |
||
|
2018 |
04/09/2018 |
463,377 |
463,377 |
50,972 |
1,000 |
49,972 |
||
| Property Building Permit History | |||||||||||
|---|---|---|---|---|---|---|---|---|---|---|---|
| Issued | Permit # | Provided by | Bldg # | Description | Est Construction Cost | Status | |||||
| No Building Permit records returned. | |||||||||||
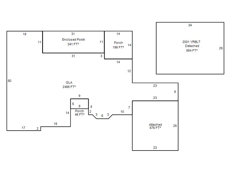
| Click button on building number to access detailed information: | ||||||
|---|---|---|---|---|---|---|
| Bldg # | Vacant/Improved Land | Bldg Description | Year Built | SqFt | # Stories | |
|
1 |
Improved |
Ranch 1 Story |
1981 |
2,486 |
1 Stories |
|
|
2 |
Improved |
Ranch 1 Story |
1986 |
1,080 |
1 Stories |
|