|
|
|
| Larry Stein Oklahoma County Assessor (405) 713-1200 - Public Access System |
|
|
|
|
|
|
| Real Property Display - Screen Produced 3/25/2026 6:37:31 AM | ||||
|---|---|---|---|---|
| Account: R120051130 | Type: Residential | Location: |
266 WOODLANDS DR |
|
| Building Name/Occupant: |
|
HARRAH |
||
| Owner Name 1: | HODGE SHANE F & ANGELA K |
Parcel PIN#: |
2139-12-005-1130 |
|
| Owner Name 2: | 1/4 section #: |
2139 |
||
| Owner Name 3: | Parent Acct: |
|
||
| Billing Address: | 266 WOODLANDS DR | Tax District: |
|
|
| City, State, Zip | HARRAH, OK 73045-9633 | School System: |
Harrah #7 |
|
|
Country: (If noted) |
Land Size: |
0.2279 Acres |
||
|
Land Value: 28,295 |
|
|||
|
Sect 35-T12N-R1E Qtr SW |
HARVEST HILLS EAST
Block
016
Lot
005
|
|||
| Full Legal Description: HARVEST HILLS EAST 016 005 |
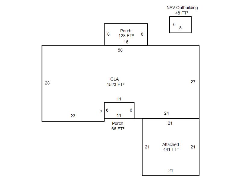
| Photo & Sketch (if available) | Comp Sales (ordered by relevancy) |
|
||||||||||||||||||
|
||||||||||||||||||||
| Value History (*The County Treasurer 405-713-1300 posts & collects actual tax amounts. Contact information HERE) | |||||||||||||
|---|---|---|---|---|---|---|---|---|---|---|---|---|---|
| Year | Market Value | Taxable Mkt Value | Gross Assessed | Exemption | Net Assessed | Millage | Est. Tax | Tax Savings | |||||
|
2025 |
236,500 |
187,611 |
20,636 |
0 |
20,636 |
107.54 |
$2,219 |
$578 |
|||||
|
2024 |
222,000 |
178,678 |
19,653 |
0 |
19,653 |
110.62 |
$2,174 |
$527 |
|||||
|
2023 |
213,000 |
170,170 |
18,718 |
0 |
18,718 |
97.88 |
$1,832 |
$461 |
|||||
|
2022 |
179,500 |
162,067 |
17,826 |
0 |
17,826 |
99.50 |
$1,774 |
$191 |
|||||
|
2021 |
157,500 |
154,350 |
16,978 |
0 |
16,978 |
99.52 |
$1,690 |
$34 |
|||||
| Property Account Status/Adjustments/Exemptions | ||
|---|---|---|
| Account # | Exemption Description | Amount |
|
R120051130 |
5% Capped Account |
0 |
| Property Deed Transaction History (Recorded in the County Clerk's Office) | ||||||||||
|---|---|---|---|---|---|---|---|---|---|---|
| Date | Type | Book | Page | Price | Grantor | Grantee | ||||
|
2/28/2006 |
|
Deeds |
$0 |
OLESNEVICH CURT D OLESNEVICH PAMELA S |
OLESNEVICH CURT D & PAMELA S |
|||||
|
2/28/2006 |
|
Deeds |
$130,000 |
OLESNEVICH CURT D & PAMELA S |
HODGE SHANE F & ANGELA K |
|||||
|
11/30/2000 |
|
Deeds |
$0 |
OLESNEVICH CURT D |
OLESNEVICH CURT D OLESNEVICH PAMELA S |
|||||
|
6/30/1999 |
|
Deeds |
$105,000 |
NORTH STAR HOMES LLC |
OLESNEVICH CURT D |
|||||
|
11/12/1997 |
|
Historical |
$0 |
NORTH STAR LLC |
NORTH STAR HOMES LLC |
|||||
| Last Mailed Notice of Value (N.O.V.) Information/History | ||||||||
|---|---|---|---|---|---|---|---|---|
| Year | Date | Market Value | Taxable Market Value | Gross Assessed | Exemption | Net Assessed | ||
|
2026 |
02/06/2026 |
232,000 |
196,991 |
21,668 |
0 |
21,668 |
||
|
2025 |
01/31/2025 |
236,500 |
187,611 |
20,636 |
0 |
20,636 |
||
|
2024 |
01/22/2024 |
222,000 |
178,678 |
19,653 |
0 |
19,653 |
||
|
2023 |
01/23/2023 |
213,000 |
170,170 |
18,718 |
0 |
18,718 |
||
|
2022 |
02/22/2022 |
179,500 |
162,067 |
17,826 |
0 |
17,826 |
||
| Property Building Permit History | ||||||
|---|---|---|---|---|---|---|
| Issued | Permit # | Provided by | Bldg # | Description | Est Construction Cost | Status |
|
8/4/1999 |
10206016 |
HARRAH |
1 |
Main Dwellin |
105,000 |
Inactive |
| Click button on building number to access detailed information: | ||||||
|---|---|---|---|---|---|---|
| Bldg # | Vacant/Improved Land | Bldg Description | Year Built | SqFt | # Stories | |
|
1 |
Improved |
Ranch 1 Story |
1999 |
1,523 |
1 Stories |
|