|
|
|
| Larry Stein Oklahoma County Assessor (405) 713-1200 - Public Access System |
|
|
|
|
|
|
| Real Property Display - Screen Produced 3/18/2026 7:09:43 PM | ||||
|---|---|---|---|---|
| Account: R191816170 | Type: Residential | Location: |
20455 PALMER RD |
|
| Building Name/Occupant: |
|
HARRAH |
||
| Owner Name 1: | JEP PROPERTIES LLC |
Parcel PIN#: |
2139-19-181-6170 |
|
| Owner Name 2: | 1/4 section #: |
2139 |
||
| Owner Name 3: | Parent Acct: |
|
||
| Billing Address: | 14580 SE 15TH ST | Tax District: |
|
|
| City, State, Zip | CHOCTAW, OK 73020-7076 | School System: |
Harrah #7 |
|
|
Country: (If noted) |
Land Size: |
0.2443 Acres |
||
|
Land Value: 20,748 |
|
|||
|
Sect 35-T12N-R1E Qtr SW |
ECHO VALLEY SEC 2
Block
006
Lot
017
|
|||
| Full Legal Description: ECHO VALLEY SEC 2 006 017 |
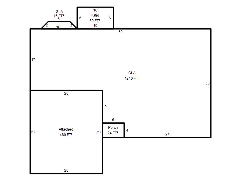
| Photo & Sketch (if available) | Comp Sales (ordered by relevancy) |
|
||||||||||||||||||
|
||||||||||||||||||||
| Value History (*The County Treasurer 405-713-1300 posts & collects actual tax amounts. Contact information HERE) | |||||||||||||
|---|---|---|---|---|---|---|---|---|---|---|---|---|---|
| Year | Market Value | Taxable Mkt Value | Gross Assessed | Exemption | Net Assessed | Millage | Est. Tax | Tax Savings | |||||
|
2025 |
165,500 |
135,922 |
14,950 |
0 |
14,950 |
107.54 |
$1,608 |
$350 |
|||||
|
2024 |
157,000 |
129,450 |
14,239 |
0 |
14,239 |
110.62 |
$1,575 |
$335 |
|||||
|
2023 |
145,000 |
123,286 |
13,560 |
0 |
13,560 |
97.88 |
$1,327 |
$234 |
|||||
|
2022 |
134,500 |
117,416 |
12,915 |
0 |
12,915 |
99.50 |
$1,285 |
$187 |
|||||
|
2021 |
116,000 |
111,825 |
12,300 |
0 |
12,300 |
99.52 |
$1,224 |
$46 |
|||||
| Property Account Status/Adjustments/Exemptions | ||
|---|---|---|
| Account # | Exemption Description | Amount |
|
R191816170 |
5% Capped Account |
0 |
| Property Deed Transaction History (Recorded in the County Clerk's Office) | ||||||||||
|---|---|---|---|---|---|---|---|---|---|---|
| Date | Type | Book | Page | Price | Grantor | Grantee | ||||
|
1/8/2016 |
|
Hmstd Off & |
$0 |
PERINOVIC JAMES J & SONIA G CO TRS |
JEP PROPERTIES LLC |
|||||
|
8/14/2009 |
|
Deeds |
$0 |
PERINOVIC JAMES J & SONIA G |
PERINOVIC JAMES J & SONIA G CO TRS |
|||||
|
4/4/1994 |
|
Historical |
$0 |
DEPARTMENT OF VETERANS AFFAIRS |
PERINOVIC JAMES J & SONIA |
|||||
|
12/2/1993 |
|
Historical |
$0 |
ROSSON BERRY D & MARIE E |
DEPARTMENT OF VETERANS AFFAIRS |
|||||
|
10/16/1991 |
|
Historical |
$44,750 |
SECRETARY OF VETERANS AFFAIRS |
ROSSON BERRY D & MARIE E |
|||||
| Last Mailed Notice of Value (N.O.V.) Information/History | ||||||||
|---|---|---|---|---|---|---|---|---|
| Year | Date | Market Value | Taxable Market Value | Gross Assessed | Exemption | Net Assessed | ||
|
2026 |
02/06/2026 |
167,000 |
142,718 |
15,698 |
0 |
15,698 |
||
|
2025 |
01/31/2025 |
165,500 |
135,922 |
14,950 |
0 |
14,950 |
||
|
2024 |
01/22/2024 |
157,000 |
129,450 |
14,239 |
0 |
14,239 |
||
|
2023 |
01/23/2023 |
145,000 |
123,286 |
13,560 |
0 |
13,560 |
||
|
2022 |
02/22/2022 |
134,500 |
117,416 |
12,915 |
0 |
12,915 |
||
| Property Building Permit History | |||||||||||
|---|---|---|---|---|---|---|---|---|---|---|---|
| Issued | Permit # | Provided by | Bldg # | Description | Est Construction Cost | Status | |||||
| No Building Permit records returned. | |||||||||||
| Click button on building number to access detailed information: | ||||||
|---|---|---|---|---|---|---|
| Bldg # | Vacant/Improved Land | Bldg Description | Year Built | SqFt | # Stories | |
|
1 |
Improved |
Ranch 1 Story |
1980 |
1,232 |
1 Stories |
|