|
|
|
| Larry Stein Oklahoma County Assessor (405) 713-1200 - Public Access System |
|
|
|
|
|
|
| Real Property Display - Screen Produced 3/18/2026 7:06:13 PM | ||||
|---|---|---|---|---|
| Account: R191817170 | Type: Residential | Location: |
451 ECHO LN |
|
| Building Name/Occupant: |
|
HARRAH |
||
| Owner Name 1: | DUNN STEPHANIE LEE & DANIEL LEE |
Parcel PIN#: |
2139-19-181-7170 |
|
| Owner Name 2: | 1/4 section #: |
2139 |
||
| Owner Name 3: | Parent Acct: |
|
||
| Billing Address: | 451 ECHO LN | Tax District: |
|
|
| City, State, Zip | HARRAH, OK 73045 | School System: |
Harrah #7 |
|
|
Country: (If noted) |
Land Size: |
0.3246 Acres |
||
|
Land Value: 27,573 |
|
|||
|
Sect 35-T12N-R1E Qtr SW |
ECHO VALLEY SEC 2
Block
007
Lot
018
|
|||
| Full Legal Description: ECHO VALLEY SEC 2 007 018 |
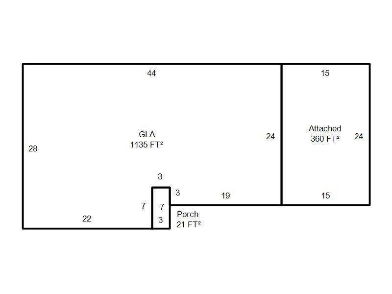
| Photo & Sketch (if available) | Comp Sales (ordered by relevancy) |
|
||||||||||||||||||
|
||||||||||||||||||||
| Value History (*The County Treasurer 405-713-1300 posts & collects actual tax amounts. Contact information HERE) | |||||||||||||
|---|---|---|---|---|---|---|---|---|---|---|---|---|---|
| Year | Market Value | Taxable Mkt Value | Gross Assessed | Exemption | Net Assessed | Millage | Est. Tax | Tax Savings | |||||
|
2025 |
177,000 |
132,765 |
14,603 |
1,000 |
13,603 |
107.54 |
$1,463 |
$631 |
|||||
|
2024 |
167,500 |
128,899 |
14,177 |
1,000 |
13,177 |
110.62 |
$1,458 |
$580 |
|||||
|
2023 |
153,000 |
125,145 |
13,765 |
1,000 |
12,765 |
97.88 |
$1,250 |
$398 |
|||||
|
2022 |
121,500 |
121,500 |
13,365 |
1,000 |
12,365 |
99.50 |
$1,230 |
$100 |
|||||
|
2021 |
121,500 |
121,500 |
13,365 |
1,000 |
12,365 |
99.52 |
$1,231 |
$100 |
|||||
| Property Account Status/Adjustments/Exemptions | ||
|---|---|---|
| Account # | Exemption Description | Amount |
|
R191817170 |
3% Cap Homestead |
0 |
|
R191817170 |
Homestead |
1,000 |
| Property Deed Transaction History (Recorded in the County Clerk's Office) | ||||||||||
|---|---|---|---|---|---|---|---|---|---|---|
| Date | Type | Book | Page | Price | Grantor | Grantee | ||||
|
7/31/2019 |
|
Deeds |
$127,000 |
SULLIVAN SHAUN MICHAEL & AMANDA E |
DUNN STEPHANIE LEE & DANIEL LEE |
|||||
|
7/21/2017 |
|
Deeds |
$114,500 |
GALIZA LLC |
SULLIVAN SHAUN MICHAEL & AMANDA E |
|||||
|
4/12/2017 |
|
Deeds |
$53,500 |
THE BANK OF NEW YORK MELLON |
GALIZA LLC |
|||||
|
3/8/2017 |
|
Deeds |
$65,000 |
BAIR LARRY D & SABRINA A |
THE BANK OF NEW YORK MELLON |
|||||
|
5/20/1999 |
|
Hmstd Off & |
$0 |
SMITH JANET A |
BAIR LARRY D & SABRINA A |
|||||
| Last Mailed Notice of Value (N.O.V.) Information/History | ||||||||
|---|---|---|---|---|---|---|---|---|
| Year | Date | Market Value | Taxable Market Value | Gross Assessed | Exemption | Net Assessed | ||
|
2026 |
02/06/2026 |
178,500 |
136,747 |
15,042 |
1,000 |
14,042 |
||
|
2025 |
01/31/2025 |
177,000 |
132,765 |
14,603 |
1,000 |
13,603 |
||
|
2024 |
01/22/2024 |
167,500 |
128,899 |
14,177 |
1,000 |
13,177 |
||
|
2023 |
01/23/2023 |
153,000 |
125,145 |
13,765 |
1,000 |
12,765 |
||
|
2020 |
02/21/2020 |
121,500 |
121,500 |
13,365 |
1,000 |
12,365 |
||
| Property Building Permit History | |||||||||||
|---|---|---|---|---|---|---|---|---|---|---|---|
| Issued | Permit # | Provided by | Bldg # | Description | Est Construction Cost | Status | |||||
| No Building Permit records returned. | |||||||||||
| Click button on building number to access detailed information: | ||||||
|---|---|---|---|---|---|---|
| Bldg # | Vacant/Improved Land | Bldg Description | Year Built | SqFt | # Stories | |
|
1 |
Improved |
Ranch 1 Story |
1981 |
1,135 |
1 Stories |
|