|
|
|
| Larry Stein Oklahoma County Assessor (405) 713-1200 - Public Access System |
|
|
|
|
|
|
| Real Property Display - Screen Produced 3/18/2026 7:06:12 PM | ||||
|---|---|---|---|---|
| Account: R191819010 | Type: Residential | Location: |
524 ECHO LN |
|
| Building Name/Occupant: |
|
HARRAH |
||
| Owner Name 1: | CHRISTY SHARON & ALLEN |
Parcel PIN#: |
2139-19-181-9010 |
|
| Owner Name 2: | 1/4 section #: |
2139 |
||
| Owner Name 3: | Parent Acct: |
|
||
| Billing Address: | 524 ECHO LN | Tax District: |
|
|
| City, State, Zip | HARRAH, OK 73045 | School System: |
Harrah #7 |
|
|
Country: (If noted) |
Land Size: |
0.2250 Acres |
||
|
Land Value: 19,110 |
|
|||
|
Sect 35-T12N-R1E Qtr SW |
ECHO VALLEY SEC 2
Block
009
Lot
002
|
|||
| Full Legal Description: ECHO VALLEY SEC 2 009 002 |
| Photo & Sketch (if available) | Comp Sales (ordered by relevancy) |
|
||||||||||||||||||
|
||||||||||||||||||||
| Value History (*The County Treasurer 405-713-1300 posts & collects actual tax amounts. Contact information HERE) | |||||||||||||
|---|---|---|---|---|---|---|---|---|---|---|---|---|---|
| Year | Market Value | Taxable Mkt Value | Gross Assessed | Exemption | Net Assessed | Millage | Est. Tax | Tax Savings | |||||
|
2025 |
165,500 |
155,421 |
17,095 |
1,000 |
16,095 |
107.54 |
$1,731 |
$227 |
|||||
|
2024 |
157,500 |
150,895 |
16,598 |
1,000 |
15,598 |
110.62 |
$1,726 |
$191 |
|||||
|
2023 |
146,500 |
146,500 |
16,115 |
1,000 |
15,115 |
97.88 |
$1,479 |
$98 |
|||||
|
2022 |
135,500 |
102,485 |
11,273 |
1,000 |
10,273 |
99.50 |
$1,022 |
$461 |
|||||
|
2021 |
118,000 |
102,485 |
11,273 |
1,000 |
10,273 |
99.52 |
$1,022 |
$269 |
|||||
| Property Account Status/Adjustments/Exemptions | ||
|---|---|---|
| Account # | Exemption Description | Amount |
|
R191819010 |
3% Cap Homestead |
0 |
|
R191819010 |
Homestead |
1,000 |
| Property Deed Transaction History (Recorded in the County Clerk's Office) | |||||||
|---|---|---|---|---|---|---|---|
| Date | Type | Book | Page | Price | Grantor | Grantee | |
|
3/16/2022 |
|
Deeds |
$135,000 |
HENSLEY HENRY L & ROBERTA S |
CHRISTY SHARON & ALLEN |
||
|
4/18/1990 |
|
Historical |
$45,000 |
ADMR OF VETERANS AFFAIRS |
HENSLEY HENRY L & ROBERTA S |
||
|
6/6/1988 |
|
Historical |
$0 |
PAYNE JOE D & JANET E |
ADMR OF VETERANS AFFAIRS |
||
|
11/1/1984 |
|
Historical |
$0 |
|
PAYNE JOE D & JANET E |
||
| Last Mailed Notice of Value (N.O.V.) Information/History | ||||||||
|---|---|---|---|---|---|---|---|---|
| Year | Date | Market Value | Taxable Market Value | Gross Assessed | Exemption | Net Assessed | ||
|
2026 |
02/06/2026 |
167,000 |
160,083 |
17,608 |
1,000 |
16,608 |
||
|
2025 |
01/31/2025 |
165,500 |
155,421 |
17,095 |
1,000 |
16,095 |
||
|
2024 |
01/22/2024 |
157,500 |
150,895 |
16,598 |
1,000 |
15,598 |
||
|
2023 |
01/23/2023 |
146,500 |
146,500 |
16,115 |
1,000 |
15,115 |
||
|
2022 |
02/22/2022 |
135,500 |
102,485 |
11,273 |
1,000 |
10,273 |
||
| Property Building Permit History | |||||||||||
|---|---|---|---|---|---|---|---|---|---|---|---|
| Issued | Permit # | Provided by | Bldg # | Description | Est Construction Cost | Status | |||||
| No Building Permit records returned. | |||||||||||
| Click button on building number to access detailed information: | ||||||
|---|---|---|---|---|---|---|
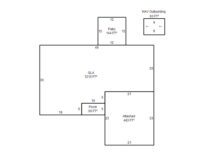
| Bldg # | Vacant/Improved Land | Bldg Description | Year Built | SqFt | # Stories | |
|
1 |
Improved |
Ranch 1 Story |
1980 |
1,210 |
1 Stories |
|