|
|
|
| Larry Stein Oklahoma County Assessor (405) 713-1200 - Public Access System |
|
|
|
|
|
|
| Real Property Display - Screen Produced 3/18/2026 7:09:07 PM | ||||
|---|---|---|---|---|
| Account: R191819120 | Type: Residential | Location: |
356 ECHO LN |
|
| Building Name/Occupant: |
|
HARRAH |
||
| Owner Name 1: | BAILEY GUY E & SHARON E |
Parcel PIN#: |
2139-19-181-9120 |
|
| Owner Name 2: | 1/4 section #: |
2139 |
||
| Owner Name 3: | Parent Acct: |
|
||
| Billing Address: | PO BOX 1066 | Tax District: |
|
|
| City, State, Zip | HARRAH, OK 73045-1066 | School System: |
Harrah #7 |
|
|
Country: (If noted) |
Land Size: |
0.2571 Acres |
||
|
Land Value: 21,840 |
|
|||
|
Sect 35-T12N-R1E Qtr SW |
ECHO VALLEY SEC 2
Block
009
Lot
013
|
|||
| Full Legal Description: ECHO VALLEY SEC 2 009 013 |
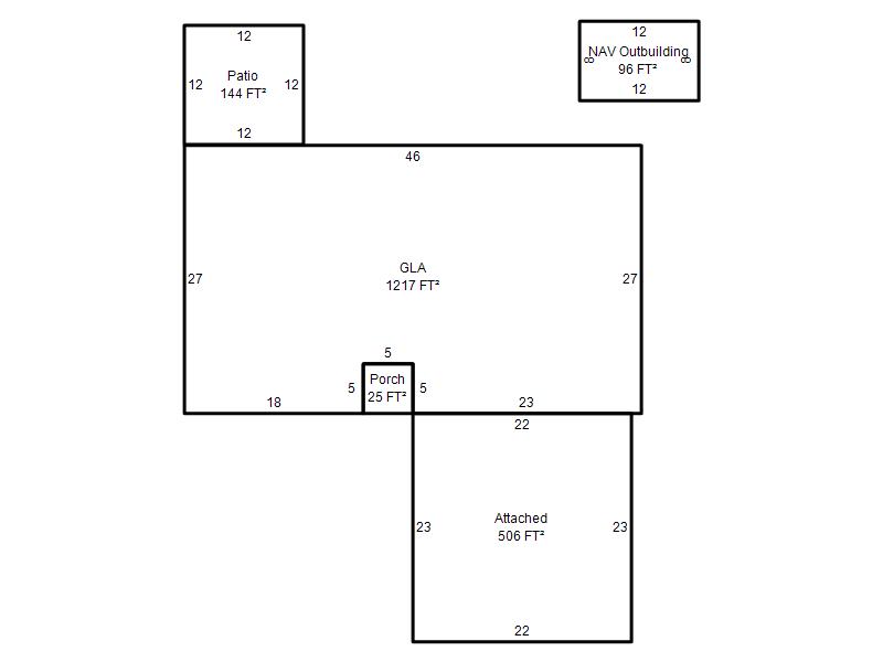
| Photo & Sketch (if available) | Comp Sales (ordered by relevancy) |
|
||||||||||||||||||
|
||||||||||||||||||||
| Value History (*The County Treasurer 405-713-1300 posts & collects actual tax amounts. Contact information HERE) | |||||||||||||
|---|---|---|---|---|---|---|---|---|---|---|---|---|---|
| Year | Market Value | Taxable Mkt Value | Gross Assessed | Exemption | Net Assessed | Millage | Est. Tax | Tax Savings | |||||
|
2025 |
167,000 |
101,500 |
11,165 |
1,000 |
10,165 |
107.54 |
$1,093 |
$882 |
|||||
|
2024 |
159,000 |
101,500 |
11,165 |
1,000 |
10,165 |
110.62 |
$1,124 |
$810 |
|||||
|
2023 |
148,500 |
101,500 |
11,165 |
1,000 |
10,165 |
97.88 |
$995 |
$604 |
|||||
|
2022 |
138,500 |
101,500 |
11,165 |
1,000 |
10,165 |
99.50 |
$1,011 |
$504 |
|||||
|
2021 |
119,000 |
101,500 |
11,165 |
1,000 |
10,165 |
99.52 |
$1,012 |
$291 |
|||||
| Property Account Status/Adjustments/Exemptions | ||
|---|---|---|
| Account # | Exemption Description | Amount |
|
R191819120 |
Freeze Senior Valuation |
0 |
|
R191819120 |
3% Cap Homestead |
0 |
|
R191819120 |
Homestead |
1,000 |
| Property Deed Transaction History (Recorded in the County Clerk's Office) | |||||||
|---|---|---|---|---|---|---|---|
| Date | Type | Book | Page | Price | Grantor | Grantee | |
|
9/15/1998 |
|
Historical |
$71,000 |
KENNARD ROBERT W & PATRICIA A |
BAILEY GUY E & SHARON E |
||
|
7/1/1986 |
|
Historical |
$0 |
|
KENNARD ROBERT W & PATRICIA A |
||
| Last Mailed Notice of Value (N.O.V.) Information/History | ||||||||
|---|---|---|---|---|---|---|---|---|
| Year | Date | Market Value | Taxable Market Value | Gross Assessed | Exemption | Net Assessed | ||
|
2026 |
02/06/2026 |
169,500 |
101,500 |
11,165 |
1,000 |
10,165 |
||
|
2025 |
01/31/2025 |
167,000 |
101,500 |
11,165 |
1,000 |
10,165 |
||
|
2024 |
01/22/2024 |
159,000 |
101,500 |
11,165 |
1,000 |
10,165 |
||
|
2023 |
01/23/2023 |
148,500 |
101,500 |
11,165 |
1,000 |
10,165 |
||
|
2022 |
02/22/2022 |
138,500 |
101,500 |
11,165 |
1,000 |
10,165 |
||
| Property Building Permit History | |||||||||||
|---|---|---|---|---|---|---|---|---|---|---|---|
| Issued | Permit # | Provided by | Bldg # | Description | Est Construction Cost | Status | |||||
| No Building Permit records returned. | |||||||||||
| Click button on building number to access detailed information: | ||||||
|---|---|---|---|---|---|---|
| Bldg # | Vacant/Improved Land | Bldg Description | Year Built | SqFt | # Stories | |
|
1 |
Improved |
Ranch 1 Story |
1980 |
1,217 |
1 Stories |
|