|
|
|
| Larry Stein Oklahoma County Assessor (405) 713-1200 - Public Access System |
|
|
|
|
|
|
| Real Property Display - Screen Produced 3/18/2026 7:06:18 PM | ||||
|---|---|---|---|---|
| Account: R191819450 | Type: Residential | Location: |
147 HICKORY STICK LN |
|
| Building Name/Occupant: |
|
HARRAH |
||
| Owner Name 1: | ADUDDELL FAMILY LIMITED PARTNERSHIP |
Parcel PIN#: |
2139-19-181-9450 |
|
| Owner Name 2: | 1/4 section #: |
2139 |
||
| Owner Name 3: | Parent Acct: |
|
||
| Billing Address: | PO BOX 998 | Tax District: |
|
|
| City, State, Zip | HARRAH, OK 73045-0998 | School System: |
Harrah #7 |
|
|
Country: (If noted) |
Land Size: |
0.2828 Acres |
||
|
Land Value: 24,024 |
|
|||
|
Sect 35-T12N-R1E Qtr SW |
ECHO VALLEY SEC 2
Block
012
Lot
002
|
|||
| Full Legal Description: ECHO VALLEY SEC 2 012 002 |
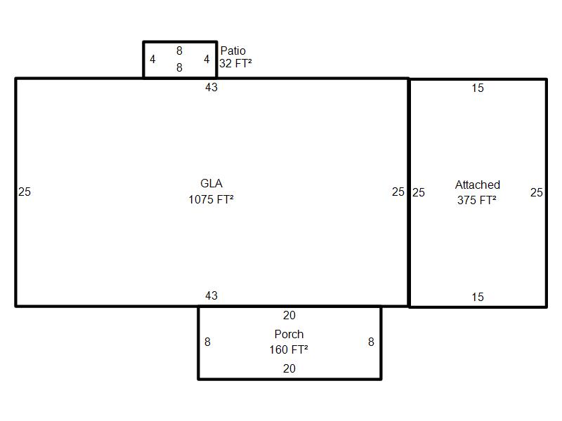
| Photo & Sketch (if available) | Comp Sales (ordered by relevancy) |
|
||||||||||||||||||
|
||||||||||||||||||||
| Value History (*The County Treasurer 405-713-1300 posts & collects actual tax amounts. Contact information HERE) | |||||||||||||
|---|---|---|---|---|---|---|---|---|---|---|---|---|---|
| Year | Market Value | Taxable Mkt Value | Gross Assessed | Exemption | Net Assessed | Millage | Est. Tax | Tax Savings | |||||
|
2025 |
158,000 |
126,988 |
13,968 |
0 |
13,968 |
107.54 |
$1,502 |
$367 |
|||||
|
2024 |
149,500 |
120,941 |
13,303 |
0 |
13,303 |
110.62 |
$1,472 |
$348 |
|||||
|
2023 |
137,500 |
115,182 |
12,669 |
0 |
12,669 |
97.88 |
$1,240 |
$240 |
|||||
|
2022 |
127,500 |
109,698 |
12,066 |
0 |
12,066 |
99.50 |
$1,201 |
$195 |
|||||
|
2021 |
109,000 |
104,475 |
11,492 |
0 |
11,492 |
99.52 |
$1,144 |
$50 |
|||||
| Property Account Status/Adjustments/Exemptions | ||
|---|---|---|
| Account # | Exemption Description | Amount |
|
R191819450 |
5% Capped Account |
0 |
| Property Deed Transaction History (Recorded in the County Clerk's Office) | |||||||
|---|---|---|---|---|---|---|---|
| Date | Type | Book | Page | Price | Grantor | Grantee | |
|
11/7/2001 |
|
Other |
$0 |
HIMES JUSTIN E & CHANDRA K |
ADUDDELL FAMILY LIMITED PARTNERSHIP |
||
|
12/10/1992 |
|
Historical |
$0 |
FARMERS HOME ADMINISTRATION |
HIMES JUSTIN E & CHANDRA K |
||
|
2/3/1992 |
|
Historical |
$0 |
SHETLEY BILLY E & BEATRICE E |
FARMERS HOME ADMINISTRATION |
||
|
4/1/1980 |
|
Historical |
$0 |
|
SHETLEY BILLY E & BEATRICE E |
||
| Last Mailed Notice of Value (N.O.V.) Information/History | ||||||||
|---|---|---|---|---|---|---|---|---|
| Year | Date | Market Value | Taxable Market Value | Gross Assessed | Exemption | Net Assessed | ||
|
2026 |
02/06/2026 |
159,000 |
133,337 |
14,666 |
0 |
14,666 |
||
|
2025 |
01/31/2025 |
158,000 |
126,988 |
13,968 |
0 |
13,968 |
||
|
2024 |
01/22/2024 |
149,500 |
120,941 |
13,303 |
0 |
13,303 |
||
|
2023 |
01/23/2023 |
137,500 |
115,182 |
12,669 |
0 |
12,669 |
||
|
2022 |
02/22/2022 |
127,500 |
109,698 |
12,066 |
0 |
12,066 |
||
| Property Building Permit History | |||||||||||
|---|---|---|---|---|---|---|---|---|---|---|---|
| Issued | Permit # | Provided by | Bldg # | Description | Est Construction Cost | Status | |||||
| No Building Permit records returned. | |||||||||||
| Click button on building number to access detailed information: | ||||||
|---|---|---|---|---|---|---|
| Bldg # | Vacant/Improved Land | Bldg Description | Year Built | SqFt | # Stories | |
|
1 |
Improved |
Ranch 1 Story |
1980 |
1,075 |
1 Stories |
|