|
|
|
| Larry Stein Oklahoma County Assessor (405) 713-1200 - Public Access System |
|
|
|
|
|
|
| Real Property Display - Screen Produced 3/18/2026 7:06:12 PM | ||||
|---|---|---|---|---|
| Account: R191819570 | Type: Residential | Location: |
196 HICKORY STICK LN |
|
| Building Name/Occupant: |
|
HARRAH |
||
| Owner Name 1: | SOLANO MARK L |
Parcel PIN#: |
2139-19-181-9570 |
|
| Owner Name 2: | 1/4 section #: |
2139 |
||
| Owner Name 3: | Parent Acct: |
|
||
| Billing Address: | 196 HICKORY STICK LN | Tax District: |
|
|
| City, State, Zip | HARRAH, OK 73045-9663 | School System: |
Harrah #7 |
|
|
Country: (If noted) |
Land Size: |
0.2346 Acres |
||
|
Land Value: 19,929 |
|
|||
|
Sect 35-T12N-R1E Qtr SW |
ECHO VALLEY SEC 2
Block
013
Lot
008
|
|||
| Full Legal Description: ECHO VALLEY SEC 2 013 008 |
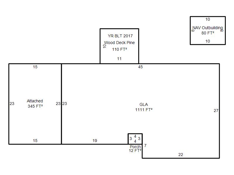
| Photo & Sketch (if available) | Comp Sales (ordered by relevancy) |
|
||||||||||||||||||
|
||||||||||||||||||||
| Value History (*The County Treasurer 405-713-1300 posts & collects actual tax amounts. Contact information HERE) | |||||||||||||
|---|---|---|---|---|---|---|---|---|---|---|---|---|---|
| Year | Market Value | Taxable Mkt Value | Gross Assessed | Exemption | Net Assessed | Millage | Est. Tax | Tax Savings | |||||
|
2025 |
160,000 |
128,265 |
14,108 |
0 |
14,108 |
107.54 |
$1,517 |
$375 |
|||||
|
2024 |
151,500 |
122,158 |
13,436 |
0 |
13,436 |
110.62 |
$1,486 |
$357 |
|||||
|
2023 |
138,500 |
116,341 |
12,797 |
0 |
12,797 |
97.88 |
$1,253 |
$239 |
|||||
|
2022 |
128,500 |
110,801 |
12,187 |
0 |
12,187 |
99.50 |
$1,213 |
$194 |
|||||
|
2021 |
110,000 |
105,525 |
11,607 |
0 |
11,607 |
99.52 |
$1,155 |
$49 |
|||||
| Property Account Status/Adjustments/Exemptions | ||
|---|---|---|
| Account # | Exemption Description | Amount |
|
R191819570 |
5% Capped Account |
0 |
| Property Deed Transaction History (Recorded in the County Clerk's Office) | ||||||||||
|---|---|---|---|---|---|---|---|---|---|---|
| Date | Type | Book | Page | Price | Grantor | Grantee | ||||
|
2/28/2013 |
|
Deeds |
$90,000 |
WILDMAN NEIL E & HEATHER P |
SOLANO MARK L |
|||||
|
6/26/2001 |
|
Deeds |
$61,500 |
CLINE JONI E |
WILDMAN NEIL E & HEATHER P |
|||||
|
7/1/1997 |
|
Historical |
$34,500 |
ELERICK PAMELA R |
CLINE JONI E |
|||||
|
6/14/1988 |
|
Historical |
$0 |
FARMERS HOME ADMINISTRATION |
ELERICK PAMELA R |
|||||
|
5/6/1987 |
|
Historical |
$0 |
BEENE LAKE B & EMMA M |
FARMERS HOME ADMINISTRATION |
|||||
| Last Mailed Notice of Value (N.O.V.) Information/History | ||||||||
|---|---|---|---|---|---|---|---|---|
| Year | Date | Market Value | Taxable Market Value | Gross Assessed | Exemption | Net Assessed | ||
|
2026 |
02/06/2026 |
161,500 |
134,678 |
14,814 |
0 |
14,814 |
||
|
2025 |
01/31/2025 |
160,000 |
128,265 |
14,108 |
0 |
14,108 |
||
|
2024 |
01/22/2024 |
151,500 |
122,158 |
13,436 |
0 |
13,436 |
||
|
2023 |
01/23/2023 |
138,500 |
116,341 |
12,797 |
0 |
12,797 |
||
|
2022 |
02/22/2022 |
128,500 |
110,801 |
12,187 |
0 |
12,187 |
||
| Property Building Permit History | |||||||||||
|---|---|---|---|---|---|---|---|---|---|---|---|
| Issued | Permit # | Provided by | Bldg # | Description | Est Construction Cost | Status | |||||
| No Building Permit records returned. | |||||||||||
| Click button on building number to access detailed information: | ||||||
|---|---|---|---|---|---|---|
| Bldg # | Vacant/Improved Land | Bldg Description | Year Built | SqFt | # Stories | |
|
1 |
Improved |
Ranch 1 Story |
1980 |
1,111 |
1 Stories |
|