|
|
|
| Larry Stein Oklahoma County Assessor (405) 713-1200 - Public Access System |
|
|
|
|
|
|
| Real Property Display - Screen Produced 3/18/2026 8:53:33 PM | ||||
|---|---|---|---|---|
| Account: R199471290 | Type: Residential | Location: |
20071 PALMER RD |
|
| Building Name/Occupant: |
|
HARRAH |
||
| Owner Name 1: | ADUDDELL FAMILY |
Parcel PIN#: |
2139-19-947-1290 |
|
| Owner Name 2: | LIMITED PARTNERSHIP | 1/4 section #: |
2139 |
|
| Owner Name 3: | Parent Acct: |
|
||
| Billing Address: | PO BOX 998 | Tax District: |
|
|
| City, State, Zip | HARRAH, OK 73045-0998 | School System: |
Harrah #7 |
|
|
Country: (If noted) |
Land Size: |
0.2250 Acres |
||
|
Land Value: 23,030 |
|
|||
|
Sect 35-T12N-R1E Qtr SW |
ECHO VALLEY
Block
002
Lot
015
|
|||
| Full Legal Description: ECHO VALLEY 002 015 |
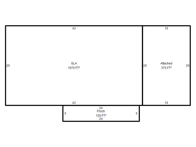
| Photo & Sketch (if available) | Comp Sales (ordered by relevancy) |
|
||||||||||||||||||
|
||||||||||||||||||||
| Value History (*The County Treasurer 405-713-1300 posts & collects actual tax amounts. Contact information HERE) | |||||||||||||
|---|---|---|---|---|---|---|---|---|---|---|---|---|---|
| Year | Market Value | Taxable Mkt Value | Gross Assessed | Exemption | Net Assessed | Millage | Est. Tax | Tax Savings | |||||
|
2025 |
153,000 |
123,159 |
13,547 |
0 |
13,547 |
107.54 |
$1,457 |
$353 |
|||||
|
2024 |
145,000 |
117,295 |
12,902 |
0 |
12,902 |
110.62 |
$1,427 |
$337 |
|||||
|
2023 |
133,000 |
111,710 |
12,288 |
0 |
12,288 |
97.88 |
$1,203 |
$229 |
|||||
|
2022 |
123,500 |
106,391 |
11,702 |
0 |
11,702 |
99.50 |
$1,164 |
$187 |
|||||
|
2021 |
105,500 |
101,325 |
11,145 |
0 |
11,145 |
99.52 |
$1,109 |
$46 |
|||||
| Property Account Status/Adjustments/Exemptions | ||
|---|---|---|
| Account # | Exemption Description | Amount |
|
R199471290 |
5% Capped Account |
0 |
| Property Deed Transaction History (Recorded in the County Clerk's Office) | |||||||
|---|---|---|---|---|---|---|---|
| Date | Type | Book | Page | Price | Grantor | Grantee | |
|
8/25/1998 |
|
Historical |
$0 |
ADUDDELL JERRAL & MARIAN |
ADUDDELL FAMILY |
||
|
12/30/1993 |
|
Historical |
$0 |
JONES PATRICIA ANN |
ADUDDELL JERRAL & MARIAN |
||
|
8/1/1981 |
|
Historical |
$0 |
|
JONES PATRICIA ANN |
||
| Last Mailed Notice of Value (N.O.V.) Information/History | ||||||||
|---|---|---|---|---|---|---|---|---|
| Year | Date | Market Value | Taxable Market Value | Gross Assessed | Exemption | Net Assessed | ||
|
2026 |
02/06/2026 |
154,000 |
129,316 |
14,224 |
0 |
14,224 |
||
|
2025 |
01/31/2025 |
153,000 |
123,159 |
13,547 |
0 |
13,547 |
||
|
2024 |
01/22/2024 |
145,000 |
117,295 |
12,902 |
0 |
12,902 |
||
|
2023 |
01/23/2023 |
133,000 |
111,710 |
12,288 |
0 |
12,288 |
||
|
2022 |
02/22/2022 |
123,500 |
106,391 |
11,702 |
0 |
11,702 |
||
| Property Building Permit History | |||||||||||
|---|---|---|---|---|---|---|---|---|---|---|---|
| Issued | Permit # | Provided by | Bldg # | Description | Est Construction Cost | Status | |||||
| No Building Permit records returned. | |||||||||||
| Click button on building number to access detailed information: | ||||||
|---|---|---|---|---|---|---|
| Bldg # | Vacant/Improved Land | Bldg Description | Year Built | SqFt | # Stories | |
|
1 |
Improved |
Ranch 1 Story |
1979 |
1,075 |
1 Stories |
|