Larry Stein Oklahoma County Assessor (405) 713-1200 - Public Access System
Home Contact Us Guest Book Map Search New Search
Real Property Display - Screen Produced   4/25/2026 3:58:15 AM 
Account: R101602900  Type: Residential

  

Location:

5409 STILWELL ST

Building Name/Occupant:

 

OKLAHOMA CITY

Owner Name 1:  AGUILAR ELIAS

Parcel PIN#:

2227-10-160-2900

Owner Name 2:    1/4 section #:

2227

Owner Name 3:    Parent Acct:

 

Billing Address:  5321 STILWELL ST Tax District:

City, State, Zip  SPENCER, OK  73084 School System:

Oklahoma City #89

Country: (If noted)

  

Land Size:

0.8000  Acres

Personal Property

Land Value: 4,400 

Treasurer:

Sect 7-T12N-R1W Qtr SW

 FREEDOM CITY SUB ADD   Block 000  Lot 040   Subdivision Sales
 Full Legal Description:  FREEDOM CITY SUB ADD 000 040

NOTE:  The following sales may or may not be used to determine Fair Market Value

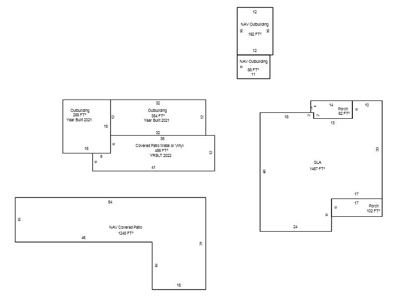
Photo & Sketch (if available) Sales  Sales Report

 0 UNKNOWN OKLAHOMA CITY, OK

08/25/2023

 $286,000 

 5316 WASHINGTON BLVD OKLAHOMA CITY, OK

12/09/2024

 $212,000 

 5402 JERICHO RD OKLAHOMA CITY, OK

01/18/2022

 $145,000 

 5720 FREEDOM CITY BLVD OKLAHOMA CITY, OK

04/25/2022

 $165,500 

 5612 LACUE ST OKLAHOMA CITY, OK

04/04/2025

 $90,000 

 5220 WASHINGTON BLVD OKLAHOMA CITY, OK

04/13/2022

 $257,500 

Value History  (*The County Treasurer 405-713-1300 posts & collects actual tax amounts.  Contact information  HERE)
Year Market Value Taxable Mkt Value Gross Assessed Exemption Net Assessed Millage Est. Tax Tax Savings
No PropertyValuation records returned.
Property Account Status/Adjustments/Exemptions
Account # Exemption Description Amount

R101602900

5% Capped Account

Property Deed Transaction History   (Recorded in the County Clerk's Office)
Date Type Book Page Price Grantor Grantee

8/20/2020

Deeds

14454

1336

 $1,500 

RIVERSTONE INVESTMENTS LLC

AGUILAR ELIAS

6/27/2017

Other

13473

957

 $0 

FIELDS DAVID

RIVERSTONE INVESTMENTS LLC

6/13/2017

Other

13461

428

 $0 

MOORE KRYSTAL & JOHNNY R JR

FIELDS DAVID

[1/4]
Last Mailed Notice of Value (N.O.V.) Information/History
Year Date Market Value Taxable Market Value Gross Assessed Exemption Net Assessed
No Notice of Value N.O.V. records returned.
Property Building Permit History
Issued Permit # Provided by Bldg # Description Est Construction Cost Status

7/29/2021

 

1

Main Dwellin

  

Inactive

9/23/1994

10201723

OKLAHOMA CITY

 

Demolish

Inactive

Click button below to access detailed information and additional property photos:
  Bldg # Vacant/Improved Land Bldg Description Year Built SqFt # Stories

Click

1

Improved

Ranch 1 Story

2021

1,467 

1 Stories