|
|
|
| Larry Stein Oklahoma County Assessor (405) 713-1200 - Public Access System |
|
|
|
|
|
|
| Real Property Display - Screen Produced 4/23/2026 12:25:40 PM | ||||
|---|---|---|---|---|
| Account: R101608700 | Type: Residential | Location: |
0 UNKNOWN |
|
| Building Name/Occupant: |
|
OKLAHOMA CITY |
||
| Owner Name 1: | ROSALES JESUS A NINO |
Parcel PIN#: |
2227-10-160-8700 |
|
| Owner Name 2: | GALVAN KAREN GUADALUPE ROHCA | 1/4 section #: |
2227 |
|
| Owner Name 3: | Parent Acct: |
|
||
| Billing Address: | 1240 SW 66TH ST | Tax District: |
|
|
| City, State, Zip | OKLAHOMA CITY, OK 73139 | School System: |
Oklahoma City #89 |
|
|
Country: (If noted) |
Land Size: |
1.9500 Acres |
||
|
Land Value: 12,000 |
|
|||
|
Sect 7-T12N-R1W Qtr SW |
FREEDOM CITY SUB ADD
Block
000
Lot
000
|
|||
| Full Legal Description: FREEDOM CITY SUB ADD 000 000 TRACTS 142 THRU 144 |
| Value History (*The County Treasurer 405-713-1300 posts & collects actual tax amounts. Contact information HERE) | |||||||||||||
|---|---|---|---|---|---|---|---|---|---|---|---|---|---|
| Year | Market Value | Taxable Mkt Value | Gross Assessed | Exemption | Net Assessed | Millage | Est. Tax | Tax Savings | |||||
|
2026 |
12,000 |
12,000 |
1,320 |
0 |
1,320 |
122.90 |
$162 |
$0 |
|||||
|
2025 |
12,000 |
12,000 |
1,320 |
0 |
1,320 |
122.90 |
$162 |
$0 |
|||||
|
2024 |
12,000 |
12,000 |
1,320 |
0 |
1,320 |
123.89 |
$164 |
$0 |
|||||
| Property Account Status/Adjustments/Exemptions | ||
|---|---|---|
| Account # | Exemption Description | Amount |
|
R101608700 |
5% Capped Account |
0 |
| Property Deed Transaction History (Recorded in the County Clerk's Office) | ||||||||||
|---|---|---|---|---|---|---|---|---|---|---|
| Date | Type | Book | Page | Price | Grantor | Grantee | ||||
|
1/7/2021 |
|
Deeds |
$12,000 |
BROOM GABRIEL |
ROSALES JESUS A NINO |
|||||
|
9/23/2020 |
|
Hmstd Off & |
$0 |
ALLEN TIA |
BROOM GABRIEL |
|||||
|
7/28/2020 |
|
Deeds |
$18,000 |
GUERRERO JOSE |
ALLEN TIA |
|||||
| Last Mailed Notice of Value (N.O.V.) Information/History | ||||||||
|---|---|---|---|---|---|---|---|---|
| Year | Date | Market Value | Taxable Market Value | Gross Assessed | Exemption | Net Assessed | ||
|
2021 |
02/24/2021 |
18,000 |
18,000 |
1,980 |
0 |
1,980 |
||
|
2019 |
02/26/2019 |
10,725 |
9,209 |
1,013 |
0 |
1,013 |
||
|
2019 |
04/12/2019 |
10,725 |
10,725 |
1,180 |
0 |
1,180 |
||
| Property Building Permit History | |||||||||||
|---|---|---|---|---|---|---|---|---|---|---|---|
| Issued | Permit # | Provided by | Bldg # | Description | Est Construction Cost | Status | |||||
| No Building Permit records returned. | |||||||||||
| Click button below to access detailed information and additional property photos: | ||||||
|---|---|---|---|---|---|---|
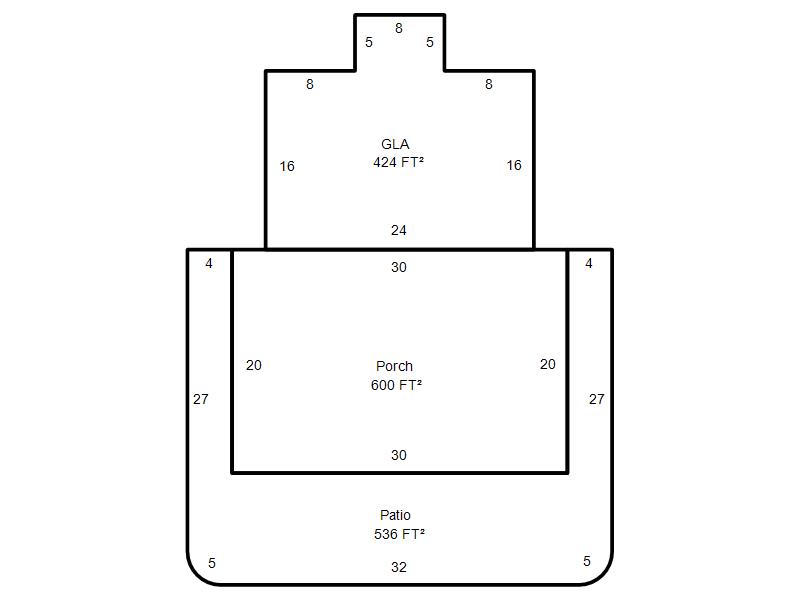
| Bldg # | Vacant/Improved Land | Bldg Description | Year Built | SqFt | # Stories | |
|
1 |
Improved |
Ranch 1 Story |
2025 |
424 |
1 Stories |
|