|
|
|
| Larry Stein Oklahoma County Assessor (405) 713-1200 - Public Access System |
|
|
|
|
|
|
| Real Property Display - Screen Produced 3/11/2026 11:45:19 PM | ||||
|---|---|---|---|---|
| Account: R206881310 | Type: Residential | Location: |
287 KUSEK CIR |
|
| Building Name/Occupant: |
|
HARRAH |
||
| Owner Name 1: | PATTERSON DUANE & KIMBERLY |
Parcel PIN#: |
1005-20-688-1310 |
|
| Owner Name 2: | 1/4 section #: |
1005 |
||
| Owner Name 3: | Parent Acct: |
1005-26-702-1000 |
||
| Billing Address: | 287 KUSEK CIR | Tax District: |
|
|
| City, State, Zip | HARRAH, OK 73045-9753 | School System: |
Harrah #7 |
|
|
Country: (If noted) |
Land Size: |
0.7315 Acres |
||
|
Land Value: 66,910 |
|
|||
|
Sect 2-T11N-R1E Qtr NE |
FALL CREEK ESTATES
Block
004
Lot
013
|
|||
| Full Legal Description: FALL CREEK ESTATES BLK 004 LOT 013 |
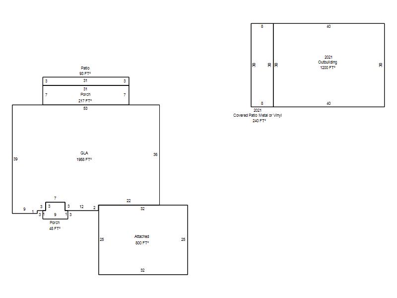
| Photo & Sketch (if available) | Comp Sales (ordered by relevancy) |
|
||||||||||||||||||
|
||||||||||||||||||||
| Value History (*The County Treasurer 405-713-1300 posts & collects actual tax amounts. Contact information HERE) | |||||||||||||
|---|---|---|---|---|---|---|---|---|---|---|---|---|---|
| Year | Market Value | Taxable Mkt Value | Gross Assessed | Exemption | Net Assessed | Millage | Est. Tax | Tax Savings | |||||
|
2025 |
335,500 |
269,487 |
29,643 |
1,000 |
28,643 |
107.54 |
$3,080 |
$888 |
|||||
|
2024 |
327,000 |
261,638 |
28,779 |
1,000 |
27,779 |
110.62 |
$3,073 |
$906 |
|||||
|
2023 |
306,500 |
254,018 |
27,941 |
1,000 |
26,941 |
97.88 |
$2,637 |
$663 |
|||||
|
2022 |
250,000 |
223,319 |
24,564 |
1,000 |
23,564 |
99.50 |
$2,345 |
$392 |
|||||
|
2021 |
225,000 |
216,815 |
23,849 |
1,000 |
22,849 |
99.52 |
$2,274 |
$189 |
|||||
| Property Account Status/Adjustments/Exemptions | ||
|---|---|---|
| Account # | Exemption Description | Amount |
|
R206881310 |
3% Cap Homestead |
0 |
|
R206881310 |
Homestead |
1,000 |
| Property Deed Transaction History (Recorded in the County Clerk's Office) | |||||||
|---|---|---|---|---|---|---|---|
| Date | Type | Book | Page | Price | Grantor | Grantee | |
|
4/13/2012 |
|
Deeds |
$187,000 |
LACHANCE QUALITY HOMES LLC |
PATTERSON DUANE & KIMBERLY |
||
|
6/3/2011 |
|
Deeds |
$30,000 |
BURSON EARL |
LACHANCE QUALITY HOMES LLC |
||
|
6/4/2008 |
|
Deeds |
$169,000 |
TIMBERLAND CONSTRUCTION SERVICES INC |
BURSON EARL |
||
|
6/27/2006 |
|
Deeds |
$27,500 |
MIDWEST DEVELOPMENT LLC |
TIMBERLAND CONSTRUCTION SERVICES INC |
||
| Last Mailed Notice of Value (N.O.V.) Information/History | ||||||||
|---|---|---|---|---|---|---|---|---|
| Year | Date | Market Value | Taxable Market Value | Gross Assessed | Exemption | Net Assessed | ||
|
2026 |
02/06/2026 |
345,000 |
277,571 |
30,532 |
1,000 |
29,532 |
||
|
2025 |
01/31/2025 |
335,500 |
269,487 |
29,643 |
1,000 |
28,643 |
||
|
2024 |
01/22/2024 |
327,000 |
261,638 |
28,779 |
1,000 |
27,779 |
||
|
2023 |
03/02/2023 |
306,500 |
254,018 |
27,941 |
1,000 |
26,941 |
||
|
2022 |
02/22/2022 |
250,000 |
223,319 |
24,564 |
1,000 |
23,564 |
||
| Property Building Permit History | ||||||
|---|---|---|---|---|---|---|
| Issued | Permit # | Provided by | Bldg # | Description | Est Construction Cost | Status |
|
7/5/2011 |
10429471 |
HARRAH |
1 |
Fire Remodel |
0 |
Inactive |
|
7/3/2006 |
10325164 |
HARRAH |
1 |
Main Dwellin |
184,000 |
Inactive |
| Click button on building number to access detailed information: | ||||||
|---|---|---|---|---|---|---|
| Bldg # | Vacant/Improved Land | Bldg Description | Year Built | SqFt | # Stories | |
|
1 |
Improved |
Ranch 1 Story |
2006 |
1,958 |
1 Stories |
|