|
|
|
| Larry Stein Oklahoma County Assessor (405) 713-1200 - Public Access System |
|
|
|
|
|
|
| Real Property Display - Screen Produced 3/12/2026 11:37:09 AM | ||||
|---|---|---|---|---|
| Account: R194673155 | Type: Residential | Location: |
6005 PEBBLE LN |
|
| Building Name/Occupant: |
|
CHOCTAW |
||
| Owner Name 1: | UNSELL JOHNNY V & MARGARET P |
Parcel PIN#: |
2244-19-467-3155 |
|
| Owner Name 2: | 1/4 section #: |
2244 |
||
| Owner Name 3: | Parent Acct: |
|
||
| Billing Address: | 6005 PEBBLE LN | Tax District: |
|
|
| City, State, Zip | CHOCTAW, OK 73020-9545 | School System: |
Jones #9 |
|
|
Country: (If noted) |
Land Size: |
4.6900 Acres |
||
|
Land Value: 35,714 |
|
|||
|
Sect 11-T12N-R1W Qtr NW |
UNPLTD PT SEC 11 12N 1W
Block
000
Lot
000
|
|||
| Full Legal Description: UNPLTD PT SEC 11 12N 1W 000 000 PT NW4 SEC 11 12N 1W BEG 1320FT S 1321.96FT E OF NW/C OF NW4 E660.98FT S330FT W660.96FT N330FT TO BEG LESS E25FT LOT 28A CHOCTAW ACRES UNREC |
| Photo & Sketch (if available) | Comp Sales (ordered by relevancy) |
|
||||||||||||||||||
|
||||||||||||||||||||
| Value History (*The County Treasurer 405-713-1300 posts & collects actual tax amounts. Contact information HERE) | |||||||||||||
|---|---|---|---|---|---|---|---|---|---|---|---|---|---|
| Year | Market Value | Taxable Mkt Value | Gross Assessed | Exemption | Net Assessed | Millage | Est. Tax | Tax Savings | |||||
|
2025 |
170,500 |
99,910 |
10,990 |
2,000 |
8,990 |
114.89 |
$1,033 |
$1,122 |
|||||
|
2024 |
149,500 |
99,910 |
10,990 |
2,000 |
8,990 |
115.31 |
$1,037 |
$860 |
|||||
|
2023 |
149,500 |
99,910 |
10,990 |
2,000 |
8,990 |
113.61 |
$1,021 |
$847 |
|||||
|
2022 |
119,500 |
99,910 |
10,990 |
2,000 |
8,990 |
109.90 |
$988 |
$457 |
|||||
|
2021 |
97,000 |
97,000 |
10,670 |
1,000 |
9,670 |
112.35 |
$1,086 |
$112 |
|||||
| Property Account Status/Adjustments/Exemptions | ||
|---|---|---|
| Account # | Exemption Description | Amount |
|
R194673155 |
Freeze Senior Valuation |
0 |
|
R194673155 |
Senior Additional Homestead |
1,000 |
|
R194673155 |
Homestead |
1,000 |
|
R194673155 |
3% Cap Homestead |
0 |
| Property Deed Transaction History (Recorded in the County Clerk's Office) | |||||||
|---|---|---|---|---|---|---|---|
| Date | Type | Book | Page | Price | Grantor | Grantee | |
|
5/1/1978 |
|
Historical |
$0 |
|
UNSELL JOHNNY V & MARGARET P |
||
| Last Mailed Notice of Value (N.O.V.) Information/History | ||||||||
|---|---|---|---|---|---|---|---|---|
| Year | Date | Market Value | Taxable Market Value | Gross Assessed | Exemption | Net Assessed | ||
|
2026 |
02/06/2026 |
172,500 |
99,910 |
10,990 |
2,000 |
8,990 |
||
|
2025 |
01/31/2025 |
170,500 |
99,910 |
10,990 |
2,000 |
8,990 |
||
|
2023 |
01/23/2023 |
149,500 |
99,910 |
10,990 |
2,000 |
8,990 |
||
|
2022 |
02/22/2022 |
119,500 |
99,910 |
10,990 |
1,000 |
9,990 |
||
|
2021 |
02/24/2021 |
97,000 |
97,000 |
10,670 |
1,000 |
9,670 |
||
| Property Building Permit History | ||||||
|---|---|---|---|---|---|---|
| Issued | Permit # | Provided by | Bldg # | Description | Est Construction Cost | Status |
|
3/15/2006 |
10321871 |
OKLAHOMA CITY |
1 |
Other |
1,500 |
Inactive |
| Click button on building number to access detailed information: | ||||||
|---|---|---|---|---|---|---|
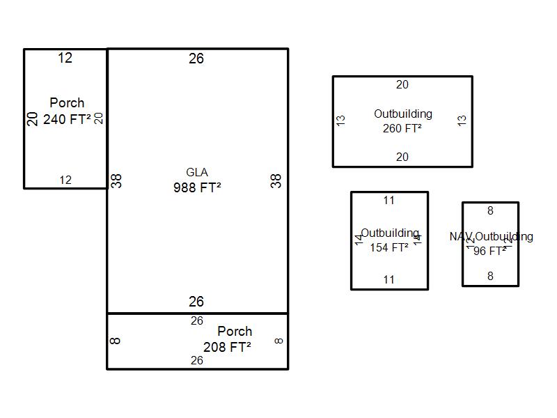
| Bldg # | Vacant/Improved Land | Bldg Description | Year Built | SqFt | # Stories | |
|
1 |
Improved |
Ranch 1 Story |
1975 |
988 |
1 Stories |
|