|
|
|
| Larry Stein Oklahoma County Assessor (405) 713-1200 - Public Access System |
|
|
|
|
|
|
| Real Property Display - Screen Produced 3/23/2026 5:29:18 AM | ||||
|---|---|---|---|---|
| Account: R124671020 | Type: Residential | Location: |
15524 CHAMPIONS GLN |
|
| Building Name/Occupant: |
|
CHOCTAW |
||
| Owner Name 1: | MURRAH DUSTIN L & KAYLA R |
Parcel PIN#: |
2250-12-467-1020 |
|
| Owner Name 2: | 1/4 section #: |
2250 |
||
| Owner Name 3: | Parent Acct: |
|
||
| Billing Address: | 15524 CHAMPIONS GLN | Tax District: |
|
|
| City, State, Zip | CHOCTAW, OK 73020-9002 | School System: |
Choctaw #4 |
|
|
Country: (If noted) |
Land Size: |
0.9975 Acres |
||
|
Land Value: 40,845 |
|
|||
|
Sect 13-T12N-R1W Qtr SE |
CHAMPIONS GLEN
Block
001
Lot
003
|
|||
| Full Legal Description: CHAMPIONS GLEN 001 003 |
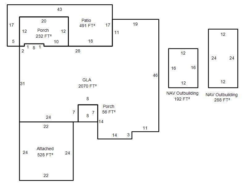
| Photo & Sketch (if available) | Comp Sales (ordered by relevancy) |
|
||||||||||||||||||
|
||||||||||||||||||||
| Value History (*The County Treasurer 405-713-1300 posts & collects actual tax amounts. Contact information HERE) | |||||||||||||
|---|---|---|---|---|---|---|---|---|---|---|---|---|---|
| Year | Market Value | Taxable Mkt Value | Gross Assessed | Exemption | Net Assessed | Millage | Est. Tax | Tax Savings | |||||
|
2025 |
314,000 |
210,486 |
23,153 |
1,000 |
22,153 |
117.21 |
$2,597 |
$1,452 |
|||||
|
2024 |
286,000 |
204,356 |
22,478 |
1,000 |
21,478 |
116.35 |
$2,499 |
$1,161 |
|||||
|
2023 |
286,000 |
198,404 |
21,823 |
1,000 |
20,823 |
118.06 |
$2,459 |
$1,256 |
|||||
|
2022 |
265,000 |
192,626 |
21,188 |
1,000 |
20,188 |
116.14 |
$2,345 |
$1,041 |
|||||
|
2021 |
206,000 |
187,016 |
20,571 |
1,000 |
19,571 |
116.17 |
$2,274 |
$359 |
|||||
| Property Account Status/Adjustments/Exemptions | ||
|---|---|---|
| Account # | Exemption Description | Amount |
|
R124671020 |
Homestead |
1,000 |
|
R124671020 |
3% Cap Homestead |
0 |
| Property Deed Transaction History (Recorded in the County Clerk's Office) | |||||||
|---|---|---|---|---|---|---|---|
| Date | Type | Book | Page | Price | Grantor | Grantee | |
|
10/31/2011 |
|
Deeds |
$156,500 |
HALL MICHAEL T |
MURRAH DUSTIN L & KAYLA R |
||
|
10/11/2011 |
|
Deeds |
$0 |
HALL MICHAEL T & SANDRA S |
HALL MICHAEL T |
||
|
8/16/1988 |
|
Historical |
$112,500 |
HARRELL CHARLES EARL & BETTY J |
HALL MICHAEL T & SANDRA S |
||
|
1/1/1986 |
|
Historical |
$0 |
|
HARRELL CHARLES EARL & BETTY J |
||
| Last Mailed Notice of Value (N.O.V.) Information/History | ||||||||
|---|---|---|---|---|---|---|---|---|
| Year | Date | Market Value | Taxable Market Value | Gross Assessed | Exemption | Net Assessed | ||
|
2026 |
02/06/2026 |
303,500 |
216,800 |
23,847 |
1,000 |
22,847 |
||
|
2025 |
01/31/2025 |
314,000 |
210,486 |
23,153 |
1,000 |
22,153 |
||
|
2024 |
01/22/2024 |
286,000 |
204,356 |
22,478 |
1,000 |
21,478 |
||
|
2023 |
01/23/2023 |
286,000 |
198,404 |
21,823 |
1,000 |
20,823 |
||
|
2022 |
02/22/2022 |
265,000 |
192,626 |
21,188 |
1,000 |
20,188 |
||
| Property Building Permit History | |||||||||||
|---|---|---|---|---|---|---|---|---|---|---|---|
| Issued | Permit # | Provided by | Bldg # | Description | Est Construction Cost | Status | |||||
| No Building Permit records returned. | |||||||||||
| Click button on building number to access detailed information: | ||||||
|---|---|---|---|---|---|---|
| Bldg # | Vacant/Improved Land | Bldg Description | Year Built | SqFt | # Stories | |
|
1 |
Improved |
Ranch 1 Story |
1986 |
2,070 |
1 Stories |
|