|
|
|
| Larry Stein Oklahoma County Assessor (405) 713-1200 - Public Access System |
|
|
|
|
|
|
| Real Property Display - Screen Produced 3/18/2026 11:19:47 PM | ||||
|---|---|---|---|---|
| Account: R124671050 | Type: Residential | Location: |
15624 CHAMPIONS GLN |
|
| Building Name/Occupant: |
|
CHOCTAW |
||
| Owner Name 1: | HENNIGH ROBBIE LYNN |
Parcel PIN#: |
2250-12-467-1050 |
|
| Owner Name 2: | 1/4 section #: |
2250 |
||
| Owner Name 3: | Parent Acct: |
|
||
| Billing Address: | 15624 CHAMPIONS GLN | Tax District: |
|
|
| City, State, Zip | CHOCTAW, OK 73020-9022 | School System: |
Choctaw #4 |
|
|
Country: (If noted) |
Land Size: |
0.9975 Acres |
||
|
Land Value: 40,845 |
|
|||
|
Sect 13-T12N-R1W Qtr SE |
CHAMPIONS GLEN
Block
001
Lot
006
|
|||
| Full Legal Description: CHAMPIONS GLEN 001 006 |
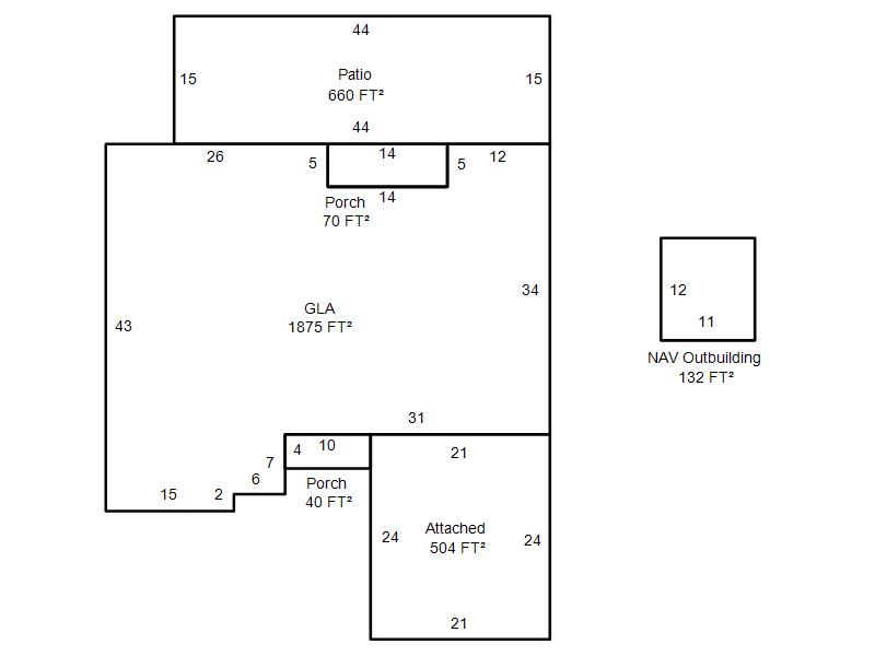
| Photo & Sketch (if available) | Comp Sales (ordered by relevancy) |
|
||||||||||||||||||
|
||||||||||||||||||||
| Value History (*The County Treasurer 405-713-1300 posts & collects actual tax amounts. Contact information HERE) | |||||||||||||
|---|---|---|---|---|---|---|---|---|---|---|---|---|---|
| Year | Market Value | Taxable Mkt Value | Gross Assessed | Exemption | Net Assessed | Millage | Est. Tax | Tax Savings | |||||
|
2025 |
300,000 |
238,238 |
26,205 |
0 |
26,205 |
117.21 |
$3,072 |
$796 |
|||||
|
2024 |
271,500 |
226,894 |
24,957 |
0 |
24,957 |
116.35 |
$2,904 |
$571 |
|||||
|
2023 |
272,000 |
216,090 |
23,769 |
0 |
23,769 |
118.06 |
$2,806 |
$726 |
|||||
|
2022 |
250,000 |
205,800 |
22,638 |
0 |
22,638 |
116.14 |
$2,629 |
$565 |
|||||
|
2021 |
196,000 |
196,000 |
21,560 |
0 |
21,560 |
116.17 |
$2,505 |
$0 |
|||||
| Property Account Status/Adjustments/Exemptions | ||||||
|---|---|---|---|---|---|---|
| Account # | Exemption Description | Amount | ||||
| No adjustment/exemption records returned. | ||||||
| Property Deed Transaction History (Recorded in the County Clerk's Office) | |||||||
|---|---|---|---|---|---|---|---|
| Date | Type | Book | Page | Price | Grantor | Grantee | |
|
4/10/2025 |
|
Hmstd Off & |
$0 |
HENNIGH ROBBIE L & JEREMY |
HENNIGH ROBBIE LYNN |
||
|
7/9/2021 |
|
Hmstd Off & |
$0 |
ALFORD ROBBIE LYNN |
HENNIGH ROBBIE L & JEREMY |
||
|
9/18/2013 |
|
Deeds |
$164,000 |
CHEATWOOD BRYAN LEE & ZULA K |
ALFORD ROBBIE LYNN |
||
|
12/12/1988 |
|
Historical |
$105,000 |
MASONER JAMES C ETAL |
CHEATWOOD BRYAN LEE & ZULA K |
||
|
11/11/1911 |
|
Historical |
$0 |
|
MASONER JAMES C ETAL |
||
| Last Mailed Notice of Value (N.O.V.) Information/History | ||||||||
|---|---|---|---|---|---|---|---|---|
| Year | Date | Market Value | Taxable Market Value | Gross Assessed | Exemption | Net Assessed | ||
|
2026 |
02/06/2026 |
292,000 |
250,149 |
27,516 |
0 |
27,516 |
||
|
2025 |
01/31/2025 |
300,000 |
238,238 |
26,205 |
0 |
26,205 |
||
|
2024 |
01/22/2024 |
271,500 |
226,894 |
24,957 |
0 |
24,957 |
||
|
2023 |
01/23/2023 |
272,000 |
216,090 |
23,769 |
0 |
23,769 |
||
|
2022 |
02/22/2022 |
250,000 |
205,800 |
22,638 |
0 |
22,638 |
||
| Property Building Permit History | |||||||||||
|---|---|---|---|---|---|---|---|---|---|---|---|
| Issued | Permit # | Provided by | Bldg # | Description | Est Construction Cost | Status | |||||
| No Building Permit records returned. | |||||||||||
| Click button on building number to access detailed information: | ||||||
|---|---|---|---|---|---|---|
| Bldg # | Vacant/Improved Land | Bldg Description | Year Built | SqFt | # Stories | |
|
1 |
Improved |
Ranch 1 Story |
1987 |
1,875 |
1 Stories |
|