|
|
|
| Larry Stein Oklahoma County Assessor (405) 713-1200 - Public Access System |
|
|
|
|
|
|
| Real Property Display - Screen Produced 3/12/2026 4:13:17 PM | ||||
|---|---|---|---|---|
| Account: R194691020 | Type: Residential | Location: |
4963 N CHOCTAW RD |
|
| Building Name/Occupant: |
|
CHOCTAW |
||
| Owner Name 1: | RASCO TONY |
Parcel PIN#: |
2253-19-469-1020 |
|
| Owner Name 2: | SPRIGGS COLLIN | 1/4 section #: |
2253 |
|
| Owner Name 3: | Parent Acct: |
|
||
| Billing Address: | 4963 N CHOCTAW RD | Tax District: |
|
|
| City, State, Zip | CHOCTAW, OK 73020 | School System: |
Jones #9 |
|
|
Country: (If noted) |
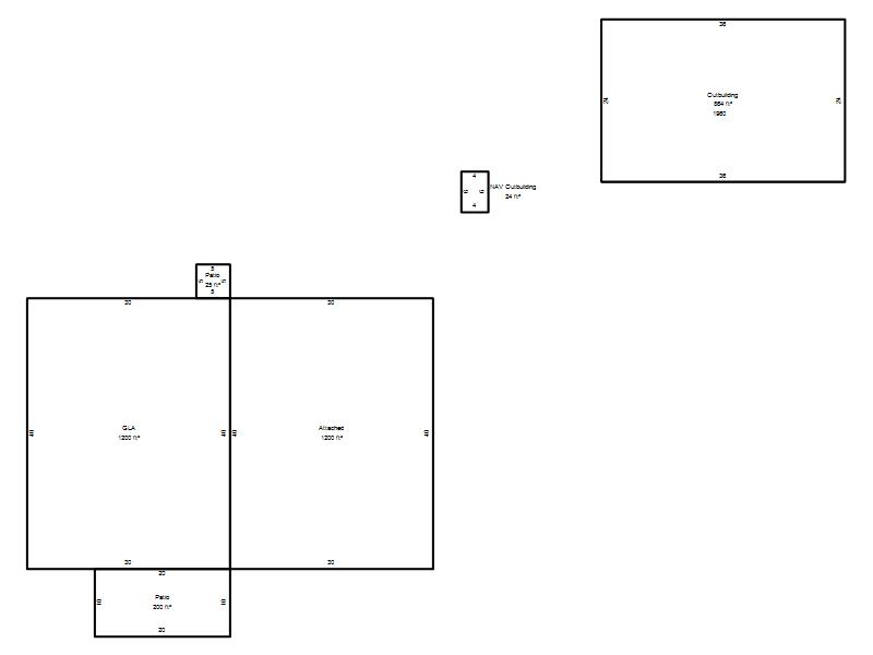
Land Size: |
2.8620 Acres |
||
|
Land Value: 53,447 |
|
|||
|
Sect 14-T12N-R1W Qtr NE |
UNPLTD PT SEC 14 12N 1W
Block
000
Lot
000
|
|||
| Full Legal Description: UNPLTD PT SEC 14 12N 1W 000 000 PT NE/4 SEC 14 12N 1W BEG 819.64FT S OF NE/C NE4 TH S192.64FT W133FT S327FT W197.98FT N519.10FT E330.44FT TO BEG |
| Photo & Sketch (if available) | Comp Sales (ordered by relevancy) |
|
||||||||||||||||||
|
||||||||||||||||||||
| Value History (*The County Treasurer 405-713-1300 posts & collects actual tax amounts. Contact information HERE) | |||||||||||||
|---|---|---|---|---|---|---|---|---|---|---|---|---|---|
| Year | Market Value | Taxable Mkt Value | Gross Assessed | Exemption | Net Assessed | Millage | Est. Tax | Tax Savings | |||||
|
2025 |
327,500 |
207,978 |
22,877 |
1,000 |
21,877 |
114.89 |
$2,514 |
$1,625 |
|||||
|
2024 |
300,500 |
201,921 |
22,210 |
1,000 |
21,210 |
115.31 |
$2,446 |
$1,366 |
|||||
|
2023 |
293,500 |
196,040 |
21,564 |
1,000 |
20,564 |
113.61 |
$2,336 |
$1,332 |
|||||
|
2022 |
230,000 |
190,331 |
20,935 |
0 |
20,935 |
109.90 |
$2,301 |
$480 |
|||||
|
2021 |
34,111 |
16,155 |
1,776 |
0 |
1,776 |
112.35 |
$200 |
$222 |
|||||
| Property Account Status/Adjustments/Exemptions | ||
|---|---|---|
| Account # | Exemption Description | Amount |
|
R194691020 |
Homestead |
1,000 |
|
R194691020 |
3% Cap Homestead |
0 |
| Property Deed Transaction History (Recorded in the County Clerk's Office) | ||||||||||
|---|---|---|---|---|---|---|---|---|---|---|
| Date | Type | Book | Page | Price | Grantor | Grantee | ||||
|
8/27/2018 |
|
Deeds |
$0 |
RASCO TONY |
RASCO TONY |
|||||
|
6/14/2007 |
|
Deeds |
$0 |
AFFIDAVIT OF SURVIVING JOINT TENANT |
RASCO TONY |
|||||
|
7/21/2000 |
|
Deeds |
$17,500 |
DICKSON ARVO C & MELBA J |
RASCO TONY RASCO PRISCILLA ANN |
|||||
|
4/22/1994 |
|
Historical |
$0 |
STEPHENSON DUKE H & MARILYN S |
DICKSON ARVO C & MELBA J |
|||||
|
10/10/1990 |
|
Historical |
$0 |
ORR ROY DAVE & KAREN L |
STEPHENSON DUKE H & MARILYN S |
|||||
| Last Mailed Notice of Value (N.O.V.) Information/History | ||||||||
|---|---|---|---|---|---|---|---|---|
| Year | Date | Market Value | Taxable Market Value | Gross Assessed | Exemption | Net Assessed | ||
|
2026 |
02/06/2026 |
316,500 |
214,217 |
23,563 |
1,000 |
22,563 |
||
|
2025 |
01/31/2025 |
327,500 |
207,978 |
22,877 |
1,000 |
21,877 |
||
|
2024 |
01/22/2024 |
300,500 |
201,921 |
22,210 |
1,000 |
21,210 |
||
|
2023 |
01/23/2023 |
293,500 |
196,040 |
21,564 |
1,000 |
20,564 |
||
|
2022 |
02/22/2022 |
230,000 |
190,331 |
20,934 |
0 |
20,934 |
||
| Property Building Permit History | ||||||
|---|---|---|---|---|---|---|
| Issued | Permit # | Provided by | Bldg # | Description | Est Construction Cost | Status |
|
3/17/2020 |
2002051 |
|
1 |
Main Dwellin |
90,000 |
Inactive |
| Click button on building number to access detailed information: | ||||||
|---|---|---|---|---|---|---|
| Bldg # | Vacant/Improved Land | Bldg Description | Year Built | SqFt | # Stories | |
|
1 |
Improved |
Ranch 1 Story |
2020 |
1,200 |
1 Stories |
|