|
|
|
| Larry Stein Oklahoma County Assessor (405) 713-1200 - Public Access System |
|
|
|
|
|
|
| Real Property Display - Screen Produced 3/12/2026 4:13:17 PM | ||||
|---|---|---|---|---|
| Account: R194691155 | Type: Residential | Location: |
14900 NE 50TH ST |
|
| Building Name/Occupant: |
|
CHOCTAW |
||
| Owner Name 1: | MACFARLANE SHAD JEREMY |
Parcel PIN#: |
2253-19-469-1155 |
|
| Owner Name 2: | 1/4 section #: |
2253 |
||
| Owner Name 3: | Parent Acct: |
|
||
| Billing Address: | 14900 NE 50TH ST | Tax District: |
|
|
| City, State, Zip | CHOCTAW, OK 73020-9514 | School System: |
Jones #9 |
|
|
Country: (If noted) |
Land Size: |
2.6600 Acres |
||
|
Land Value: 50,992 |
|
|||
|
Sect 14-T12N-R1W Qtr NE |
UNPLTD PT SEC 14 12N 1W
Block
000
Lot
000
|
|||
| Full Legal Description: UNPLTD PT SEC 14 12N 1W 000 000 PT NE4 SEC 14 12N 1W BEG 816.38FT W OF NE/C NE4 TH S663.95FT W175FT N663.61FT E175FT TO BEG |
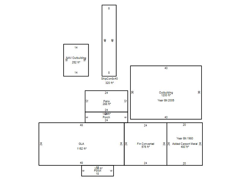
| Photo & Sketch (if available) | Comp Sales (ordered by relevancy) |
|
||||||||||||||||||
|
||||||||||||||||||||
| Value History (*The County Treasurer 405-713-1300 posts & collects actual tax amounts. Contact information HERE) | |||||||||||||
|---|---|---|---|---|---|---|---|---|---|---|---|---|---|
| Year | Market Value | Taxable Mkt Value | Gross Assessed | Exemption | Net Assessed | Millage | Est. Tax | Tax Savings | |||||
|
2025 |
259,500 |
165,415 |
18,194 |
18,194 |
0 |
114.89 |
$0 |
$3,279 |
|||||
|
2024 |
227,000 |
160,598 |
17,665 |
17,665 |
0 |
115.31 |
$0 |
$2,879 |
|||||
|
2023 |
220,500 |
155,921 |
17,150 |
17,150 |
0 |
113.61 |
$0 |
$2,755 |
|||||
|
2022 |
177,000 |
151,380 |
16,650 |
16,650 |
0 |
109.90 |
$0 |
$2,140 |
|||||
|
2021 |
152,500 |
146,971 |
16,166 |
1,000 |
15,166 |
112.35 |
$1,704 |
$181 |
|||||
| Property Account Status/Adjustments/Exemptions | ||
|---|---|---|
| Account # | Exemption Description | Amount |
|
R194691155 |
100% DAV Exemption |
100 |
|
R194691155 |
3% Cap Homestead |
0 |
|
R194691155 |
DAV Homestead |
0 |
| Property Deed Transaction History (Recorded in the County Clerk's Office) | |||||||
|---|---|---|---|---|---|---|---|
| Date | Type | Book | Page | Price | Grantor | Grantee | |
|
5/24/2004 |
|
Deeds |
$0 |
MACFARLANE LISA A & MACFARLANE SHAD JEREMY |
MACFARLANE SHAD JEREMY |
||
|
6/27/1997 |
|
Historical |
$72,500 |
JOHNSTON LESLIE A & JANELLE D |
MACFARLANE SHAD J & LISA A |
||
|
12/7/1993 |
|
Historical |
$0 |
MOSLEY FRANCES L |
JOHNSTON LESLIE A & JANELLE D |
||
|
12/1/1978 |
|
Historical |
$0 |
|
MOSLEY FRANCES L |
||
| Last Mailed Notice of Value (N.O.V.) Information/History | ||||||||
|---|---|---|---|---|---|---|---|---|
| Year | Date | Market Value | Taxable Market Value | Gross Assessed | Exemption | Net Assessed | ||
|
2026 |
02/06/2026 |
254,000 |
170,377 |
18,740 |
18,740 |
0 |
||
|
2025 |
01/31/2025 |
259,500 |
165,415 |
18,194 |
18,194 |
0 |
||
|
2024 |
01/22/2024 |
227,000 |
160,598 |
17,665 |
17,665 |
0 |
||
|
2023 |
01/23/2023 |
220,500 |
155,921 |
17,150 |
17,150 |
0 |
||
|
2022 |
02/22/2022 |
177,000 |
151,380 |
16,650 |
1,000 |
15,650 |
||
| Property Building Permit History | ||||||
|---|---|---|---|---|---|---|
| Issued | Permit # | Provided by | Bldg # | Description | Est Construction Cost | Status |
|
9/1/1999 |
10262484 |
CHOCTAW |
1 |
Other |
5,300 |
Inactive |
| Click button on building number to access detailed information: | ||||||
|---|---|---|---|---|---|---|
| Bldg # | Vacant/Improved Land | Bldg Description | Year Built | SqFt | # Stories | |
|
1 |
Improved |
Ranch 1 Story |
1973 |
1,152 |
1 Stories |
|