|
|
|
| Larry Stein Oklahoma County Assessor (405) 713-1200 - Public Access System |
|
|
|
|
|
|
| Real Property Display - Screen Produced 3/12/2026 4:17:08 PM | ||||
|---|---|---|---|---|
| Account: R194695045 | Type: Residential | Location: |
3705 N CHOCTAW RD |
|
| Building Name/Occupant: |
|
CHOCTAW |
||
| Owner Name 1: | KUPCZYNSKI MICHEAL ROY |
Parcel PIN#: |
2254-19-469-5045 |
|
| Owner Name 2: | 1/4 section #: |
2254 |
||
| Owner Name 3: | Parent Acct: |
|
||
| Billing Address: | 7500 N HARRAH RD | Tax District: |
|
|
| City, State, Zip | HARRAH, OK 73045-8808 | School System: |
Choctaw #4 |
|
|
Country: (If noted) |
Land Size: |
1.0000 Acres |
||
|
Land Value: 27,200 |
|
|||
|
Sect 14-T12N-R1W Qtr SE |
UNPLTD PT SEC 14 12N 1W
Block
000
Lot
000
|
|||
| Full Legal Description: UNPLTD PT SEC 14 12N 1W 000 000 PT OF SE4 SEC 14 12N 1W BEG 33FT W & 201.58FT N OF SE/C OF SE4 TH N168.57FT W260.40FT S168.57FT E260.40FT TO BEG OR TR 8 |
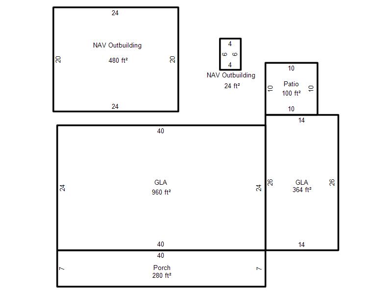
| Photo & Sketch (if available) | Comp Sales (ordered by relevancy) |
|
||||||||||||||||||
|
||||||||||||||||||||
| Value History (*The County Treasurer 405-713-1300 posts & collects actual tax amounts. Contact information HERE) | |||||||||||||
|---|---|---|---|---|---|---|---|---|---|---|---|---|---|
| Year | Market Value | Taxable Mkt Value | Gross Assessed | Exemption | Net Assessed | Millage | Est. Tax | Tax Savings | |||||
|
2025 |
138,500 |
103,924 |
11,431 |
0 |
11,431 |
117.21 |
$1,340 |
$446 |
|||||
|
2024 |
121,000 |
98,976 |
10,886 |
0 |
10,886 |
116.35 |
$1,267 |
$282 |
|||||
|
2023 |
124,000 |
94,263 |
10,368 |
0 |
10,368 |
118.06 |
$1,224 |
$386 |
|||||
|
2022 |
100,000 |
89,775 |
9,875 |
0 |
9,875 |
116.14 |
$1,147 |
$131 |
|||||
|
2021 |
85,500 |
85,500 |
9,405 |
0 |
9,405 |
116.17 |
$1,093 |
$0 |
|||||
| Property Account Status/Adjustments/Exemptions | ||
|---|---|---|
| Account # | Exemption Description | Amount |
|
R194695045 |
5% Capped Account |
0 |
| Property Deed Transaction History (Recorded in the County Clerk's Office) | |||||||
|---|---|---|---|---|---|---|---|
| Date | Type | Book | Page | Price | Grantor | Grantee | |
|
11/8/2006 |
|
Hmstd Off & |
$0 |
KUPCZYNSKI MICHEAL R & DOREEN M |
KUPCZYNSKI MICHEAL ROY |
||
|
7/11/2003 |
|
Other |
$0 |
HARDER MARGARET A C/O TERESA BAKER |
KUPCZYNSKI MICHEAL R & DOREEN M |
||
|
3/26/1991 |
|
Historical |
$0 |
HARDER RICHARD JAMES |
BAKER TERESA R |
||
|
11/11/1911 |
|
Historical |
$0 |
|
HARDER RICHARD HARDER |
||
| Last Mailed Notice of Value (N.O.V.) Information/History | ||||||||
|---|---|---|---|---|---|---|---|---|
| Year | Date | Market Value | Taxable Market Value | Gross Assessed | Exemption | Net Assessed | ||
|
2026 |
02/06/2026 |
155,000 |
109,120 |
12,002 |
0 |
12,002 |
||
|
2025 |
01/31/2025 |
138,500 |
103,924 |
11,431 |
0 |
11,431 |
||
|
2024 |
01/22/2024 |
121,000 |
98,976 |
10,886 |
0 |
10,886 |
||
|
2023 |
01/23/2023 |
124,000 |
94,263 |
10,368 |
0 |
10,368 |
||
|
2022 |
02/22/2022 |
100,000 |
89,775 |
9,875 |
0 |
9,875 |
||
| Property Building Permit History | |||||||||||
|---|---|---|---|---|---|---|---|---|---|---|---|
| Issued | Permit # | Provided by | Bldg # | Description | Est Construction Cost | Status | |||||
| No Building Permit records returned. | |||||||||||
| Click button on building number to access detailed information: | ||||||
|---|---|---|---|---|---|---|
| Bldg # | Vacant/Improved Land | Bldg Description | Year Built | SqFt | # Stories | |
|
1 |
Improved |
Ranch 1 Story |
1964 |
1,324 |
1 Stories |
|