|
|
|
| Larry Stein Oklahoma County Assessor (405) 713-1200 - Public Access System |
|
|
|
|
|
|
| Real Property Display - Screen Produced 3/12/2026 4:13:17 PM | ||||
|---|---|---|---|---|
| Account: R194695085 | Type: Residential | Location: |
3801 N CHOCTAW RD |
|
| Building Name/Occupant: |
|
CHOCTAW |
||
| Owner Name 1: | DENWALT LEVI |
Parcel PIN#: |
2254-19-469-5085 |
|
| Owner Name 2: | 1/4 section #: |
2254 |
||
| Owner Name 3: | Parent Acct: |
|
||
| Billing Address: | 3801 N CHOCTAW RD | Tax District: |
|
|
| City, State, Zip | CHOCTAW, OK 73020-9029 | School System: |
Choctaw #4 |
|
|
Country: (If noted) |
Land Size: |
1.1300 Acres |
||
|
Land Value: 29,421 |
|
|||
|
Sect 14-T12N-R1W Qtr SE |
UNPLTD PT SEC 14 12N 1W
Block
000
Lot
000
|
|||
| Full Legal Description: UNPLTD PT SEC 14 12N 1W 000 000 PT SE4 SEC 14 12N 1W BEG 370.16FT N OF SE/C SE4 TH W293.40FT N168.57FT E293.40FT S168.58FT TO BEG OR TR 10 |
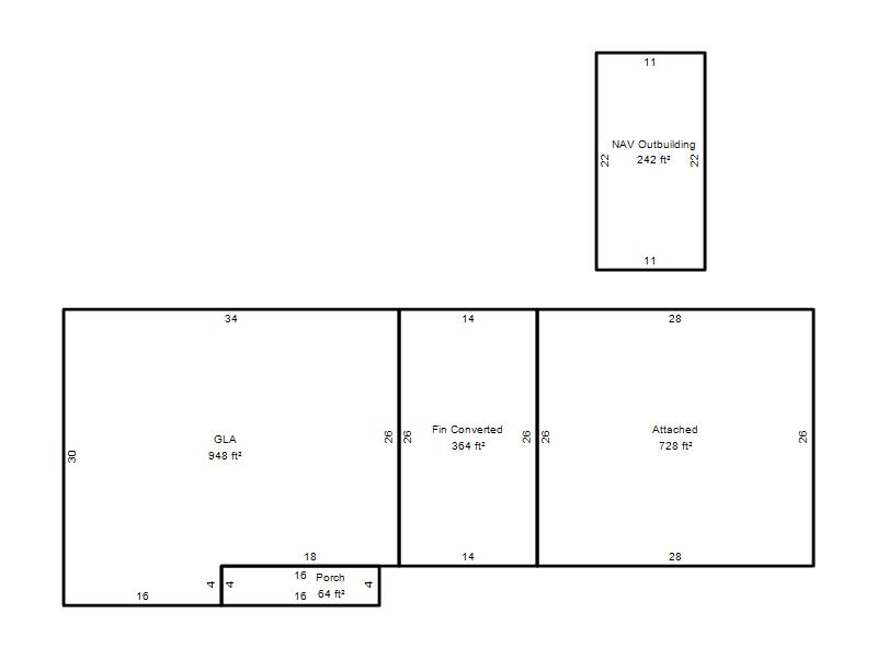
| Photo & Sketch (if available) | Comp Sales (ordered by relevancy) |
|
||||||||||||||||||
|
||||||||||||||||||||
| Value History (*The County Treasurer 405-713-1300 posts & collects actual tax amounts. Contact information HERE) | |||||||||||||
|---|---|---|---|---|---|---|---|---|---|---|---|---|---|
| Year | Market Value | Taxable Mkt Value | Gross Assessed | Exemption | Net Assessed | Millage | Est. Tax | Tax Savings | |||||
|
2025 |
146,500 |
113,648 |
12,501 |
0 |
12,501 |
117.21 |
$1,465 |
$424 |
|||||
|
2024 |
127,500 |
108,237 |
11,905 |
0 |
11,905 |
116.35 |
$1,385 |
$247 |
|||||
|
2023 |
133,500 |
103,083 |
11,338 |
0 |
11,338 |
118.06 |
$1,339 |
$395 |
|||||
|
2022 |
101,500 |
98,175 |
10,799 |
0 |
10,799 |
116.14 |
$1,254 |
$42 |
|||||
|
2021 |
93,500 |
93,500 |
10,285 |
0 |
10,285 |
116.17 |
$1,195 |
$0 |
|||||
| Property Account Status/Adjustments/Exemptions | ||
|---|---|---|
| Account # | Exemption Description | Amount |
|
R194695085 |
5% Capped Account |
0 |
| Property Deed Transaction History (Recorded in the County Clerk's Office) | ||||||||||
|---|---|---|---|---|---|---|---|---|---|---|
| Date | Type | Book | Page | Price | Grantor | Grantee | ||||
|
5/10/2017 |
|
Deeds |
$106,500 |
BAILEY AUSTIN & MARSHA |
DENWALT LEVI |
|||||
|
10/3/2013 |
|
Deeds |
$82,500 |
SANDERS ALAN SANDERS ROSE MARIE |
BAILEY AUSTIN & MARSHA |
|||||
|
12/30/2009 |
|
Hmstd Off & |
$0 |
AFFIDAVIT OF SUCCESSOR TRUSTEE |
WHITTET DAVID TRS PRICE BLANCHE A TRUST |
|||||
|
12/30/2009 |
|
Deeds |
$65,000 |
WHITTET DAVID TRS PRICE BLANCHE A TRUST |
SANDERS ALAN SANDERS ROSE MARIE |
|||||
|
12/15/1997 |
|
Historical |
$0 |
PRICE BLANCHE |
PRICE BLANCHE A TRUST |
|||||
| Last Mailed Notice of Value (N.O.V.) Information/History | ||||||||
|---|---|---|---|---|---|---|---|---|
| Year | Date | Market Value | Taxable Market Value | Gross Assessed | Exemption | Net Assessed | ||
|
2025 |
03/28/2025 |
146,500 |
113,648 |
12,501 |
0 |
12,501 |
||
|
2024 |
01/22/2024 |
127,500 |
108,237 |
11,905 |
0 |
11,905 |
||
|
2023 |
01/23/2023 |
133,500 |
103,083 |
11,338 |
0 |
11,338 |
||
|
2022 |
02/22/2022 |
101,500 |
98,175 |
10,799 |
0 |
10,799 |
||
|
2018 |
04/09/2018 |
101,500 |
101,500 |
11,165 |
0 |
11,165 |
||
| Property Building Permit History | ||||||
|---|---|---|---|---|---|---|
| Issued | Permit # | Provided by | Bldg # | Description | Est Construction Cost | Status |
|
7/8/2019 |
|
|
1 |
Remodeled |
|
Active |
| Click button on building number to access detailed information: | ||||||
|---|---|---|---|---|---|---|
| Bldg # | Vacant/Improved Land | Bldg Description | Year Built | SqFt | # Stories | |
|
1 |
Improved |
Ranch 1 Story |
1959 |
948 |
1 Stories |
|