|
|
|
| Larry Stein Oklahoma County Assessor (405) 713-1200 - Public Access System |
|
|
|
|
|
|
| Real Property Display - Screen Produced 3/12/2026 4:16:33 PM | ||||
|---|---|---|---|---|
| Account: R194692025 | Type: Residential | Location: |
4792 N HENNEY RD |
|
| Building Name/Occupant: |
|
CHOCTAW |
||
| Owner Name 1: | ROGERS JESSICA & NATHAN |
Parcel PIN#: |
2256-19-469-2025 |
|
| Owner Name 2: | 1/4 section #: |
2256 |
||
| Owner Name 3: | Parent Acct: |
|
||
| Billing Address: | 4792 N HENNEY RD | Tax District: |
|
|
| City, State, Zip | CHOCTAW, OK 73020 | School System: |
Jones #9 |
|
|
Country: (If noted) |
Land Size: |
5.0000 Acres |
||
|
Land Value: 76,485 |
|
|||
|
Sect 14-T12N-R1W Qtr NW |
UNPLTD PT SEC 14 12N 1W
Block
000
Lot
000
|
|||
| Full Legal Description: UNPLTD PT SEC 14 12N 1W 000 000 PT NW4 SEC 14 12N 1W S 1/2 OF SW4 OF NW4 OF NW4 CONT 5ACRS MORE OR LESS |
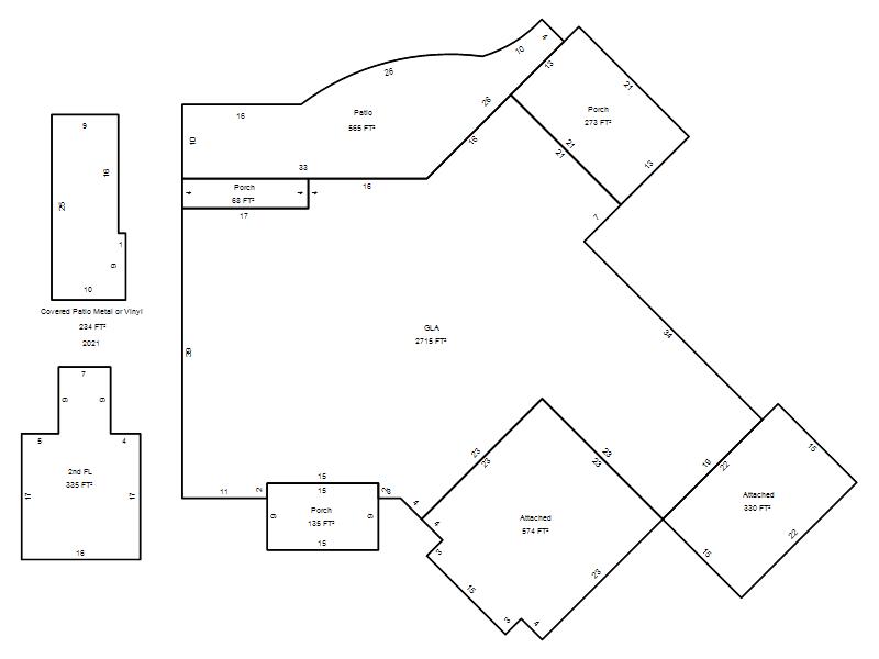
| Photo & Sketch (if available) | Comp Sales (ordered by relevancy) |
|
||||||||||||||||||
|
||||||||||||||||||||
| Value History (*The County Treasurer 405-713-1300 posts & collects actual tax amounts. Contact information HERE) | |||||||||||||
|---|---|---|---|---|---|---|---|---|---|---|---|---|---|
| Year | Market Value | Taxable Mkt Value | Gross Assessed | Exemption | Net Assessed | Millage | Est. Tax | Tax Savings | |||||
|
2025 |
558,500 |
413,879 |
45,525 |
0 |
45,525 |
114.89 |
$5,231 |
$1,828 |
|||||
|
2024 |
508,000 |
394,171 |
43,358 |
0 |
43,358 |
115.31 |
$5,000 |
$1,444 |
|||||
|
2023 |
523,000 |
375,401 |
41,293 |
0 |
41,293 |
113.61 |
$4,691 |
$1,845 |
|||||
|
2022 |
398,500 |
357,525 |
39,327 |
0 |
39,327 |
109.90 |
$4,322 |
$495 |
|||||
|
2021 |
340,500 |
340,500 |
37,455 |
0 |
37,455 |
112.35 |
$4,208 |
$0 |
|||||
| Property Account Status/Adjustments/Exemptions | ||
|---|---|---|
| Account # | Exemption Description | Amount |
|
R194692025 |
5% Capped Account |
0 |
| Property Deed Transaction History (Recorded in the County Clerk's Office) | ||||||||||
|---|---|---|---|---|---|---|---|---|---|---|
| Date | Type | Book | Page | Price | Grantor | Grantee | ||||
|
2/10/2017 |
|
Deeds |
$0 |
SANDERS DELORES J & JAMES E |
ROGERS JESSICA & NATHAN |
|||||
|
11/2/2016 |
|
Deeds |
$0 |
SANDERS JESSICA NKA ROGERS |
ROGERS JESSICA & NATHAN |
|||||
|
6/12/2015 |
|
Deeds |
$0 |
SANDERS DELORES J & JAMES E |
SANDERS DELORES J |
|||||
|
6/12/2015 |
|
Hmstd Off & |
$0 |
SANDERS DELORES J |
SANDERS JESSICA |
|||||
|
7/17/2003 |
|
Deeds |
$0 |
SANDERS DELORES J FKA HOPWOOD DELORES J & JAMES E |
SANDERS DELORES J & JAMES E |
|||||
| Last Mailed Notice of Value (N.O.V.) Information/History | ||||||||
|---|---|---|---|---|---|---|---|---|
| Year | Date | Market Value | Taxable Market Value | Gross Assessed | Exemption | Net Assessed | ||
|
2026 |
02/06/2026 |
600,500 |
434,572 |
47,802 |
0 |
47,802 |
||
|
2025 |
01/31/2025 |
558,500 |
413,879 |
45,525 |
0 |
45,525 |
||
|
2024 |
01/22/2024 |
508,000 |
394,171 |
43,358 |
0 |
43,358 |
||
|
2023 |
01/23/2023 |
523,000 |
375,401 |
41,293 |
0 |
41,293 |
||
|
2022 |
02/22/2022 |
398,500 |
357,525 |
39,327 |
0 |
39,327 |
||
| Property Building Permit History | ||||||
|---|---|---|---|---|---|---|
| Issued | Permit # | Provided by | Bldg # | Description | Est Construction Cost | Status |
|
8/30/2017 |
10493660 |
CHOCTAW |
1 |
Main Dwellin |
300,000 |
Inactive |
|
10/30/2012 |
10445500 |
CHOCTAW |
1 |
Demolish |
0 |
Inactive |
|
2/28/2005 |
10304933 |
CHOCTAW |
1 |
Main Dwellin |
75,000 |
Inactive |
| Click button on building number to access detailed information: | ||||||
|---|---|---|---|---|---|---|
| Bldg # | Vacant/Improved Land | Bldg Description | Year Built | SqFt | # Stories | |
|
1 |
Improved |
1½ Story Fin |
2017 |
3,050 |
1.5 Stories |
|