|
|
|
| Larry Stein Oklahoma County Assessor (405) 713-1200 - Public Access System |
|
|
|
|
|
|
| Real Property Display - Screen Produced 3/12/2026 4:16:27 PM | ||||
|---|---|---|---|---|
| Account: R194692050 | Type: Residential | Location: |
4530 N VARGAS RD |
|
| Building Name/Occupant: |
|
CHOCTAW |
||
| Owner Name 1: | MILLER JANET TRS |
Parcel PIN#: |
2256-19-469-2050 |
|
| Owner Name 2: | MILLER JANET LIVING TRUST | 1/4 section #: |
2256 |
|
| Owner Name 3: | Parent Acct: |
|
||
| Billing Address: | PO BOX 1413 | Tax District: |
|
|
| City, State, Zip | CHOCTAW, OK 73020-1413 | School System: |
Jones #9 |
|
|
Country: (If noted) |
Land Size: |
5.0000 Acres |
||
|
Land Value: 76,485 |
|
|||
|
Sect 14-T12N-R1W Qtr NW |
UNPLTD PT SEC 14 12N 1W
Block
000
Lot
000
|
|||
| Full Legal Description: UNPLTD PT SEC 14 12N 1W 000 000 PT NW4 SEC 14 12N 1W W 1/2 OF NE4 OF SE4 OF NW4 CONT 5ACRS MORE OR LESS |
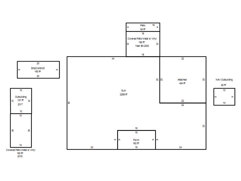
| Photo & Sketch (if available) | Comp Sales (ordered by relevancy) |
|
||||||||||||||||||
|
||||||||||||||||||||
| Value History (*The County Treasurer 405-713-1300 posts & collects actual tax amounts. Contact information HERE) | |||||||||||||
|---|---|---|---|---|---|---|---|---|---|---|---|---|---|
| Year | Market Value | Taxable Mkt Value | Gross Assessed | Exemption | Net Assessed | Millage | Est. Tax | Tax Savings | |||||
|
2025 |
354,500 |
202,153 |
22,236 |
1,000 |
21,236 |
114.89 |
$2,440 |
$2,040 |
|||||
|
2024 |
320,500 |
202,153 |
22,236 |
1,000 |
21,236 |
115.31 |
$2,449 |
$1,616 |
|||||
|
2023 |
315,500 |
202,153 |
22,236 |
1,000 |
21,236 |
113.61 |
$2,413 |
$1,530 |
|||||
|
2022 |
250,000 |
202,153 |
22,236 |
1,000 |
21,236 |
109.90 |
$2,334 |
$688 |
|||||
|
2021 |
204,000 |
202,153 |
22,236 |
1,000 |
21,236 |
112.35 |
$2,386 |
$135 |
|||||
| Property Account Status/Adjustments/Exemptions | ||
|---|---|---|
| Account # | Exemption Description | Amount |
|
R194692050 |
Freeze Senior Valuation |
0 |
|
R194692050 |
3% Cap Homestead |
0 |
|
R194692050 |
Homestead |
1,000 |
| Property Deed Transaction History (Recorded in the County Clerk's Office) | |||||||
|---|---|---|---|---|---|---|---|
| Date | Type | Book | Page | Price | Grantor | Grantee | |
|
4/6/2016 |
|
Deeds |
$0 |
MILLER JANET RUTH |
MILLER JANET TRS |
||
|
9/13/2002 |
|
Deeds |
$0 |
MILLER JANET RUTH FITTS |
MILLER JANET RUTH |
||
|
9/1/1982 |
|
Historical |
$0 |
|
MILLER JANET RUTH FITTS |
||
| Last Mailed Notice of Value (N.O.V.) Information/History | ||||||||
|---|---|---|---|---|---|---|---|---|
| Year | Date | Market Value | Taxable Market Value | Gross Assessed | Exemption | Net Assessed | ||
|
2026 |
02/06/2026 |
362,000 |
202,153 |
22,236 |
1,000 |
21,236 |
||
|
2025 |
01/31/2025 |
354,500 |
202,153 |
22,236 |
1,000 |
21,236 |
||
|
2024 |
01/22/2024 |
320,500 |
202,153 |
22,236 |
1,000 |
21,236 |
||
|
2023 |
01/23/2023 |
315,500 |
202,153 |
22,236 |
1,000 |
21,236 |
||
|
2022 |
02/22/2022 |
250,000 |
202,153 |
22,236 |
1,000 |
21,236 |
||
| Property Building Permit History | |||||||||||
|---|---|---|---|---|---|---|---|---|---|---|---|
| Issued | Permit # | Provided by | Bldg # | Description | Est Construction Cost | Status | |||||
| No Building Permit records returned. | |||||||||||
| Click button on building number to access detailed information: | ||||||
|---|---|---|---|---|---|---|
| Bldg # | Vacant/Improved Land | Bldg Description | Year Built | SqFt | # Stories | |
|
1 |
Improved |
Ranch 1 Story |
1986 |
2,258 |
1 Stories |
|