|
|
|
| Larry Stein Oklahoma County Assessor (405) 713-1200 - Public Access System |
|
|
|
|
|
|
| Real Property Display - Screen Produced 3/12/2026 4:17:08 PM | ||||
|---|---|---|---|---|
| Account: R194692070 | Type: Residential | Location: |
0 UNKNOWN |
|
| Building Name/Occupant: |
|
CHOCTAW |
||
| Owner Name 1: | PARKER PAUL & JACQUITA TRS |
Parcel PIN#: |
2256-19-469-2070 |
|
| Owner Name 2: | PARKER FAMILY REV TRUST | 1/4 section #: |
2256 |
|
| Owner Name 3: | Parent Acct: |
|
||
| Billing Address: | 4740 N VARGAS RD | Tax District: |
|
|
| City, State, Zip | CHOCTAW, OK 73020-9006 | School System: |
Jones #9 |
|
|
Country: (If noted) |
Land Size: |
2.5000 Acres |
||
|
Land Value: 49,000 |
|
|||
|
Sect 14-T12N-R1W Qtr NW |
UNPLTD PT SEC 14 12N 1W
Block
000
Lot
000
|
|||
| Full Legal Description: UNPLTD PT SEC 14 12N 1W 000 000 PT NW4 SEC 14 12N 1W BEING E1/2 N1/2 SW4 NE4 NW4 SUBJ TO ESMTS OF RECORD |
| No comparable sales report available. | ||||||||||||||||||||||
|
||||||||||||||||||||||
| Value History (*The County Treasurer 405-713-1300 posts & collects actual tax amounts. Contact information HERE) | |||||||||||||
|---|---|---|---|---|---|---|---|---|---|---|---|---|---|
| Year | Market Value | Taxable Mkt Value | Gross Assessed | Exemption | Net Assessed | Millage | Est. Tax | Tax Savings | |||||
|
2025 |
90,706 |
19,150 |
2,106 |
0 |
2,106 |
114.89 |
$242 |
$904 |
|||||
|
2024 |
90,922 |
18,239 |
2,005 |
0 |
2,005 |
115.31 |
$231 |
$922 |
|||||
|
2023 |
91,150 |
17,371 |
1,909 |
0 |
1,909 |
113.61 |
$217 |
$922 |
|||||
|
2022 |
91,378 |
16,544 |
1,819 |
0 |
1,819 |
109.90 |
$200 |
$905 |
|||||
|
2021 |
63,585 |
15,757 |
1,732 |
0 |
1,732 |
112.35 |
$195 |
$591 |
|||||
| Property Account Status/Adjustments/Exemptions | ||
|---|---|---|
| Account # | Exemption Description | Amount |
|
R194692070 |
5% Capped Account |
0 |
| Property Deed Transaction History (Recorded in the County Clerk's Office) | |||||||
|---|---|---|---|---|---|---|---|
| Date | Type | Book | Page | Price | Grantor | Grantee | |
|
5/1/2019 |
|
Deeds |
$0 |
PARKER PAUL R & JACQUITA |
PARKER PAUL & JACQUITA TRS |
||
|
12/8/1993 |
|
Historical |
$0 |
PARKER PAUL R & JACQUITA |
PARKER PAUL R & JACQUITA |
||
|
10/16/1990 |
|
Historical |
$0 |
|
PARKER PAUL R & JACQUITA |
||
| Last Mailed Notice of Value (N.O.V.) Information/History | ||||||||
|---|---|---|---|---|---|---|---|---|
| Year | Date | Market Value | Taxable Market Value | Gross Assessed | Exemption | Net Assessed | ||
|
2025 |
01/31/2025 |
90,706 |
19,150 |
2,106 |
0 |
2,106 |
||
|
2024 |
01/22/2024 |
90,922 |
18,239 |
2,005 |
0 |
2,005 |
||
|
2023 |
01/23/2023 |
91,150 |
17,371 |
1,909 |
0 |
1,909 |
||
|
2022 |
02/22/2022 |
91,378 |
16,544 |
1,818 |
0 |
1,818 |
||
|
2021 |
02/24/2021 |
63,585 |
15,757 |
1,733 |
0 |
1,733 |
||
| Property Building Permit History | |||||||||||
|---|---|---|---|---|---|---|---|---|---|---|---|
| Issued | Permit # | Provided by | Bldg # | Description | Est Construction Cost | Status | |||||
| No Building Permit records returned. | |||||||||||
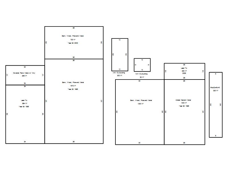
| Click button on building number to access detailed information: | ||||||
|---|---|---|---|---|---|---|
| Bldg # | Vacant/Improved Land | Bldg Description | Year Built | SqFt | # Stories | |
|
1 |
Improved |
Misc Imp - Res |
1989 |
|
1 Stories |
|