|
|
|
| Larry Stein Oklahoma County Assessor (405) 713-1200 - Public Access System |
|
|
|
|
|
|
| Real Property Display - Screen Produced 3/12/2026 4:20:02 PM | ||||
|---|---|---|---|---|
| Account: R194692080 | Type: Residential | Location: |
4880 N HENNEY RD |
|
| Building Name/Occupant: |
|
CHOCTAW |
||
| Owner Name 1: | JONES LINDA L |
Parcel PIN#: |
2256-19-469-2080 |
|
| Owner Name 2: | 1/4 section #: |
2256 |
||
| Owner Name 3: | Parent Acct: |
|
||
| Billing Address: | 4880 N HENNEY RD | Tax District: |
|
|
| City, State, Zip | CHOCTAW, OK 73020-9129 | School System: |
Jones #9 |
|
|
Country: (If noted) |
Land Size: |
3.2100 Acres |
||
|
Land Value: 57,536 |
|
|||
|
Sect 14-T12N-R1W Qtr NW |
UNPLTD PT SEC 14 12N 1W
Block
000
Lot
000
|
|||
| Full Legal Description: UNPLTD PT OF NW4 SEC 14 12N 1W BEG 410FT S OF NW/C OF NW4 TH E561FT S250FT W561FT N250FT TO BEG |
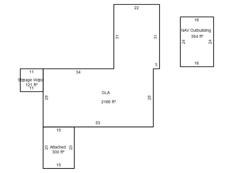
| Photo & Sketch (if available) | Comp Sales (ordered by relevancy) |
|
||||||||||||||||||
|
||||||||||||||||||||
| Value History (*The County Treasurer 405-713-1300 posts & collects actual tax amounts. Contact information HERE) | |||||||||||||
|---|---|---|---|---|---|---|---|---|---|---|---|---|---|
| Year | Market Value | Taxable Mkt Value | Gross Assessed | Exemption | Net Assessed | Millage | Est. Tax | Tax Savings | |||||
|
2025 |
257,000 |
184,019 |
20,241 |
1,000 |
19,241 |
114.89 |
$2,211 |
$1,037 |
|||||
|
2024 |
229,000 |
178,660 |
19,652 |
1,000 |
18,652 |
115.31 |
$2,151 |
$754 |
|||||
|
2023 |
238,000 |
173,457 |
19,079 |
1,000 |
18,079 |
113.61 |
$2,054 |
$920 |
|||||
|
2022 |
188,500 |
168,405 |
18,524 |
1,000 |
17,524 |
109.90 |
$1,926 |
$353 |
|||||
|
2021 |
163,500 |
163,500 |
17,985 |
1,000 |
16,985 |
112.35 |
$1,908 |
$112 |
|||||
| Property Account Status/Adjustments/Exemptions | ||
|---|---|---|
| Account # | Exemption Description | Amount |
|
R194692080 |
3% Cap Homestead |
0 |
|
R194692080 |
Homestead |
1,000 |
| Property Deed Transaction History (Recorded in the County Clerk's Office) | |||||||
|---|---|---|---|---|---|---|---|
| Date | Type | Book | Page | Price | Grantor | Grantee | |
|
5/28/2025 |
|
Deeds |
$0 |
JONES RICHARD D & LINDA L CO TRS |
JONES LINDA L |
||
|
4/8/2005 |
|
Deeds |
$0 |
JONES RICHARD D & LINDA L |
JONES RICHARD D & LINDA L CO TRS |
||
|
7/1/1973 |
|
Historical |
$0 |
|
JONES RICHARD D & LINDA L |
||
| Last Mailed Notice of Value (N.O.V.) Information/History | ||||||||
|---|---|---|---|---|---|---|---|---|
| Year | Date | Market Value | Taxable Market Value | Gross Assessed | Exemption | Net Assessed | ||
|
2026 |
02/06/2026 |
264,000 |
189,539 |
20,849 |
1,000 |
19,849 |
||
|
2025 |
01/31/2025 |
257,000 |
184,019 |
20,241 |
1,000 |
19,241 |
||
|
2024 |
01/22/2024 |
229,000 |
178,660 |
19,652 |
1,000 |
18,652 |
||
|
2023 |
01/23/2023 |
238,000 |
173,457 |
19,079 |
1,000 |
18,079 |
||
|
2022 |
02/22/2022 |
188,500 |
168,405 |
18,524 |
1,000 |
17,524 |
||
| Property Building Permit History | ||||||
|---|---|---|---|---|---|---|
| Issued | Permit # | Provided by | Bldg # | Description | Est Construction Cost | Status |
|
7/29/2005 |
10309863 |
CHOCTAW |
1 |
Main Dwellin |
2,005 |
Inactive |
| Click button on building number to access detailed information: | ||||||
|---|---|---|---|---|---|---|
| Bldg # | Vacant/Improved Land | Bldg Description | Year Built | SqFt | # Stories | |
|
1 |
Improved |
Ranch 1 Story |
1971 |
2,166 |
1 Stories |
|