|
|
|
| Larry Stein Oklahoma County Assessor (405) 713-1200 - Public Access System |
|
|
|
|
|
|
| Real Property Display - Screen Produced 3/12/2026 4:14:44 PM | ||||
|---|---|---|---|---|
| Account: R194692500 | Type: Residential | Location: |
14366 NE 50TH ST |
|
| Building Name/Occupant: |
|
CHOCTAW |
||
| Owner Name 1: | TREIB MARLA SUE |
Parcel PIN#: |
2256-19-469-2500 |
|
| Owner Name 2: | 1/4 section #: |
2256 |
||
| Owner Name 3: | Parent Acct: |
|
||
| Billing Address: | 14366 NE 50TH ST | Tax District: |
|
|
| City, State, Zip | CHOCTAW, OK 73020 | School System: |
Jones #9 |
|
|
Country: (If noted) |
Land Size: |
5.3300 Acres |
||
|
Land Value: 79,690 |
|
|||
|
Sect 14-T12N-R1W Qtr NW |
UNPLTD PT SEC 14 12N 1W
Block
000
Lot
000
|
|||
| Full Legal Description: UNPLTD PT SEC 14 12N 1W 000 000 PT NW4 SEC 14 12N 1W BEG 322.09FT E OF NW/C OF NW4 NE4 NW4 TH E340.04FT S664.42FT W422.92FT NELY177.82FT N507.71FT TO BEG AKA TR 1 CONT 5.33ACRS MORE OR LESS SUBJ TO ESMTS OF RECORD |
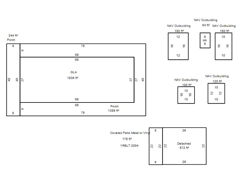
| Photo & Sketch (if available) | Comp Sales (ordered by relevancy) |
|
||||||||||||||||||
|
||||||||||||||||||||
| Value History (*The County Treasurer 405-713-1300 posts & collects actual tax amounts. Contact information HERE) | |||||||||||||
|---|---|---|---|---|---|---|---|---|---|---|---|---|---|
| Year | Market Value | Taxable Mkt Value | Gross Assessed | Exemption | Net Assessed | Millage | Est. Tax | Tax Savings | |||||
|
2025 |
383,500 |
363,825 |
40,020 |
0 |
40,020 |
114.89 |
$4,598 |
$249 |
|||||
|
2024 |
346,500 |
346,500 |
38,115 |
0 |
38,115 |
115.31 |
$4,395 |
$0 |
|||||
|
2023 |
335,000 |
335,000 |
36,850 |
0 |
36,850 |
113.61 |
$4,187 |
$0 |
|||||
|
2022 |
325,500 |
325,500 |
35,805 |
0 |
35,805 |
109.90 |
$3,935 |
$0 |
|||||
|
2021 |
283,000 |
283,000 |
31,130 |
1,000 |
30,130 |
112.35 |
$3,385 |
$112 |
|||||
| Property Account Status/Adjustments/Exemptions | ||
|---|---|---|
| Account # | Exemption Description | Amount |
|
R194692500 |
5% Capped Account |
0 |
| Property Deed Transaction History (Recorded in the County Clerk's Office) | ||||||||||
|---|---|---|---|---|---|---|---|---|---|---|
| Date | Type | Book | Page | Price | Grantor | Grantee | ||||
|
6/30/2021 |
|
Deeds |
$335,000 |
TESTI CAROLYN |
TREIB MARLA SUE |
|||||
|
6/28/2019 |
|
Deeds |
$295,000 |
HALL KATHY L |
TESTI CAROLYN |
|||||
|
10/12/2018 |
|
Deeds |
$0 |
HALL KATHY L |
HALL KATHY L |
|||||
|
10/3/2000 |
|
Deeds |
$0 |
AFFIDAVIT SURVIVING JOINT TENANT |
HALL KATHY L |
|||||
|
10/27/1992 |
|
Historical |
$0 |
VARGAS CARLOS & EDNA M |
HALL WILLIAM E & KATHY L |
|||||
| Last Mailed Notice of Value (N.O.V.) Information/History | ||||||||
|---|---|---|---|---|---|---|---|---|
| Year | Date | Market Value | Taxable Market Value | Gross Assessed | Exemption | Net Assessed | ||
|
2026 |
02/06/2026 |
397,500 |
382,016 |
42,021 |
0 |
42,021 |
||
|
2025 |
01/31/2025 |
383,500 |
363,825 |
40,020 |
0 |
40,020 |
||
|
2024 |
01/22/2024 |
346,500 |
346,500 |
38,115 |
0 |
38,115 |
||
|
2023 |
01/23/2023 |
335,000 |
335,000 |
36,850 |
0 |
36,850 |
||
|
2022 |
02/22/2022 |
325,500 |
325,500 |
35,805 |
0 |
35,805 |
||
| Property Building Permit History | ||||||
|---|---|---|---|---|---|---|
| Issued | Permit # | Provided by | Bldg # | Description | Est Construction Cost | Status |
|
4/4/1996 |
10262490 |
CHOCTAW |
1 |
Garage |
2,250 |
Inactive |
|
9/27/1994 |
10262491 |
CHOCTAW |
1 |
Main Dwellin |
110,000 |
Inactive |
| Click button on building number to access detailed information: | ||||||
|---|---|---|---|---|---|---|
| Bldg # | Vacant/Improved Land | Bldg Description | Year Built | SqFt | # Stories | |
|
1 |
Improved |
Ranch 1 Story |
1995 |
1,836 |
1 Stories |
|