|
|
|
| Larry Stein Oklahoma County Assessor (405) 713-1200 - Public Access System |
|
|
|
|
|
|
| Real Property Display - Screen Produced 3/12/2026 4:17:38 PM | ||||
|---|---|---|---|---|
| Account: R194692520 | Type: Residential | Location: |
14410 NE 50TH ST |
|
| Building Name/Occupant: |
|
CHOCTAW |
||
| Owner Name 1: | STANOLIS JEFF ANDREW |
Parcel PIN#: |
2256-19-469-2520 |
|
| Owner Name 2: | 1/4 section #: |
2256 |
||
| Owner Name 3: | Parent Acct: |
|
||
| Billing Address: | 14410 NE 50TH ST | Tax District: |
|
|
| City, State, Zip | CHOCTAW, OK 73020-9510 | School System: |
Jones #9 |
|
|
Country: (If noted) |
Land Size: |
5.0000 Acres |
||
|
Land Value: 76,485 |
|
|||
|
Sect 14-T12N-R1W Qtr NW |
UNPLTD PT SEC 14 12N 1W
Block
000
Lot
000
|
|||
| Full Legal Description: UNPLTD PT SEC 14 12N 1W 000 000 PT NW4 SEC 14 12N 1W BEING W/2 OF NE4 NE4 NW4 ALSO DESCRIBED AS BEG 331.07FT W OF NE/C NW4 TH W331.07FT S664.42FT E331.48FT N664.95FT TO BEG SUBJ TO ESMTS OF RECORD |
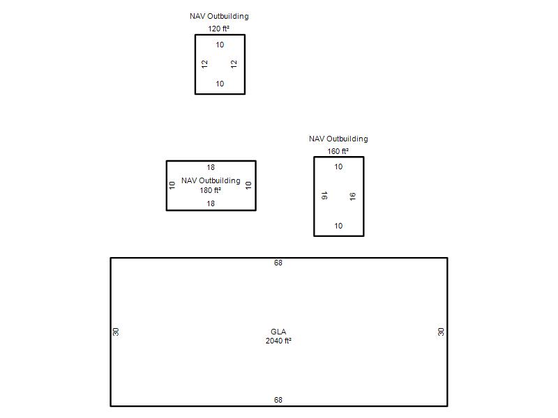
| Photo & Sketch (if available) | Comp Sales (ordered by relevancy) |
|
||||||||||||||||||
|
||||||||||||||||||||
| Value History (*The County Treasurer 405-713-1300 posts & collects actual tax amounts. Contact information HERE) | |||||||||||||
|---|---|---|---|---|---|---|---|---|---|---|---|---|---|
| Year | Market Value | Taxable Mkt Value | Gross Assessed | Exemption | Net Assessed | Millage | Est. Tax | Tax Savings | |||||
|
2025 |
280,500 |
179,285 |
19,721 |
0 |
19,721 |
114.89 |
$2,266 |
$1,279 |
|||||
|
2024 |
251,000 |
170,748 |
18,781 |
0 |
18,781 |
115.31 |
$2,166 |
$1,018 |
|||||
|
2023 |
245,000 |
162,618 |
17,887 |
0 |
17,887 |
113.61 |
$2,032 |
$1,030 |
|||||
|
2022 |
181,000 |
154,875 |
17,036 |
0 |
17,036 |
109.90 |
$1,872 |
$316 |
|||||
|
2021 |
147,500 |
147,500 |
16,225 |
0 |
16,225 |
112.35 |
$1,823 |
$0 |
|||||
| Property Account Status/Adjustments/Exemptions | ||
|---|---|---|
| Account # | Exemption Description | Amount |
|
R194692520 |
5% Capped Account |
0 |
| Property Deed Transaction History (Recorded in the County Clerk's Office) | ||||||||||
|---|---|---|---|---|---|---|---|---|---|---|
| Date | Type | Book | Page | Price | Grantor | Grantee | ||||
|
4/28/2015 |
|
Deeds |
$0 |
STANOLIS ANTHONY & PATRICIA L |
STANOLIS JEFF ANDREW |
|||||
|
7/16/2012 |
|
Deeds |
$0 |
STANOLIS PATRICIA L |
STANOLIS JEFF ANDREW |
|||||
|
3/22/2010 |
|
Deeds |
$0 |
STANOLIS ANTHONY |
STANOLIS PATRICIA L |
|||||
|
6/4/2009 |
|
Deeds |
$0 |
STANOLIS ANTHONY & PATRICIA L |
STANOLIS ANTHONY & PATRICIA L STANOLIS JEFF ANDREW |
|||||
|
2/3/1988 |
|
Historical |
$0 |
VARGAS CAROLS & EDNA M |
STANOLIS ANTHONY & PATRICIA L |
|||||
| Last Mailed Notice of Value (N.O.V.) Information/History | ||||||||
|---|---|---|---|---|---|---|---|---|
| Year | Date | Market Value | Taxable Market Value | Gross Assessed | Exemption | Net Assessed | ||
|
2026 |
02/06/2026 |
262,000 |
188,249 |
20,707 |
0 |
20,707 |
||
|
2025 |
01/31/2025 |
280,500 |
179,285 |
19,721 |
0 |
19,721 |
||
|
2024 |
01/22/2024 |
251,000 |
170,748 |
18,781 |
0 |
18,781 |
||
|
2023 |
01/23/2023 |
245,000 |
162,618 |
17,887 |
0 |
17,887 |
||
|
2022 |
02/22/2022 |
181,000 |
154,875 |
17,036 |
0 |
17,036 |
||
| Property Building Permit History | ||||||
|---|---|---|---|---|---|---|
| Issued | Permit # | Provided by | Bldg # | Description | Est Construction Cost | Status |
|
7/27/2015 |
10475711 |
CHOCTAW |
1 |
Main Dwellin |
127,000 |
Inactive |
| Click button on building number to access detailed information: | ||||||
|---|---|---|---|---|---|---|
| Bldg # | Vacant/Improved Land | Bldg Description | Year Built | SqFt | # Stories | |
|
1 |
Improved |
Modular |
2015 |
2,040 |
1 Stories |
|