|
|
|
| Larry Stein Oklahoma County Assessor (405) 713-1200 - Public Access System |
|
|
|
|
|
|
| Real Property Display - Screen Produced 3/12/2026 4:14:44 PM | ||||
|---|---|---|---|---|
| Account: R194693020 | Type: Residential | Location: |
14169 E VARGAS RD |
|
| Building Name/Occupant: |
|
CHOCTAW |
||
| Owner Name 1: | TUBBS RAMONA & LARRY |
Parcel PIN#: |
2256-19-469-3020 |
|
| Owner Name 2: | 1/4 section #: |
2256 |
||
| Owner Name 3: | Parent Acct: |
|
||
| Billing Address: | 14279 E VARGAS RD | Tax District: |
|
|
| City, State, Zip | CHOCTAW, OK 73020-9005 | School System: |
Jones #9 |
|
|
Country: (If noted) |
Land Size: |
1.1400 Acres |
||
|
Land Value: 29,588 |
|
|||
|
Sect 14-T12N-R1W Qtr NW |
UNPLTD PT SEC 14 12N 1W
Block
000
Lot
000
|
|||
| Full Legal Description: UNPLTD PT NW4 SEC 14 12N 1W BEG 450FT W OF SE/C N 1/2 SE4 SW4 NW4 TH W150FT N331.09FT E150FT S331.21FT TO BEG SUBJ TO ESMTS OF RECORD |
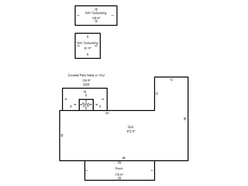
| Photo & Sketch (if available) | Comp Sales (ordered by relevancy) |
|
||||||||||||||||||
|
||||||||||||||||||||
| Value History (*The County Treasurer 405-713-1300 posts & collects actual tax amounts. Contact information HERE) | |||||||||||||
|---|---|---|---|---|---|---|---|---|---|---|---|---|---|
| Year | Market Value | Taxable Mkt Value | Gross Assessed | Exemption | Net Assessed | Millage | Est. Tax | Tax Savings | |||||
|
2025 |
176,500 |
120,941 |
13,303 |
0 |
13,303 |
114.89 |
$1,528 |
$702 |
|||||
|
2024 |
152,000 |
115,182 |
12,669 |
0 |
12,669 |
115.31 |
$1,461 |
$467 |
|||||
|
2023 |
149,000 |
109,698 |
12,066 |
0 |
12,066 |
113.61 |
$1,371 |
$491 |
|||||
|
2022 |
120,000 |
104,475 |
11,492 |
0 |
11,492 |
109.90 |
$1,263 |
$188 |
|||||
|
2021 |
99,500 |
99,500 |
10,945 |
0 |
10,945 |
112.35 |
$1,230 |
$0 |
|||||
| Property Account Status/Adjustments/Exemptions | ||
|---|---|---|
| Account # | Exemption Description | Amount |
|
R194693020 |
5% Capped Account |
0 |
| Property Deed Transaction History (Recorded in the County Clerk's Office) | |||||||
|---|---|---|---|---|---|---|---|
| Date | Type | Book | Page | Price | Grantor | Grantee | |
|
3/27/2022 |
|
Deeds |
$0 |
TUBBS LARRY E |
TUBBS RAMONA & LARRY |
||
|
6/30/2005 |
|
Deeds |
$56,000 |
KILLINGSWORTH BARBARA J |
TUBBS LARRY E |
||
|
10/1/1985 |
|
Historical |
$0 |
|
KILLINGSWORTH BARBARA J |
||
| Last Mailed Notice of Value (N.O.V.) Information/History | ||||||||
|---|---|---|---|---|---|---|---|---|
| Year | Date | Market Value | Taxable Market Value | Gross Assessed | Exemption | Net Assessed | ||
|
2025 |
01/31/2025 |
176,500 |
120,941 |
13,303 |
0 |
13,303 |
||
|
2024 |
01/22/2024 |
152,000 |
115,182 |
12,669 |
0 |
12,669 |
||
|
2023 |
01/23/2023 |
149,000 |
109,698 |
12,066 |
0 |
12,066 |
||
|
2022 |
02/22/2022 |
120,000 |
104,475 |
11,492 |
0 |
11,492 |
||
|
2021 |
02/24/2021 |
99,500 |
99,500 |
10,945 |
0 |
10,945 |
||
| Property Building Permit History | |||||||||||
|---|---|---|---|---|---|---|---|---|---|---|---|
| Issued | Permit # | Provided by | Bldg # | Description | Est Construction Cost | Status | |||||
| No Building Permit records returned. | |||||||||||
| Click button on building number to access detailed information: | ||||||
|---|---|---|---|---|---|---|
| Bldg # | Vacant/Improved Land | Bldg Description | Year Built | SqFt | # Stories | |
|
1 |
Improved |
Ranch 1 Story |
1985 |
972 |
1 Stories |
|