|
|
|
| Larry Stein Oklahoma County Assessor (405) 713-1200 - Public Access System |
|
|
|
|
|
|
| Real Property Display - Screen Produced 3/12/2026 1:00:02 PM | ||||
|---|---|---|---|---|
| Account: R145084370 | Type: Residential | Location: |
13217 NE 36TH ST |
|
| Building Name/Occupant: |
|
OKLAHOMA CITY |
||
| Owner Name 1: | TAFFEE JOALFRED |
Parcel PIN#: |
2259-14-508-4370 |
|
| Owner Name 2: | 1/4 section #: |
2259 |
||
| Owner Name 3: | Parent Acct: |
|
||
| Billing Address: | 13066 NE 36TH ST | Tax District: |
|
|
| City, State, Zip | CHOCTAW, OK 73020-9101 | School System: |
Oklahoma City #89 |
|
|
Country: (If noted) |
Land Size: |
4.0000 Acres |
||
|
Land Value: 17,310 |
|
|||
|
Sect 15-T12N-R1W Qtr SW |
UNPLTD PT SEC 15 12N 1W
Block
000
Lot
000
|
|||
| Full Legal Description: UNPLTD PT SEC 15 12N 1W 000 000 PT SW4 SEC 15 12N 1W BEG 33FT N & 1321.75FT E OF SW/C SW4 TH N800FT E272.25FT S800FT W272.25FT TO BEG EX A TR BEG 673FT N & 1321.75FT E OF SW/C SW/4 TH S160FT E272.25FT N160FT W272.25FT TO BEG |
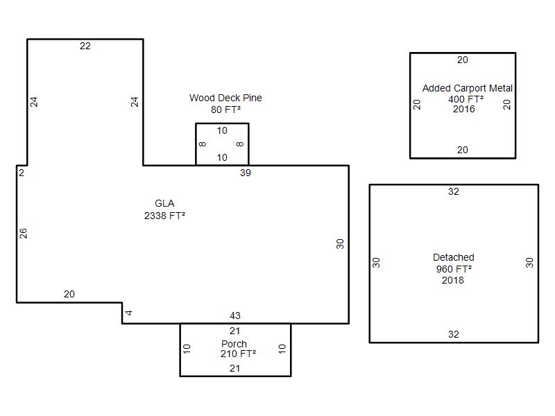
| Photo & Sketch (if available) | Comp Sales (ordered by relevancy) |
|
||||||||||||||||||
|
||||||||||||||||||||
| Value History (*The County Treasurer 405-713-1300 posts & collects actual tax amounts. Contact information HERE) | |||||||||||||
|---|---|---|---|---|---|---|---|---|---|---|---|---|---|
| Year | Market Value | Taxable Mkt Value | Gross Assessed | Exemption | Net Assessed | Millage | Est. Tax | Tax Savings | |||||
|
2025 |
278,500 |
206,026 |
22,662 |
0 |
22,662 |
122.90 |
$2,785 |
$980 |
|||||
|
2024 |
263,000 |
196,216 |
21,583 |
0 |
21,583 |
123.89 |
$2,674 |
$910 |
|||||
|
2023 |
230,500 |
186,873 |
20,555 |
0 |
20,555 |
122.82 |
$2,525 |
$589 |
|||||
|
2022 |
211,500 |
177,975 |
19,577 |
0 |
19,577 |
117.63 |
$2,303 |
$434 |
|||||
|
2021 |
169,500 |
169,500 |
18,645 |
0 |
18,645 |
117.70 |
$2,195 |
$0 |
|||||
| Property Account Status/Adjustments/Exemptions | ||
|---|---|---|
| Account # | Exemption Description | Amount |
|
R145084370 |
5% Capped Account |
0 |
| Property Deed Transaction History (Recorded in the County Clerk's Office) | |||||||
|---|---|---|---|---|---|---|---|
| Date | Type | Book | Page | Price | Grantor | Grantee | |
|
7/18/2008 |
|
Deeds |
$15,000 |
ROBINSON JOSEPH & JOY L |
TAFFEE JOALFRED |
||
|
9/8/1998 |
|
Historical |
$4,500 |
LIBERTY BANK & TRUST COMPANY |
ROBINSON JOSEPH & JOY L |
||
|
9/12/1995 |
|
Historical |
$0 |
CHOCTAW STATE BANK |
LIBERTY BANK & TRUST COMPANY |
||
|
5/6/1988 |
|
Historical |
$0 |
WILSON HENRY W JR & CORA LEE |
CHOCTAW STATE BANK |
||
|
5/1/1981 |
|
Historical |
$0 |
|
WILSON HENRY W JR & CORA LEE |
||
| Last Mailed Notice of Value (N.O.V.) Information/History | ||||||||
|---|---|---|---|---|---|---|---|---|
| Year | Date | Market Value | Taxable Market Value | Gross Assessed | Exemption | Net Assessed | ||
|
2026 |
02/06/2026 |
283,500 |
216,327 |
23,795 |
0 |
23,795 |
||
|
2025 |
01/31/2025 |
278,500 |
206,026 |
22,662 |
0 |
22,662 |
||
|
2024 |
01/22/2024 |
263,000 |
196,216 |
21,583 |
0 |
21,583 |
||
|
2023 |
01/23/2023 |
230,500 |
186,873 |
20,555 |
0 |
20,555 |
||
|
2022 |
02/22/2022 |
211,500 |
177,975 |
19,577 |
0 |
19,577 |
||
| Property Building Permit History | ||||||
|---|---|---|---|---|---|---|
| Issued | Permit # | Provided by | Bldg # | Description | Est Construction Cost | Status |
|
3/26/2018 |
|
|
1 |
Storage Buil |
20,000 |
Inactive |
|
3/4/1999 |
10240308 |
OKLAHOMA CITY |
1 |
Demolish |
0 |
Inactive |
| Click button on building number to access detailed information: | ||||||
|---|---|---|---|---|---|---|
| Bldg # | Vacant/Improved Land | Bldg Description | Year Built | SqFt | # Stories | |
|
1 |
Improved |
Ranch 1 Story |
1970 |
2,338 |
1 Stories |
|