|
|
|
| Larry Stein Oklahoma County Assessor (405) 713-1200 - Public Access System |
|
|
|
|
|
|
| Real Property Display - Screen Produced 3/16/2026 3:57:21 AM | ||||
|---|---|---|---|---|
| Account: R143245760 | Type: Residential | Location: |
12709 PARKER HEIGHTS BLVD |
|
| Building Name/Occupant: |
|
OKLAHOMA CITY |
||
| Owner Name 1: | TWELVE THOUSAND SEVEN HUNDRED |
Parcel PIN#: |
2262-14-324-5760 |
|
| Owner Name 2: | NINE PARKER HEIGHTS BLVD LLC | 1/4 section #: |
2262 |
|
| Owner Name 3: | Parent Acct: |
|
||
| Billing Address: | 1411 LINWOOD BLVD | Tax District: |
|
|
| City, State, Zip | OKLAHOMA CITY, OK 73106-5021 | School System: |
Oklahoma City #89 |
|
|
Country: (If noted) |
Land Size: |
0.1607 Acres |
||
|
Land Value: 1,330 |
|
|||
|
Sect 16-T12N-R1W Qtr SE |
PARKER HEIGHTS ADD
Block
006
Lot
045
|
|||
| Full Legal Description: PARKER HEIGHTS ADD 006 045 |
| Photo & Sketch (if available) | Comp Sales (ordered by relevancy) |
|
||||||||||||||||||
|
||||||||||||||||||||
| Value History (*The County Treasurer 405-713-1300 posts & collects actual tax amounts. Contact information HERE) | |||||||||||||
|---|---|---|---|---|---|---|---|---|---|---|---|---|---|
| Year | Market Value | Taxable Mkt Value | Gross Assessed | Exemption | Net Assessed | Millage | Est. Tax | Tax Savings | |||||
|
2025 |
76,500 |
18,846 |
2,072 |
0 |
2,072 |
122.90 |
$255 |
$779 |
|||||
|
2024 |
70,500 |
17,949 |
1,974 |
0 |
1,974 |
123.89 |
$245 |
$716 |
|||||
|
2023 |
61,000 |
17,095 |
1,879 |
0 |
1,879 |
122.82 |
$231 |
$593 |
|||||
|
2022 |
55,500 |
16,281 |
1,790 |
0 |
1,790 |
117.63 |
$211 |
$507 |
|||||
|
2021 |
44,500 |
15,506 |
1,705 |
0 |
1,705 |
117.70 |
$201 |
$375 |
|||||
| Property Account Status/Adjustments/Exemptions | ||
|---|---|---|
| Account # | Exemption Description | Amount |
|
R143245760 |
5% Capped Account |
0 |
| Property Deed Transaction History (Recorded in the County Clerk's Office) | |||||||
|---|---|---|---|---|---|---|---|
| Date | Type | Book | Page | Price | Grantor | Grantee | |
|
7/7/2006 |
|
Deeds |
$8,000 |
SILSBY TIMOTHY R SILSBY TERESA G |
TWELVE THOUSAND SEVEN HUNDRED |
||
|
6/20/2006 |
|
Deeds |
$8,000 |
BRADLEY G NEAL & GLENDA G |
SILSBY TIMOTHY R SILSBY TERESA G |
||
|
10/26/1989 |
|
Historical |
$3,000 |
SECRETARY OF HOUSING |
BRADLEY G NEAL & GLENDA G |
||
|
1/5/1989 |
|
Historical |
$0 |
LASKEY EARNEST C & ELEANOR P |
SECRETARY OF HOUSING |
||
|
4/1/1986 |
|
Historical |
$32,000 |
|
LASKEY EARNEST C & ELEANOR P |
||
| Last Mailed Notice of Value (N.O.V.) Information/History | ||||||||
|---|---|---|---|---|---|---|---|---|
| Year | Date | Market Value | Taxable Market Value | Gross Assessed | Exemption | Net Assessed | ||
|
2026 |
02/06/2026 |
73,500 |
19,788 |
2,176 |
0 |
2,176 |
||
|
2025 |
01/31/2025 |
76,500 |
18,846 |
2,072 |
0 |
2,072 |
||
|
2024 |
01/22/2024 |
70,500 |
17,949 |
1,974 |
0 |
1,974 |
||
|
2023 |
01/23/2023 |
61,000 |
17,095 |
1,879 |
0 |
1,879 |
||
|
2022 |
02/22/2022 |
55,500 |
16,281 |
1,790 |
0 |
1,790 |
||
| Property Building Permit History | ||||||
|---|---|---|---|---|---|---|
| Issued | Permit # | Provided by | Bldg # | Description | Est Construction Cost | Status |
|
4/1/2008 |
10349871 |
COUNTY |
1 |
Remodeled |
0 |
Inactive |
| Click button on building number to access detailed information: | ||||||
|---|---|---|---|---|---|---|
| Bldg # | Vacant/Improved Land | Bldg Description | Year Built | SqFt | # Stories | |
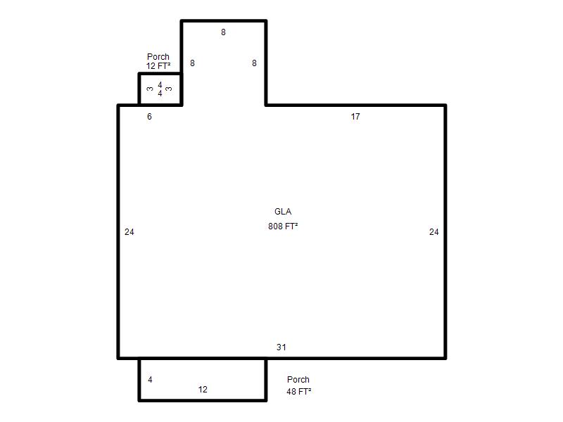
|
1 |
Improved |
Ranch 1 Story |
1955 |
808 |
1 Stories |
|