|
|
|
| Larry Stein Oklahoma County Assessor (405) 713-1200 - Public Access System |
|
|
|
|
|
|
| Real Property Display - Screen Produced 3/16/2026 7:50:16 AM | ||||
|---|---|---|---|---|
| Account: R195820875 | Type: Residential | Location: |
2490 IVES WAY |
|
| Building Name/Occupant: |
|
NICOMA PARK |
||
| Owner Name 1: | DELP MISTY D & JEFFERY J |
Parcel PIN#: |
2279-19-582-0875 |
|
| Owner Name 2: | 1/4 section #: |
2279 |
||
| Owner Name 3: | Parent Acct: |
|
||
| Billing Address: | PO BOX 551 | Tax District: |
|
|
| City, State, Zip | NICOMA PARK, OK 73066-0551 | School System: |
Choctaw #4 |
|
|
Country: (If noted) |
Land Size: |
1.8360 Acres |
||
|
Land Value: 39,128 |
|
|||
|
Sect 20-T12N-R1W Qtr SW |
NICOMA PARK ADDITION
Block
004
Lot
006
|
|||
| Full Legal Description: NICOMA PARK ADDITION 004 006 |
| No comparable sales report available. | ||||||||||||||||||||||
|
||||||||||||||||||||||
| Value History (*The County Treasurer 405-713-1300 posts & collects actual tax amounts. Contact information HERE) | |||||||||||||
|---|---|---|---|---|---|---|---|---|---|---|---|---|---|
| Year | Market Value | Taxable Mkt Value | Gross Assessed | Exemption | Net Assessed | Millage | Est. Tax | Tax Savings | |||||
|
2025 |
75,594 |
35,655 |
3,921 |
1,000 |
2,921 |
117.21 |
$342 |
$632 |
|||||
|
2024 |
75,715 |
34,617 |
3,806 |
1,000 |
2,806 |
116.35 |
$327 |
$642 |
|||||
|
2023 |
75,841 |
33,609 |
3,696 |
1,000 |
2,696 |
117.10 |
$316 |
$661 |
|||||
|
2022 |
75,547 |
32,631 |
3,588 |
1,000 |
2,588 |
115.17 |
$298 |
$659 |
|||||
|
2021 |
47,047 |
31,681 |
3,484 |
1,000 |
2,484 |
115.06 |
$286 |
$310 |
|||||
| Property Account Status/Adjustments/Exemptions | ||
|---|---|---|
| Account # | Exemption Description | Amount |
|
R195820875 |
Homestead |
1,000 |
|
R195820875 |
3% Cap Homestead |
0 |
| Property Deed Transaction History (Recorded in the County Clerk's Office) | ||||||||||
|---|---|---|---|---|---|---|---|---|---|---|
| Date | Type | Book | Page | Price | Grantor | Grantee | ||||
|
7/21/2023 |
|
Deeds |
$0 |
YELL MISTY D |
DELP MISTY D & JEFFERY J |
|||||
|
3/16/2015 |
|
Deeds |
$0 |
YELL MISTY D |
YELL MISTY D |
|||||
|
1/28/2008 |
|
Deeds |
$0 |
YELL KEVIN RAY |
YELL MISTY D |
|||||
|
10/12/1994 |
|
Historical |
$40,000 |
YELL MARDIE LF EST |
YELL KEVIN RAY |
|||||
|
4/28/1993 |
|
Historical |
$0 |
COSBY GARY & BEVERLY |
YELL MARDIE LF EST |
|||||
| Last Mailed Notice of Value (N.O.V.) Information/History | ||||||||
|---|---|---|---|---|---|---|---|---|
| Year | Date | Market Value | Taxable Market Value | Gross Assessed | Exemption | Net Assessed | ||
|
2026 |
02/06/2026 |
72,059 |
36,724 |
4,039 |
1,000 |
3,039 |
||
|
2025 |
01/31/2025 |
75,594 |
35,655 |
3,921 |
1,000 |
2,921 |
||
|
2024 |
01/22/2024 |
75,715 |
34,617 |
3,806 |
1,000 |
2,806 |
||
|
2023 |
01/23/2023 |
75,841 |
33,609 |
3,696 |
1,000 |
2,696 |
||
|
2022 |
02/22/2022 |
75,547 |
32,631 |
3,588 |
1,000 |
2,588 |
||
| Property Building Permit History | ||||||
|---|---|---|---|---|---|---|
| Issued | Permit # | Provided by | Bldg # | Description | Est Construction Cost | Status |
|
1/23/1992 |
10263103 |
NICOMA PARK |
1 |
Garage |
18,000 |
Inactive |
| Click button on building number to access detailed information: | ||||||
|---|---|---|---|---|---|---|
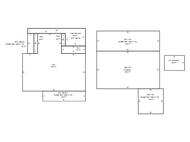
| Bldg # | Vacant/Improved Land | Bldg Description | Year Built | SqFt | # Stories | |
|
1 |
Improved |
Double Wide |
1982 |
1,918 |
1 Stories |
|