|
|
|
| Larry Stein Oklahoma County Assessor (405) 713-1200 - Public Access System |
|
|
|
|
|
|
| Real Property Display - Screen Produced 3/16/2026 7:50:16 AM | ||||
|---|---|---|---|---|
| Account: R195821550 | Type: Residential | Location: |
2729 OVERHOLSER DR |
|
| Building Name/Occupant: |
|
NICOMA PARK |
||
| Owner Name 1: | KING NATHAN JAY |
Parcel PIN#: |
2279-19-582-1550 |
|
| Owner Name 2: | 1/4 section #: |
2279 |
||
| Owner Name 3: | Parent Acct: |
|
||
| Billing Address: | 2729 OVERHOLSER DR | Tax District: |
|
|
| City, State, Zip | CHOCTAW, OK 73020-8285 | School System: |
Choctaw #4 |
|
|
Country: (If noted) |
Land Size: |
2.2000 Acres |
||
|
Land Value: 41,891 |
|
|||
|
Sect 20-T12N-R1W Qtr SW |
NICOMA PARK ADDITION
Block
004
Lot
041
|
|||
| Full Legal Description: NICOMA PARK ADDITION 004 041 150FT BY 234FT BY 500FT |
| Photo & Sketch (if available) | Comp Sales (ordered by relevancy) |
|
||||||||||||||||||
|
||||||||||||||||||||
| Value History (*The County Treasurer 405-713-1300 posts & collects actual tax amounts. Contact information HERE) | |||||||||||||
|---|---|---|---|---|---|---|---|---|---|---|---|---|---|
| Year | Market Value | Taxable Mkt Value | Gross Assessed | Exemption | Net Assessed | Millage | Est. Tax | Tax Savings | |||||
|
2025 |
183,500 |
99,956 |
10,994 |
10,994 |
0 |
117.21 |
$0 |
$2,366 |
|||||
|
2024 |
173,500 |
97,045 |
10,674 |
10,674 |
0 |
116.35 |
$0 |
$2,220 |
|||||
|
2023 |
171,500 |
94,219 |
10,363 |
10,363 |
0 |
117.10 |
$0 |
$2,209 |
|||||
|
2022 |
155,500 |
91,475 |
10,062 |
10,062 |
0 |
115.17 |
$0 |
$1,970 |
|||||
|
2021 |
125,500 |
88,811 |
9,768 |
9,768 |
0 |
115.06 |
$0 |
$1,588 |
|||||
| Property Account Status/Adjustments/Exemptions | ||
|---|---|---|
| Account # | Exemption Description | Amount |
|
R195821550 |
3% Cap Homestead |
0 |
|
R195821550 |
100% DAV Exemption |
100 |
|
R195821550 |
DAV Homestead |
0 |
| Property Deed Transaction History (Recorded in the County Clerk's Office) | |||||||
|---|---|---|---|---|---|---|---|
| Date | Type | Book | Page | Price | Grantor | Grantee | |
|
3/27/2009 |
|
Deeds |
$107,000 |
IRVINE ANGELA L & BRIAN V |
KING NATHAN JAY |
||
|
9/15/2000 |
|
Deeds |
$72,000 |
BARNES ANNA LUCILLE |
IRVINE ANGELA L & BRIAN V |
||
|
5/1/1985 |
|
Historical |
$0 |
|
BARNES ANNA LUCILLE |
||
| Last Mailed Notice of Value (N.O.V.) Information/History | ||||||||
|---|---|---|---|---|---|---|---|---|
| Year | Date | Market Value | Taxable Market Value | Gross Assessed | Exemption | Net Assessed | ||
|
2026 |
02/06/2026 |
189,000 |
102,954 |
11,324 |
11,324 |
0 |
||
|
2025 |
01/31/2025 |
183,500 |
99,956 |
10,994 |
10,994 |
0 |
||
|
2024 |
01/22/2024 |
173,500 |
97,045 |
10,674 |
10,674 |
0 |
||
|
2023 |
01/23/2023 |
171,500 |
94,219 |
10,363 |
10,363 |
0 |
||
|
2022 |
02/22/2022 |
155,500 |
91,475 |
10,061 |
10,061 |
0 |
||
| Property Building Permit History | |||||||||||
|---|---|---|---|---|---|---|---|---|---|---|---|
| Issued | Permit # | Provided by | Bldg # | Description | Est Construction Cost | Status | |||||
| No Building Permit records returned. | |||||||||||
| Click button on building number to access detailed information: | ||||||
|---|---|---|---|---|---|---|
| Bldg # | Vacant/Improved Land | Bldg Description | Year Built | SqFt | # Stories | |
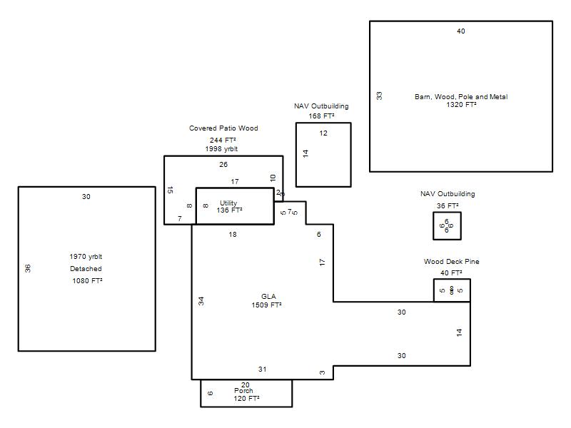
|
1 |
Improved |
Ranch 1 Story |
1928 |
1,509 |
1 Stories |
|