Larry Stein Oklahoma County Assessor (405) 713-1200 - Public Access System
Home Contact Us Guest Book Map Search New Search
Building Detail Results - Screen Produced   3/14/2026 5:11:19 AM 
 Account #:  R144061775 Bldg #1
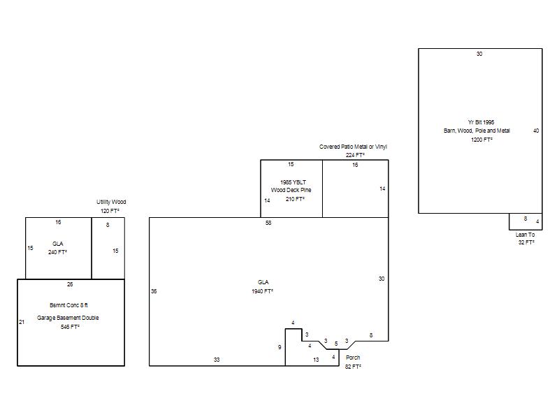
Sketch

 Building #: 1
 Built As:  Ranch 1 Story
 # of Stories:  1 Stories
 Square Feet:  2,180
 Year Built:  1982
 Remodel Year:   
 Building Name:   
 Alt Land Use Desc:  Unplatted 5 Acres or more
 Quality Desc:  Fair
 Bldg Frame Description:  
 Foundation Desc:  Conventional
 Bldg Exterior:  Frame Masonry Veneer
 Roof Type:  Gable
 Roof Cover:   Composition Shingle
 Avg Floor Height:  8
 Percent Sprinkled:  0
 Bldg Interior:  Drywall
 Total Rooms:  7
 # of Units w/Bedrooms: # of units (1) with 3 Bedrooms
 # of Baths:  (2)-Full, (0)-3/4, (0)-half
 HVAC Type:  Central Air to Air
 # of Fire Places:  1
 Percent Heated:  100
 Physical Condition:  Average
 # of Res Units:  1
 # of Comm Units:  0
 Commercial Desc:   
 Occ Type:  0100
 Commercial Class:  R
 MFG Home Length:  0
 MFG Home Width:  0

Photos

2023 

2019 

2015 

2010 

2008 

2006 

2003 

Garage, Porch, Basement, Storage, Utility etc.  (GLA=Gross Living Area    GBA=Gross Bldg Area)
Account # Feature Description Sqft/Area Number of Stories

R144061775

 GLA

 GLA

1,940 

1

R144061775

 BsmtC8ft

 Bsmnt Conc 8 ft

546 

1

R144061775

 GarBsmtDbl

 Garage Basement Double

546 

1

R144061775

 GLA

 GLA

240 

1

R144061775

 StoUtilWd

 Utility

120 

1

R144061775

 PorWood R

 Porch

82 

1

Additional Details
Account #: Bldg # Description Qty # Of Units Description

R144061775

1

Allowance

1

Units

R144061775

1

Barn, Wood, Pole and Metal

1

1,200 

Square Feet

R144061775

1

Covered Patio Metal or Vinyl

1

224 

Square Feet

R144061775

1

Laundry Facility

1

Square Feet

R144061775

1

Lean To

1

32 

Square Feet

R144061775

1

Swimming Pool

1

495 

Square Feet

R144061775

1

Wood Deck Pine

1

210 

Square Feet