Larry Stein Oklahoma County Assessor (405) 713-1200 - Public Access System
Home Contact Us Guest Book Map Search New Search
Building Detail Results - Screen Produced   3/21/2026 3:37:28 PM 
 Account #:  R197090800 Bldg #1
Sketch

 Building #: 1
 Built As:  Indust Lght Manufacturing
 # of Stories:  1 Stories
 Square Feet:  2,400
 Year Built:  1986
 Remodel Year:  1989
 Building Name:  Oklahoma Redline Transmissions
 Alt Land Use Desc:  Platted Commercial
 Quality Desc:  Low
 Bldg Frame Description:  Metal Frame
 Foundation Desc:  Slab
 Bldg Exterior:  Metal Siding
 Roof Type:  Gable
 Roof Cover:   Formed Seam Metal
 Avg Floor Height:  14
 Percent Sprinkled:  0
 Bldg Interior:  
 Total Rooms:   
 # of Units w/Bedrooms: # of units ( ) with   Bedrooms
 # of Baths:  (0)-Full, (0)-3/4, (0)-half
 HVAC Type:  Space Heater
 # of Fire Places:  0
 Percent Heated:  100
 Physical Condition:  Average
 # of Res Units:  0
 # of Comm Units:  1
 Commercial Desc:   
 Occ Type:  0325
 Commercial Class:  C
 MFG Home Length:  0
 MFG Home Width:  0

Photos

2024 

2020 

2016 

2012 

2006 

2006 

2005 

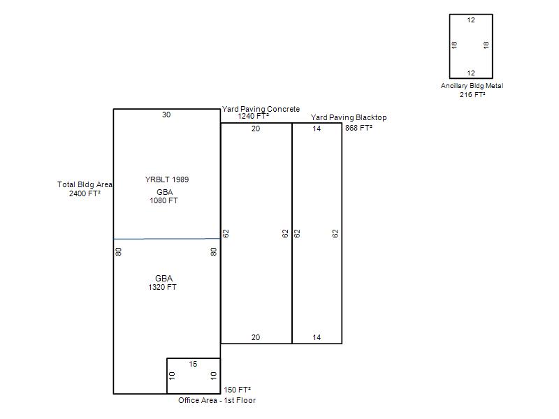
Garage, Porch, Basement, Storage, Utility etc.  (GLA=Gross Living Area    GBA=Gross Bldg Area)
Account # Feature Description Sqft/Area Number of Stories

R197090800

 GBA

 GBA

2,400 

1

Additional Details
Account #: Bldg # Description Qty # Of Units Description

R197090800

1

Ancillary Bldg Metal

1

216 

Square Feet

R197090800

1

Fence Chain Link 6`

1

420 

Linear Feet

R197090800

1

Fence Chain Link 6` + Brb Wire

1

60 

Linear Feet

R197090800

1

Office Area - 1st Floor

1

150 

Square Feet

R197090800

1

Yard Paving Blacktop

1

868 

Square Feet

R197090800

1

Yard Paving Concrete

1

1,240 

Square Feet