Larry Stein Oklahoma County Assessor (405) 713-1200 - Public Access System
Home Contact Us Guest Book Map Search New Search
Building Detail Results - Screen Produced   3/16/2026 3:49:50 AM 
 Account #:  R144197210 Bldg #1
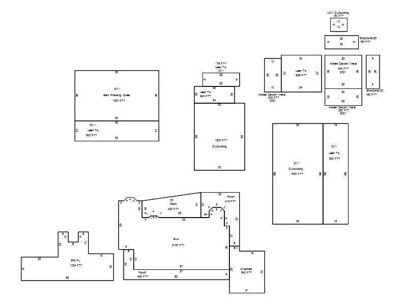
Sketch

 Building #: 1
 Built As:  1½ Story Fin
 # of Stories:  1.5 Stories
 Square Feet:  3,164
 Year Built:  1998
 Remodel Year:   
 Building Name:   
 Alt Land Use Desc:  Unplatted 5 Acres or more
 Quality Desc:  Good
 Bldg Frame Description:  
 Foundation Desc:  Slab
 Bldg Exterior:  Frame Vinyl
 Roof Type:  Hip/Gable
 Roof Cover:   Composition Shingle
 Avg Floor Height:  8
 Percent Sprinkled:  0
 Bldg Interior:  Drywall
 Total Rooms:  8
 # of Units w/Bedrooms: # of units (1) with 4 Bedrooms
 # of Baths:  (3)-Full, (0)-3/4, (1)-half
 HVAC Type:  Central Air to Air
 # of Fire Places:  1
 Percent Heated:  100
 Physical Condition:  Average
 # of Res Units:  1
 # of Comm Units:  0
 Commercial Desc:   
 Occ Type:  0100
 Commercial Class:  R
 MFG Home Length:  0
 MFG Home Width:  0

Photos

2023 

2019 

2015 

2011 

2008 

2006 

2004 

Garage, Porch, Basement, Storage, Utility etc.  (GLA=Gross Living Area    GBA=Gross Bldg Area)
Account # Feature Description Sqft/Area Number of Stories

R144197210

 GLA

 GLA

2,130 

1

R144197210

 GLA2

 2nd FL

1,034 

1

R144197210

 GarAttach

 Attached

543 

1

R144197210

 PorWood R

 Porch

450 

1

R144197210

 PorOpenSl

 Patio

433 

1

R144197210

 PorWood R

 Porch

412 

1

Additional Details
Account #: Bldg # Description Qty # Of Units Description

R144197210

1

Added Carport Metal

1

200 

Square Feet

R144197210

1

Added Carport Metal

1

220 

Square Feet

R144197210

1

Added Carport Metal

1

440 

Square Feet

R144197210

1

Allowance

1

Units

R144197210

1

Barn Pre-Eng. Steel

1

1,500 

Square Feet

R144197210

1

Exempt Storm Shelter

1

Square Feet

R144197210

1

Laundry Facility

1

Square Feet

R144197210

1

Lean To

1

176 

Square Feet

R144197210

1

Lean To

1

240 

Square Feet

R144197210

1

Lean To

1

528 

Square Feet

R144197210

1

Lean To

1

600 

Square Feet

R144197210

1

Lean To

1

900 

Square Feet

R144197210

1

NAV Outbuilding

1

80 

Square Feet

R144197210

1

Outbuilding

1

1,200 

Square Feet

R144197210

1

Outbuilding

1

1,800 

Square Feet

R144197210

1

ShipCon8x20

1

160 

Square Feet