Larry Stein Oklahoma County Assessor (405) 713-1200 - Public Access System
Home Contact Us Guest Book Map Search New Search
Building Detail Results - Screen Produced   4/27/2026 4:30:40 PM 
 Account #:  R204451010 Bldg #1
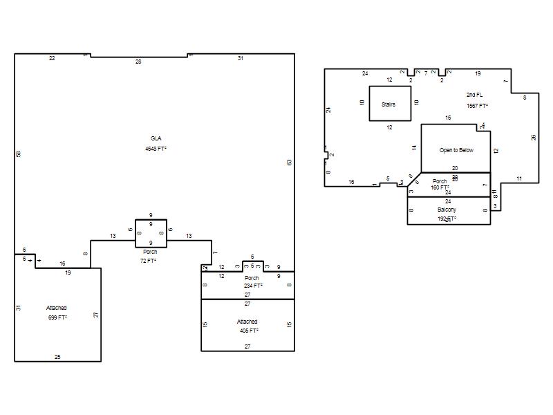
Sketch

 Building #: 1
 Built As:  1½ Story Fin
 # of Stories:  1.5 Stories
 Square Feet:  6,215
 Year Built:  2009
 Remodel Year:   
 Building Name:   
 Alt Land Use Desc:  Platted
 Quality Desc:  Very Good
 Bldg Frame Description:  
 Foundation Desc:  Slab
 Bldg Exterior:  Frame Brick Veneer
 Roof Type:  Hip
 Roof Cover:   Composition Shingle
 Avg Floor Height:  8
 Percent Sprinkled:  0
 Bldg Interior:  Drywall
 Total Rooms:  11
 # of Units w/Bedrooms: # of units (1) with 3 Bedrooms
 # of Baths:  (3)-Full, (1)-3/4, (0)-half
 HVAC Type:  Central Air to Air
 # of Fire Places:  2
 Percent Heated:  100
 Physical Condition:  Average
 # of Res Units:  1
 # of Comm Units:  0
 Commercial Desc:   
 Occ Type:  0100
 Commercial Class:  R
 MFG Home Length:  0
 MFG Home Width:  0

Photos

2023 

2019 

2015 

2011 

2010 

2009 

Garage, Porch, Basement, Storage, Utility etc.  (GLA=Gross Living Area    GBA=Gross Bldg Area)
Account # Feature Description Sqft/Area Number of Stories

R204451010

 GLA

 GLA

4,648 

1

R204451010

 GLA2

 2nd FL

1,567 

1

R204451010

 GarAttach

 Attached

699 

1

R204451010

 GarAttach

 Attached

405 

1

R204451010

 PorWood R

 Porch

234 

1

R204451010

 BalWd F

 Balcony

192 

1

R204451010

 PorWood R

 Porch

160 

1

R204451010

 PorWood R

 Porch

72 

1

Additional Details
Account #: Bldg # Description Qty # Of Units Description

R204451010

1

Allowance

1

Units

R204451010

1

Driveway Slab

1

240 

Square Feet

R204451010

1

Hot Tub

1

Units

R204451010

1

Laundry Facility

1

Square Feet

R204451010

1

Miscellaneous

1

120 

Square Feet

R204451010

1

Miscellaneous

1

272 

Square Feet

R204451010

1

Swimming Pool

1

264 

Square Feet