Larry Stein Oklahoma County Assessor (405) 713-1200 - Public Access System
Home Contact Us Guest Book Map Search New Search
Building Detail Results - Screen Produced   3/4/2026 3:24:20 AM 
 Account #:  R086153800 Bldg #1
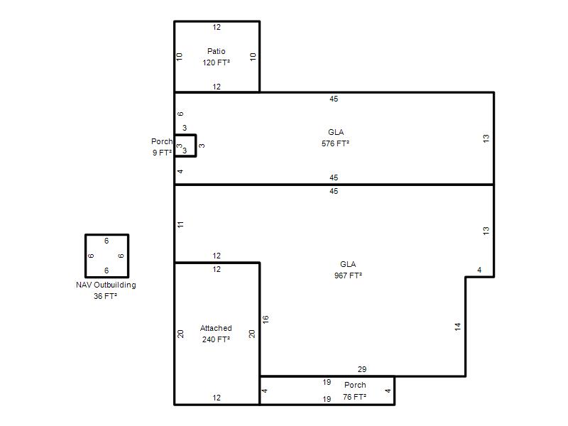
Sketch

 Building #: 1
 Built As:  Ranch 1 Story
 # of Stories:  1 Stories
 Square Feet:  1,543
 Year Built:  1949
 Remodel Year:  2022
 Building Name:   
 Alt Land Use Desc:  Platted
 Quality Desc:  Fair
 Bldg Frame Description:  
 Foundation Desc:  Conventional
 Bldg Exterior:  Frame Masonry Veneer
 Roof Type:  Hip
 Roof Cover:   Composition Shingle
 Avg Floor Height:  8
 Percent Sprinkled:  0
 Bldg Interior:  Drywall
 Total Rooms:  6
 # of Units w/Bedrooms: # of units (1) with 3 Bedrooms
 # of Baths:  (2)-Full, (0)-3/4, (0)-half
 HVAC Type:  Central Air to Air
 # of Fire Places:  0
 Percent Heated:  100
 Physical Condition:  Average
 # of Res Units:  1
 # of Comm Units:  0
 Commercial Desc:   
 Occ Type:  0100
 Commercial Class:  R
 MFG Home Length:  0
 MFG Home Width:  0

Photos

2023 

2019 

2015 

2012 

2007 

2004 

Garage, Porch, Basement, Storage, Utility etc.  (GLA=Gross Living Area    GBA=Gross Bldg Area)
Account # Feature Description Sqft/Area Number of Stories

R086153800

 GLA

 GLA

967 

1

R086153800

 GLA

 GLA

576 

1

R086153800

 GarAttach

 Attached

240 

1

R086153800

 PorOpenSl

 Patio

120 

1

R086153800

 PorWood R

 Porch

76 

1

R086153800

 PorWood R

 Porch

1

Additional Details
Account #: Bldg # Description Qty # Of Units Description

R086153800

1

Allowance

1

Units

R086153800

1

Driveway Slab

1

161 

Square Feet

R086153800

1

Laundry Facility

1

Square Feet

R086153800

1

NAV Outbuilding

1

36 

Square Feet