Larry Stein Oklahoma County Assessor (405) 713-1200 - Public Access System
Home Contact Us Guest Book Map Search New Search
Building Detail Results - Screen Produced   4/10/2026 5:20:39 AM 
 Account #:  R133208120 Bldg #1
Sketch

 Building #: 1
 Built As:  Storage Warehouse
 # of Stories:  1 Stories
 Square Feet:  10,000
 Year Built:  1969
 Remodel Year:  1987
 Building Name:  LOGIC ENERGY SOLUTIONS
 Alt Land Use Desc:  Unplatted Commercial
 Quality Desc:  Fair Plus
 Bldg Frame Description:  Masonry
 Foundation Desc:  Slab
 Bldg Exterior:  Masonry Concrete Block w/Stucco
 Roof Type:  Flat
 Roof Cover:   Built Up Rock
 Avg Floor Height:  14
 Percent Sprinkled:  0
 Bldg Interior:  
 Total Rooms:   
 # of Units w/Bedrooms: # of units ( ) with   Bedrooms
 # of Baths:  (0)-Full, (0)-3/4, (0)-half
 HVAC Type:  Package Unit
 # of Fire Places:  0
 Percent Heated:  100
 Physical Condition:  Average
 # of Res Units:  0
 # of Comm Units:  3
 Commercial Desc:   
 Occ Type:  0406
 Commercial Class:  C
 MFG Home Length:  0
 MFG Home Width:  0

Photos

2017 

2013 

2009 

2007 

2004 

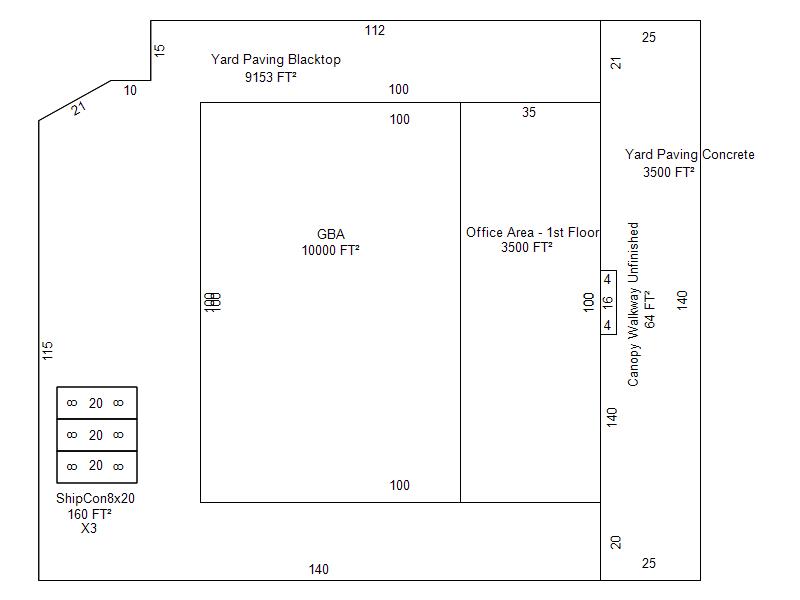
Garage, Porch, Basement, Storage, Utility etc.  (GLA=Gross Living Area    GBA=Gross Bldg Area)
Account # Feature Description Sqft/Area Number of Stories

R133208120

 GBA

 GBA

10,000 

1

Additional Details
Account #: Bldg # Description Qty # Of Units Description

R133208120

1

Canopy Walkway Unfinished

1

64 

Square Feet

R133208120

1

Fence Chain Link 6` + Brb Wire

1

100 

Linear Feet

R133208120

1

Office Area - 1st Floor

1

3,500 

Square Feet

R133208120

1

ShipCon8x20

1

160 

Square Feet

R133208120

1

Yard Paving Blacktop

1

-10,000 

Square Feet

R133208120

1

Yard Paving Blacktop

1

9,153 

Square Feet

R133208120

1

Yard Paving Concrete

1

3,500 

Square Feet