Larry Stein Oklahoma County Assessor (405) 713-1200 - Public Access System
Home Contact Us Guest Book Map Search New Search
Building Detail Results - Screen Produced   4/10/2026 2:07:05 AM 
 Account #:  R133209000 Bldg #1
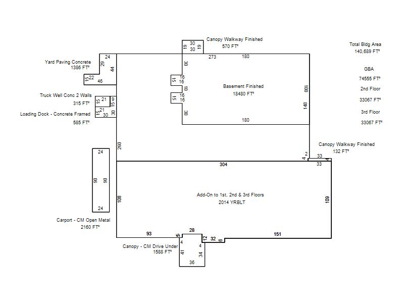
Sketch

 Building #: 1
 Built As:  Office Style Box C or D
 # of Stories:  3 Stories
 Square Feet:  140,689
 Year Built:  1967
 Remodel Year:  2014
 Building Name:  OKLAHOMA HEALTHCARE AUTHORITY/ DEPARTMENT OF CORRECTION
 Alt Land Use Desc:  Unplatted Commercial
 Quality Desc:  Good
 Bldg Frame Description:  Masonry
 Foundation Desc:  Slab
 Bldg Exterior:  Masonry Pre-Cast
 Roof Type:  Flat
 Roof Cover:   Built Up Rock
 Avg Floor Height:  10
 Percent Sprinkled:  0
 Bldg Interior:  
 Total Rooms:  10
 # of Units w/Bedrooms: # of units (1) with 0 Bedrooms
 # of Baths:  (0)-Full, (0)-3/4, (0)-half
 HVAC Type:  Hot Chilled Water
 # of Fire Places:  0
 Percent Heated:  100
 Physical Condition:  Very Good
 # of Res Units:  0
 # of Comm Units:  1
 Commercial Desc:   
 Occ Type:  3447
 Commercial Class:  C
 MFG Home Length:  0
 MFG Home Width:  0

Photos

2023 

2021 

2019 

2015 

2014 

2013 

2012 

2011 

2009 

2008 

2007 

2003 

Garage, Porch, Basement, Storage, Utility etc.  (GLA=Gross Living Area    GBA=Gross Bldg Area)
Account # Feature Description Sqft/Area Number of Stories

R133209000

 GBA

 GBA

74,555 

1

R133209000

 GBA2

 2nd Floor

33,067 

1

R133209000

 GBA3

 3rd Floor

33,067 

1

Additional Details
Account #: Bldg # Description Qty # Of Units Description

R133209000

1

Basement Finished

1

18,480 

Square Feet

R133209000

1

Canopy - CM Drive Under

1

1,588 

Square Feet

R133209000

1

Canopy Walkway Finished

1

132 

Square Feet

R133209000

1

Canopy Walkway Finished

1

570 

Square Feet

R133209000

1

Carport - CM Open Metal

1

2,160 

Square Feet

R133209000

1

Dumpster Enclosure

1

Units

R133209000

1

Elevator Psngr. Office 2 - 3 flrs

1

Units

R133209000

1

Fence Chain Link 6`

1

876 

Linear Feet

R133209000

1

Fence Wrought Iron CM 6`

1

425 

Linear Feet

R133209000

1

Loading Dock - Concrete Framed

1

585 

Square Feet

R133209000

1

Truck Well Conc 2 Walls

1

315 

Square Feet

R133209000

1

Yard Paving Blacktop Unsketched

1

96,220 

Square Feet

R133209000

1

Yard Paving Concrete

1

1,386 

Square Feet

R133209000

1

Yard Paving Concrete Unsketched

1

7,496 

Square Feet